Your email has been sent.
Highlights
- Large open floor plan
- Prominent Tyvola Road frontage
- Suits a variety of business uses
All Available Space(1)
Display Rental Rate as
- Space
- Size
- Term
- Rental Rate
- Space Use
- Build-Out
- Available
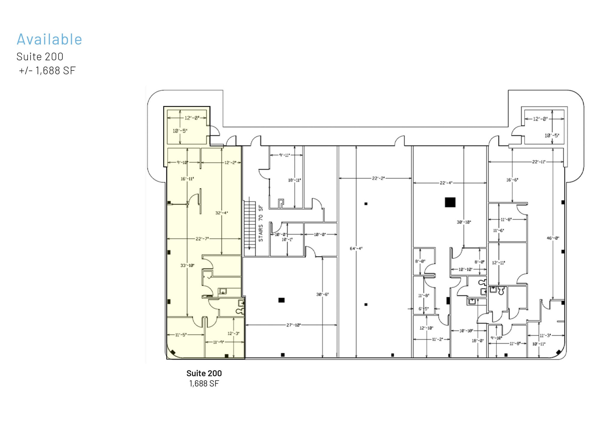
Suite 200 offers +/- 1,688 SF on the second floor, featuring a large open floor plan, two private offices, floor-to-ceiling windows, a kitchenette, and a private restroom.
- Fully Built-Out as Standard Office
- 2 Private Offices
- Kitchen
- Natural Light
- Ample Parking Available
- Mostly Open Floor Plan Layout
- Central Air Conditioning
- Private Restrooms
- Strategic Location
| Space | Size | Term | Rental Rate | Space Use | Build-Out | Available |
| 2nd Floor, Ste 200 | 1,688 SF | Negotiable | Upon Request Upon Request Upon Request Upon Request | Office | Full Build-Out | Now |
2nd Floor, Ste 200
| Size |
| 1,688 SF |
| Term |
| Negotiable |
| Rental Rate |
| Upon Request Upon Request Upon Request Upon Request |
| Space Use |
| Office |
| Build-Out |
| Full Build-Out |
| Available |
| Now |
2nd Floor, Ste 200
| Size | 1,688 SF |
| Term | Negotiable |
| Rental Rate | Upon Request |
| Space Use | Office |
| Build-Out | Full Build-Out |
| Available | Now |
Suite 200 offers +/- 1,688 SF on the second floor, featuring a large open floor plan, two private offices, floor-to-ceiling windows, a kitchenette, and a private restroom.
- Fully Built-Out as Standard Office
- Mostly Open Floor Plan Layout
- 2 Private Offices
- Central Air Conditioning
- Kitchen
- Private Restrooms
- Natural Light
- Strategic Location
- Ample Parking Available
Property Overview
Suite 200 offers +/- 1,688 SF on the second floor, featuring a large open floor plan, two private offices, floor-to-ceiling windows, a kitchenette, and a private restroom. The bright, open layout suits a variety of business uses. The property provides prominent Tyvola Road frontage, easy access to I-77, South Boulevard, and Charlotte Douglas International Airport, as well as convenient parking and nearby light rail and bus routes. With excellent visibility and strong connectivity to major business corridors, this location is ideal for companies seeking a well-connected and high-exposure setting in a growing submarket.
- Banking
- Bus Line
- Convenience Store
- Day Care
- Dry Cleaner
- Fitness Center
- Restaurant
- Signage
Property Facts
Select Tenants
- Floor
- Tenant Name
- Industry
- 2nd
- Body Heal Therapy
- Services
- 1st
- Colmer CPA, PLLC
- -
- 1st
- Elwood Staffing
- Administrative and Support Services
- 2nd
- North Carolina School Of Advanced Body Work
- Educational Services
- 1st
- Southeast Investments
- -
- 1st
- State Farm
- Finance and Insurance
Presented by
820 Tyvola Rd
Hmm, there seems to have been an error sending your message. Please try again.
Thanks! Your message was sent.







