Log In/Sign Up
Your email has been sent.
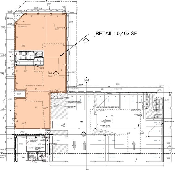
The Hall (Parcel 2) Retail Space Near FSU 825 Railroad Ave 1,460 - 5,462 SF of Retail Space Available in Tallahassee, FL 32310



Highlights
- Parcel 2: 825 Railroad Avenue (1,460 SF, 1,475 SF, 2,527 SF) Spaces can be combined
- 65,000 +/- Attending FSU, TCC, and FAMU
- Each space is equipped with a grease trap and venting – ideal for food and beverage operators
- 674 Student Beds On-Site Across Both Properties
- Excellent Location for Fast Casual Food, Breakfast User, Coffee House, Boutique Fitness, Nail Salon, Collegiate Store, Retail Boutique, and more...
- Under Construction Now – Retail Delivery expected Summer 2026
All Available Spaces(3)
Display Rental Rate as
- Space
- Size
- Term
- Rental Rate
- Space Use
- Build-Out
- Available
- Lease rate does not include utilities, property expenses or building services
- Can be combined with additional space(s) for up to 5,462 SF of adjacent space
- Located in-line with other retail
- Central Air Conditioning
- Listed rate may not include certain utilities, building services and property expenses
- Located in-line with other retail
- Can be combined with additional space(s) for up to 5,462 SF of adjacent space
- Partially Built-Out as a Restaurant or Café Space
- Space is in Excellent Condition
- Central Air Conditioning
- Listed rate may not include certain utilities, building services and property expenses
- Located in-line with other retail
- Can be combined with additional space(s) for up to 5,462 SF of adjacent space
- Partially Built-Out as a Restaurant or Café Space
- Space is in Excellent Condition
- Central Air Conditioning
| Space | Size | Term | Rental Rate | Space Use | Build-Out | Available |
| 1st Floor | 1,460 SF | Negotiable | Upon Request Upon Request Upon Request Upon Request | Retail | Shell Space | 2026-08-01 |
| 1st Floor | 1,475 SF | Negotiable | Upon Request Upon Request Upon Request Upon Request | Retail | Partial Build-Out | 2026-08-01 |
| 1st Floor | 2,527 SF | Negotiable | Upon Request Upon Request Upon Request Upon Request | Retail | Partial Build-Out | 2026-08-01 |
1st Floor
| Size |
| 1,460 SF |
| Term |
| Negotiable |
| Rental Rate |
| Upon Request Upon Request Upon Request Upon Request |
| Space Use |
| Retail |
| Build-Out |
| Shell Space |
| Available |
| 2026-08-01 |
1st Floor
| Size |
| 1,475 SF |
| Term |
| Negotiable |
| Rental Rate |
| Upon Request Upon Request Upon Request Upon Request |
| Space Use |
| Retail |
| Build-Out |
| Partial Build-Out |
| Available |
| 2026-08-01 |
1st Floor
| Size |
| 2,527 SF |
| Term |
| Negotiable |
| Rental Rate |
| Upon Request Upon Request Upon Request Upon Request |
| Space Use |
| Retail |
| Build-Out |
| Partial Build-Out |
| Available |
| 2026-08-01 |
1st Floor
| Size | 1,460 SF |
| Term | Negotiable |
| Rental Rate | Upon Request |
| Space Use | Retail |
| Build-Out | Shell Space |
| Available | 2026-08-01 |
- Lease rate does not include utilities, property expenses or building services
- Located in-line with other retail
- Can be combined with additional space(s) for up to 5,462 SF of adjacent space
- Central Air Conditioning
1st Floor
| Size | 1,475 SF |
| Term | Negotiable |
| Rental Rate | Upon Request |
| Space Use | Retail |
| Build-Out | Partial Build-Out |
| Available | 2026-08-01 |
- Listed rate may not include certain utilities, building services and property expenses
- Partially Built-Out as a Restaurant or Café Space
- Located in-line with other retail
- Space is in Excellent Condition
- Can be combined with additional space(s) for up to 5,462 SF of adjacent space
- Central Air Conditioning
1st Floor
| Size | 2,527 SF |
| Term | Negotiable |
| Rental Rate | Upon Request |
| Space Use | Retail |
| Build-Out | Partial Build-Out |
| Available | 2026-08-01 |
- Listed rate may not include certain utilities, building services and property expenses
- Partially Built-Out as a Restaurant or Café Space
- Located in-line with other retail
- Space is in Excellent Condition
- Can be combined with additional space(s) for up to 5,462 SF of adjacent space
- Central Air Conditioning
Property Facts
| Total Space Available | 5,462 SF | Apartment Style | Mid-Rise |
| No. Units | 191 | Building Size | 135,807 SF |
| Property Type | Multifamily | Year Built | 2026 |
| Property Subtype | Apartment | Construction Status | Under Construction |
| Total Space Available | 5,462 SF |
| No. Units | 191 |
| Property Type | Multifamily |
| Property Subtype | Apartment |
| Apartment Style | Mid-Rise |
| Building Size | 135,807 SF |
| Year Built | 2026 |
| Construction Status | Under Construction |
About the Property
The Hall (Parcel 2) sits on the corner of Gaines Street and Railroad Avenue. Within walking distance to FSU, FAMU, Student Housing District, Downtown and The Capitol. Located in the thriving College Town district. Surrounded by student housing, nightlife, dining, and entertainment.
Moderately walkable
60/100
Moderately drivable
60/100
Some public transit
50/100
Moderately bikeable
70/100
Nearby Major Retailers
1 of 10
Videos
Matterport 3D Exterior
Matterport 3D Tour
Photos
Street View
Street
Map
Presented by
The Hall (Parcel 2) Retail Space Near FSU | 825 Railroad Ave
Already a member? Log In
Hmm, there seems to have been an error sending your message. Please try again.
Thanks! Your message was sent.
