Your email has been sent.
Oakmont Enterprise Park (Bldg D) 8401-8475 Helgerman Ct 4,500 SF of Flex Space Available in Gaithersburg, MD 20877



Highlights
- Dock and drive-in loading
- Superior access via I270, I370 & ICC
- Locally owned and managed
- 150,000 SF, 3 building complex
Features
All Available Space(1)
Display Rental Rate as
- Space
- Size
- Term
- Rental Rate
- Space Use
- Build-Out
- Available
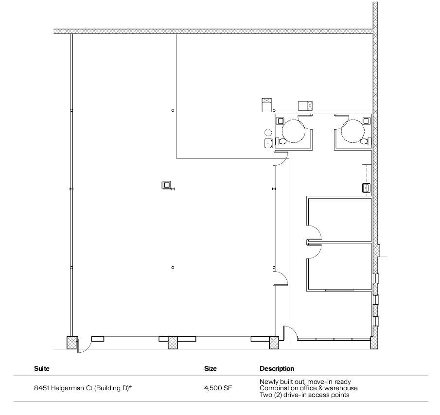
Newly built out, move-in ready Combination oce & warehouse Two (2) drive-in access points
- Lease rate does not include utilities, property expenses or building services
- 2 Drive Ins
| Space | Size | Term | Rental Rate | Space Use | Build-Out | Available |
| 1st Floor - 8451 | 4,500 SF | Negotiable | $23.42 CAD/SF/YR $1.95 CAD/SF/MO $105,379 CAD/YR $8,782 CAD/MO | Flex | Full Build-Out | Now |
1st Floor - 8451
| Size |
| 4,500 SF |
| Term |
| Negotiable |
| Rental Rate |
| $23.42 CAD/SF/YR $1.95 CAD/SF/MO $105,379 CAD/YR $8,782 CAD/MO |
| Space Use |
| Flex |
| Build-Out |
| Full Build-Out |
| Available |
| Now |
1st Floor - 8451
| Size | 4,500 SF |
| Term | Negotiable |
| Rental Rate | $23.42 CAD/SF/YR |
| Space Use | Flex |
| Build-Out | Full Build-Out |
| Available | Now |
Newly built out, move-in ready Combination oce & warehouse Two (2) drive-in access points
- Lease rate does not include utilities, property expenses or building services
- 2 Drive Ins
Property Overview
Experience modern elegance and optimal functionality at this prime commercial property in Gaithersburg, MD. Boasting superior access, ample parking, and a full sprinkler system, this location prioritizes convenience and safety for your business. Explore Gaithersburg, MD, with its diverse dining options, premier shopping and entertainment at RIO Washingtonian Center, and outdoor activities at Seneca Creek State Park. Ideal for your office or office building.
Property Facts
Presented by
Oakmont Enterprise Park (Bldg D) | 8401-8475 Helgerman Ct
Hmm, there seems to have been an error sending your message. Please try again.
Thanks! Your message was sent.


