Log In/Sign Up
Your email has been sent.
8423-8451 SE Brooklyn St 8 Unit Apartment Building $2,671,500 CAD ($333,938 CAD/Unit) 6.55% Cap Rate Portland, OR 97266



Investment Highlights
- Stabilized 8-unit multifamily asset, 100% occupied with professional third-party management in place
- Premium amenity package includes attached garages, in-unit laundry, composite decks, and 20 off-street parking spaces
- In-place cash flow with clear rental upside through mark-to-market rent growth in strong SE Portland submarket
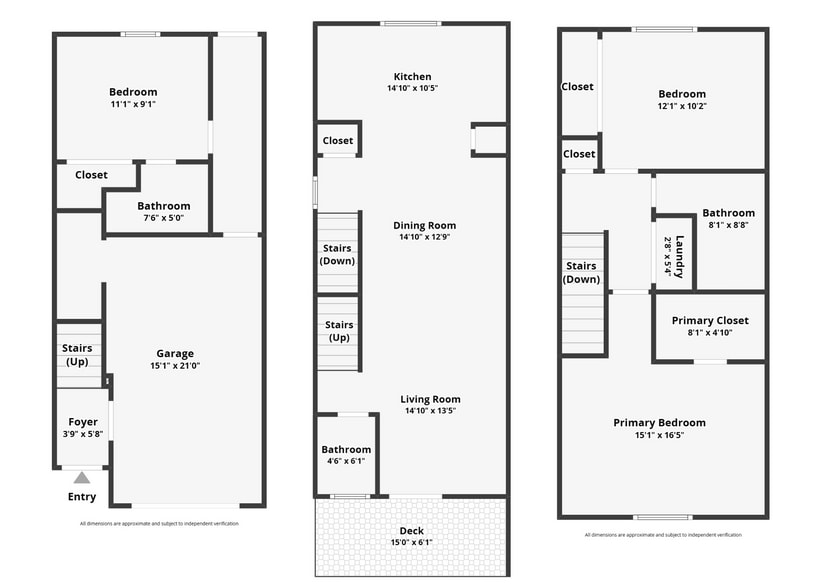
- Modern 2006 construction featuring eight large 1,528 SF townhouse-style 3BR/2.5BA units across 4 buildings
- Efficient roommate-friendly layouts with private lower-level suite, full bath, and separate exterior access
Executive Summary
Turn-key 8-plex investment opportunity in SE Portland, offering the ideal blend of strong current performance, tenant-friendly design, and future upside. Built in 2006, this well-maintained multi-family asset consists of 4 separate buildings with 8 townhouse-style units, a highly desirable layout that consistently attracts long-term tenants. Each spacious unit features 3 bedrooms, 2.5 bathrooms, 1,528 square feet, plus an attached garage, a premium feature that supports stronger rents and tenant retention. Designed for today’s rental demand, the floor plan is optimized for dual roommate or multigenerational living, with a private bedroom and full bath on the garage level offering both interior and exterior access, ideal for privacy, guest space, home office use, or shared living arrangements. The main living spaces are bright and functional, and every unit includes a spacious low-maintenance composite deck, giving tenants valuable outdoor living space without added upkeep concerns. The property offers ample parking with 20 off-street spaces in addition to the attached garages, a rare and valuable amenity in this close-in SE Portland location. Each residence also includes its own washer and dryer, further enhancing convenience and long-term tenant appeal. Currently 100% occupied and professionally managed, this is a true stabilized, income-producing asset with immediate cash flow from day one. In addition to its strong occupancy history, there remains clear room for income growth through moderate rent increases, making this an excellent opportunity for both seasoned and first-time multifamily investors seeking yield and appreciation potential. Ideally situated in a high-convenience SE Portland location near major bus lines, shopping, and everyday services, the property checks the boxes for accessibility, lifestyle, and consistent rental demand. A rare opportunity to acquire a modern, low-maintenance multifamily investment with strong unit design, premium amenities.
Financial Summary (Actual - 2025) |
Annual (CAD) | Annual Per SF (CAD) |
|---|---|---|
| Gross Rental Income |
$267,150
|
$21.85
|
| Other Income |
$14,430
|
$1.18
|
| Vacancy Loss |
$13,358
|
$1.09
|
| Effective Gross Income |
$268,223
|
$21.94
|
| Taxes |
$44,836
|
$3.67
|
| Operating Expenses |
$48,445
|
$3.96
|
| Total Expenses |
$93,281
|
$7.63
|
| Net Operating Income |
$174,942
|
$14.31
|
Financial Summary (Actual - 2025)
| Gross Rental Income (CAD) | |
|---|---|
| Annual | $267,150 |
| Annual Per SF | $21.85 |
| Other Income (CAD) | |
|---|---|
| Annual | $14,430 |
| Annual Per SF | $1.18 |
| Vacancy Loss (CAD) | |
|---|---|
| Annual | $13,358 |
| Annual Per SF | $1.09 |
| Effective Gross Income (CAD) | |
|---|---|
| Annual | $268,223 |
| Annual Per SF | $21.94 |
| Taxes (CAD) | |
|---|---|
| Annual | $44,836 |
| Annual Per SF | $3.67 |
| Operating Expenses (CAD) | |
|---|---|
| Annual | $48,445 |
| Annual Per SF | $3.96 |
| Total Expenses (CAD) | |
|---|---|
| Annual | $93,281 |
| Annual Per SF | $7.63 |
| Net Operating Income (CAD) | |
|---|---|
| Annual | $174,942 |
| Annual Per SF | $14.31 |
Property Facts
| Price | $2,671,500 CAD | Apartment Style | Townhome |
| Price Per Unit | $333,938 CAD | Building Class | B |
| Sale Type | Investment | Lot Size | 0.47 AC |
| Cap Rate | 6.55% | Building Size | 12,224 SF |
| Sale Condition | Bulk/Portfolio Sale | Average Occupancy | 100% |
| Gross Rent Multiplier | 9.57 | No. Stories | 3 |
| No. Units | 8 | Year Built | 2006 |
| Property Type | Multifamily | Parking Ratio | 2.29/1,000 SF |
| Property Subtype | Apartment | ||
| Zoning | R3 | ||
| Price | $2,671,500 CAD |
| Price Per Unit | $333,938 CAD |
| Sale Type | Investment |
| Cap Rate | 6.55% |
| Sale Condition | Bulk/Portfolio Sale |
| Gross Rent Multiplier | 9.57 |
| No. Units | 8 |
| Property Type | Multifamily |
| Property Subtype | Apartment |
| Apartment Style | Townhome |
| Building Class | B |
| Lot Size | 0.47 AC |
| Building Size | 12,224 SF |
| Average Occupancy | 100% |
| No. Stories | 3 |
| Year Built | 2006 |
| Parking Ratio | 2.29/1,000 SF |
| Zoning | R3 |
Amenities
Unit Amenities
- Wheelchair Accessible (Rooms)
Unit Mix Information
| Description | No. Units | Avg. Rent/Mo | SF |
|---|---|---|---|
| 3+2.5 | 8 | $2,740 CAD | 1,528 |
1 1
Moderately walkable
60/100
Moderately drivable
70/100
Some public transit
50/100
Moderately bikeable
60/100
Property Taxes
| Parcel Number | R116844 | Total Assessment | $1,667,781 CAD |
| Land Assessment | $0 CAD | Annual Taxes | $44,836 CAD ($3.67 CAD/SF) |
| Improvements Assessment | $0 CAD | Tax Year | 2025 |
Property Taxes
Parcel Number
R116844
Land Assessment
$0 CAD
Improvements Assessment
$0 CAD
Total Assessment
$1,667,781 CAD
Annual Taxes
$44,836 CAD ($3.67 CAD/SF)
Tax Year
2025
1 of 42
Videos
Matterport 3D Exterior
Matterport 3D Tour
Photos
Street View
Street
Map
1 of 1
Presented by
Northwest Realty Source
8423-8451 SE Brooklyn St
Already a member? Log In
Hmm, there seems to have been an error sending your message. Please try again.
Thanks! Your message was sent.
