Log In/Sign Up
Your email has been sent.
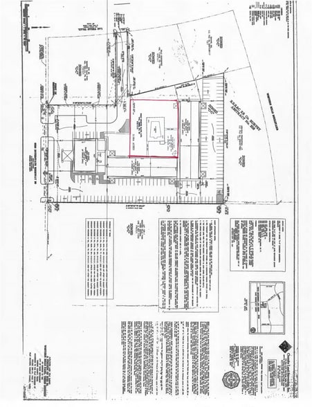
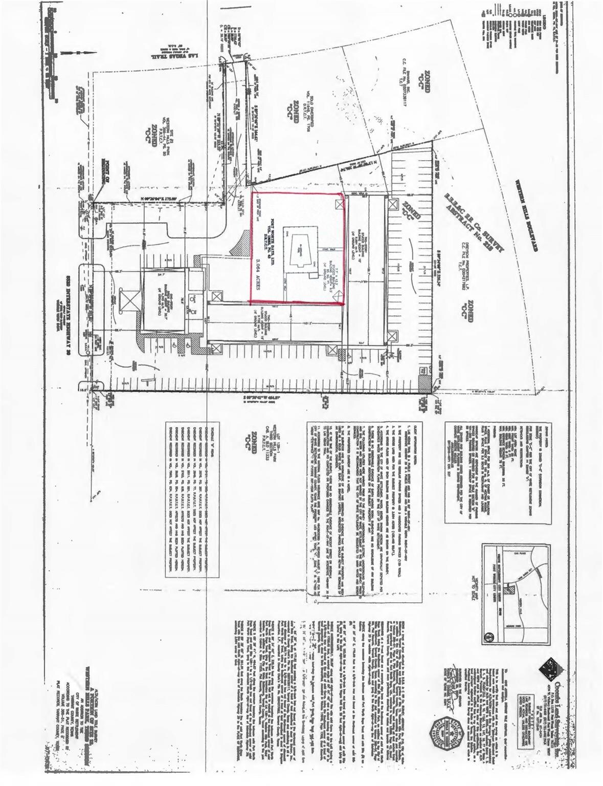
8520 West Fwy - 00000 W Freeway 0.41 Acres of Commercial Land Offered at $893,724 CAD in Fort Worth, TX 76108

Executive Summary
Buyer will be responsible for obtaining a new survey, and re-platting. Great location for a retail center, office complex, medical or hospitality use, or an animal clinic (buyer to verify with City). Land sits just off Las Vegas Trail exit, behind new McDonald’s and KFC, with excellent visibility from I-30 and high daily traffic. The City of White Settlement is aware this land is for sale—buyers must consult with the city regarding proposed use and approval. Approximate boundaries outlined in red on photo; exact square footage to be confirmed by buyer. Rapid area growth, minutes to Downtown Fort Worth, JRB Naval Base, Parker County, and Loop 820. Not likely suitable for industrial use. Fantastic location for new development. Dream it, design it, build it!
Property Facts
1 Lot Available
Lot
| Price | $893,724 CAD | Lot Size | 0.41 AC |
| Price Per AC | $2,179,814.55 CAD |
| Price | $893,724 CAD |
| Price Per AC | $2,179,814.55 CAD |
| Lot Size | 0.41 AC |
VISIBLE FROM I- 30! Unique opportunity to purchase a portion of land behind Red Roof Inn at 8520 West Freeway, White Settlement, TX 76108
1 1
Fairly walkable
50/100
Exceptionally drivable
100/100
Limited public transit
30/100
Fairly bikeable
40/100
1 of 2
Videos
Matterport 3D Exterior
Matterport 3D Tour
Photos
Street View
Street
Map
1 of 1
Presented by
Ameriplex Realtors
8520 West Fwy - 00000 W Freeway
Already a member? Log In
Hmm, there seems to have been an error sending your message. Please try again.
Thanks! Your message was sent.
