Log In/Sign Up
Enter your email to login or create a free account
This feature is unavailable at the moment.
We apologize, but the feature you are trying to access is currently unavailable. We are aware of this issue and our team is working hard to resolve the matter.
Please check back in a few minutes. We apologize for the inconvenience.
- LoopNet Team
This Property is no longer advertised on LoopNet.ca.
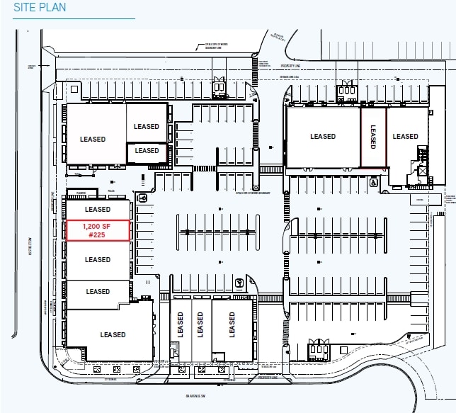
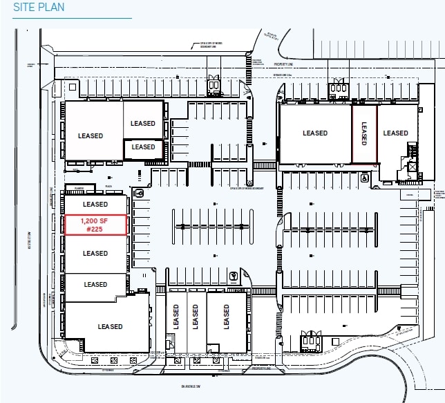
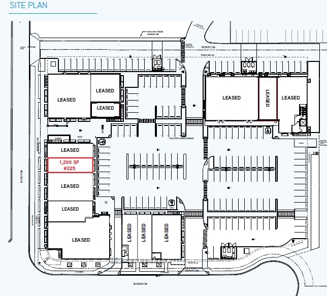
8560 8A Ave SW
Calgary, AB T3H 4C7
Bldg 100 · Property For Lease

Property Facts
| Property Type | Retail | Year Built | 2016 |
| Gross Leasable Area | 5,100 SF | Parking Ratio | 5.09/1,000 SF |
| Total Land Area | 2.64 AC |
| Property Type | Retail |
| Gross Leasable Area | 5,100 SF |
| Total Land Area | 2.64 AC |
| Year Built | 2016 |
| Parking Ratio | 5.09/1,000 SF |
Features and Amenities
- Bus Line
- Signage
Listing ID: 16891764
Date on Market: 2019-08-12
Last Updated:
Address: 8560 8A Ave SW, Calgary, AB T3H 4C7
The Suburban South Retail Property at 8560 8A Ave SW, Calgary, AB T3H 4C7 is no longer being advertised on LoopNet.ca. Contact the broker for information on availability.
RETAIL PROPERTIES IN NEARBY NEIGHBORHOODS
NEARBY LISTINGS
- 68-7930 Bowness Rd NW, Calgary AB
- 833 Na'a Dr SW, Calgary AB
- 4620-4624 16 Av NW, Calgary AB
- 2000 Veteran's Pl NW, Calgary AB
- 8620 Canada Olympic Dr SW, Calgary AB
- Greenwich Dr NW, Calgary AB
- 1000-2000 Veteran's Pl NW, Calgary AB
- 60 Bowridge Dr NW, Calgary AB
- 8561 8A Ave SW, Calgary AB
- 1851 Sirocco Dr SW, Calgary AB
- 8375 Broadcast Avenue Southwest, Calgary AB
- Greenwich Vw NW, Calgary AB
- 45 Greenbriar Way NW, Calgary AB
- 4935 40th Ave, Calgary AB
1 of 1
Videos
Matterport 3D Exterior
Matterport 3D Tour
Photos
Street View
Street
Map

Link copied
Your LoopNet account has been created!
Thank you for your feedback.
Please Share Your Feedback
We welcome any feedback on how we can improve LoopNet to better serve your needs.X
{{ getErrorText(feedbackForm.starRating, "rating") }}
255 character limit ({{ remainingChars() }} charactercharacters remainingover)
{{ getErrorText(feedbackForm.msg, "rating") }}
{{ getErrorText(feedbackForm.fname, "first name") }}
{{ getErrorText(feedbackForm.lname, "last name") }}
{{ getErrorText(feedbackForm.phone, "phone number") }}
{{ getErrorText(feedbackForm.phonex, "phone extension") }}
{{ getErrorText(feedbackForm.email, "email address") }}
You can provide feedback any time using the Help button at the top of the page.