Your email has been sent.
861 Harold Pl - Building 2 - 201-202 | 203 2,915 - 5,997 SF Flex Condo Units Offered at $1,498,029 - $3,082,909 CAD Per Unit in Chula Vista, CA 91914



Investment Highlights
- Ample Power
- Close proximity to numerous retail amenities
- 1 Mile to SR-125
- High quality concrete tilt up construction
4 Units Available
Unit 201/202
| Unit Size | 5,997 SF | Condo Use | Flex |
| Price | $3,082,909 CAD | Sale Type | Owner User |
| Price Per SF | $514.08 CAD |
| Unit Size | 5,997 SF |
| Price | $3,082,909 CAD |
| Price Per SF | $514.08 CAD |
| Condo Use | Flex |
| Sale Type | Owner User |
Sale Notes
100% HVAC
ESTABLISHED CHURCH
Unit 203
| Unit Size | 2,915 SF | Sale Type | Owner User |
| Price | $1,498,029 CAD | No. Parking Spaces | 2 |
| Price Per SF | $513.90 CAD | APN/Parcel ID | 595-710-08-15 |
| Condo Use | Flex |
| Unit Size | 2,915 SF |
| Price | $1,498,029 CAD |
| Price Per SF | $513.90 CAD |
| Condo Use | Flex |
| Sale Type | Owner User |
| No. Parking Spaces | 2 |
| APN/Parcel ID | 595-710-08-15 |
Description
Flex Space with Grade Level Roll Up Door
Sale Notes
Commercial Asset Advisors, as the exclusive marketing advisor, is pleased to present to qualified owner/users the opportunity to acquire condo units in a multi-tenant flex/industrial, located in Eastlake, Chula Vista.
The property is located in the thriving Master Planned community of Eastlake, one of San Diego’s most affluent, growing communities. The property’s location offers a significant labor pool within a 15-minute commute, an established and efficient freeway network, numerous amenities (restaurants, shopping centers, malls, and more), and many desirable housing opportunities. Furthermore, as part of the Eastlake business Park, it includes exclusive access to a 7 acre private park, which boasts basketball, tennis, and volleyball courts as well as soccer fields, softball fields, picnic areas, and open recreation space.
#203 - 861 Harold Pl (No Dimensions)_1 copy
20251212_175414970_iOS
20251212_175417773_iOS
Electrical Panel - 1
Electrical Panel - 2
Electrical Panel - 3
IMG_1992
IMG_1993
IMG_1994
IMG_1995
IMG_1996
IMG_1997
20251212_175322448_iOS
20251212_175330698_iOS
20251212_175342277_iOS
20251212_175154121_iOS
20251212_175202361_iOS
20251212_175203241_iOS
20251212_175205224_iOS
20251212_175207300_iOS
20251212_175210585_iOS
20251212_175214654_iOS
20251212_175230964_iOS
20251212_175236850_iOS
20251212_175241764_iOS
20251212_175253478_iOS
20251212_175304578_iOS
20251212_175311850_iOS
20251212_175142526_iOS
20251212_175139744_iOS
20251212_175138168_iOS
20251212_175133923_iOS
20251212_175125906_iOS
20251212_175123807_iOS
20251212_175121982_iOS
20251212_175119869_iOS
20251212_175118459_iOS
20251212_175116536_iOS
20251212_175115100_iOS
20251212_175105958_iOS
20251212_174923684_iOS
Unit 209
| Unit Size | 2,915 SF | Sale Type | Owner User |
| Price | $1,498,029 CAD | No. Parking Spaces | 2 |
| Price Per SF | $513.90 CAD | APN/Parcel ID | 595-710-08-15 |
| Condo Use | Flex |
| Unit Size | 2,915 SF |
| Price | $1,498,029 CAD |
| Price Per SF | $513.90 CAD |
| Condo Use | Flex |
| Sale Type | Owner User |
| No. Parking Spaces | 2 |
| APN/Parcel ID | 595-710-08-15 |
Description
Description:
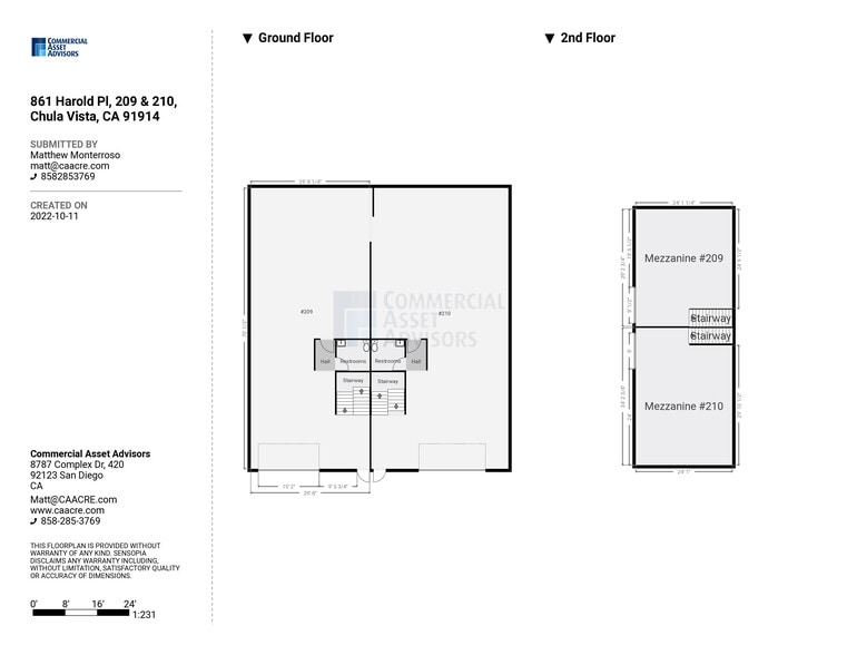
The property consists of two connected condo units with a flexible layout. The ground floor is built out as a gym or fitness studio with a reception and waiting area and two restrooms. Units 209 and 210 are connected at the rear of the space, and Unit 210 has two front entrances, providing a total of three entry doors across both units for higher capacity and easy circulation.
Both units have grade level glass roll up doors that bring in natural light, and the warehouse portion also includes a skylight for additional daylight. The second floor mezzanine is open with windows facing the front of the project and can be connected between the two units by adding a threshold if needed. Flexible zoning supports a wide range of potential uses.
Sale Notes
Commercial Asset Advisors, as the exclusive marketing advisor, is pleased to present to qualified owner/users the opportunity to acquire condo units in a multi-tenant flex/industrial, located in Eastlake, Chula Vista.
The property is located in the thriving Master Planned community of Eastlake, one of San Diego’s most affluent, growing communities. The property’s location offers a significant labor pool within a 15-minute commute, an established and efficient freeway network, numerous amenities (restaurants, shopping centers, malls, and more), and many desirable housing opportunities. Furthermore, as part of the Eastlake business Park, it includes exclusive access to a 7 acre private park, which boasts basketball, tennis, and volleyball courts as well as soccer fields, softball fields, picnic areas, and open recreation space.
Second Floor Mezzanine
Second Floor Mezzanine
209-210 Floor Plan
Second Floor Mezzanine
Suite 209 – Ground Level Below Mezzanine
High-Ceiling Warehouse
Suite 209 – Ground Floor Reception
Suite 209 – Second Floor Mezzanine (Wide Open Space)
Suite 209 – Second Floor Mezzanine (Wide Open Space)
Suite 210 – Second Floor Office Space
Suite 210 – Second Floor Office Space
Unit 210
| Unit Size | 3,360 SF | Sale Type | Owner User |
| Price | $1,726,717 CAD | No. Parking Spaces | 2 |
| Price Per SF | $513.90 CAD | APN/Parcel ID | 595-710-08-15 |
| Condo Use | Flex |
| Unit Size | 3,360 SF |
| Price | $1,726,717 CAD |
| Price Per SF | $513.90 CAD |
| Condo Use | Flex |
| Sale Type | Owner User |
| No. Parking Spaces | 2 |
| APN/Parcel ID | 595-710-08-15 |
Description
The property consists of two connected condo units with a flexible layout. The ground floor is built out as a gym or fitness studio with a reception and waiting area and two restrooms. Units 209 and 210 are connected at the rear of the space, and Unit 210 has two front entrances, providing a total of three entry doors across both units for higher capacity and easy circulation.
Both units have grade level glass roll up doors that bring in natural light, and the warehouse portion also includes a skylight for additional daylight. The second floor mezzanine is open with windows facing the front of the project and can be connected between the two units by adding a threshold if needed. Flexible zoning supports a wide range of potential uses.
Sale Notes
Commercial Asset Advisors, as the exclusive marketing advisor, is pleased to present to qualified owner/users the opportunity to acquire condo units in a multi-tenant flex/industrial, located in Eastlake, Chula Vista.
The property is located in the thriving Master Planned community of Eastlake, one of San Diego’s most affluent, growing communities. The property’s location offers a significant labor pool within a 15-minute commute, an established and efficient freeway network, numerous amenities (restaurants, shopping centers, malls, and more), and many desirable housing opportunities. Furthermore, as part of the Eastlake business Park, it includes exclusive access to a 7 acre private park, which boasts basketball, tennis, and volleyball courts as well as soccer fields, softball fields, picnic areas, and open recreation space.
20250515_155628345_iOS
209-210 Floor Plan
20250515_155654376_iOS
20250515_161618696_iOS
20250515_161629839_iOS
20250515_161638189_iOS
20250515_161954267_iOS
20250515_164502594_iOS
20250515_164517251_iOS
20250515_164555269_iOS
Property Facts
| Total Building Size | 28,644 SF | Typical Floor Size | 14,322 SF |
| Property Type | Flex | Year Built | 2009 |
| Property Subtype | Lot Size | 1.56 AC | |
| Building Class | B | Parking Ratio | 7.72/1,000 SF |
| Floors | 2 | ||
| Zoning | PCI | ||
| Total Building Size | 28,644 SF |
| Property Type | Flex |
| Property Subtype | |
| Building Class | B |
| Floors | 2 |
| Typical Floor Size | 14,322 SF |
| Year Built | 2009 |
| Lot Size | 1.56 AC |
| Parking Ratio | 7.72/1,000 SF |
| Zoning | PCI |
Amenities
- 24 Hour Access
- Mezzanine
- Air Conditioning
Presented by
861 Harold Pl - Building 2 - 201-202 | 203
Hmm, there seems to have been an error sending your message. Please try again.
Thanks! Your message was sent.




