Your email has been sent.
Freeport Corporate Center 8650 Freeport Pky 44,926 - 89,852 SF of Office Space Available in Irving, TX 75063



All Available Spaces(2)
Display Rental Rate as
- Space
- Size
- Term
- Rental Rate
- Space Use
- Build-Out
- Available
The office space features a main building entry with a storefront window system. This system consists of full-length, double-pane fixed windows with low-emissivity (low-e) or solar-tinted glazing, designed to optimize energy efficiency. The windows are set in sleek aluminum framing, ensuring both durability and a modern aesthetic. The fixed units enhance the overall appearance of the office while allowing ample natural light to enter the space, contributing to a bright and welcoming environment.
- Fully Built-Out as Standard Office
- Can be combined with additional space(s) for up to 89,852 SF of adjacent space
- Mostly Open Floor Plan Layout
The office space features a main building entry with a storefront window system. This system consists of full-length, double-pane fixed windows with low-emissivity (low-e) or solar-tinted glazing, designed to optimize energy efficiency. The windows are set in sleek aluminum framing, ensuring both durability and a modern aesthetic. The fixed units enhance the overall appearance of the office while allowing ample natural light to enter the space, contributing to a bright and welcoming environment.
- Fully Built-Out as Standard Office
- 4 Conference Rooms
- Mostly Open Floor Plan Layout
- Can be combined with additional space(s) for up to 89,852 SF of adjacent space
| Space | Size | Term | Rental Rate | Space Use | Build-Out | Available |
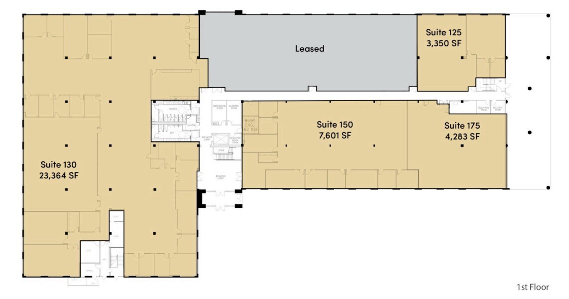
| 1st Floor | 44,926 SF | Negotiable | Upon Request Upon Request Upon Request Upon Request | Office | Full Build-Out | Now |
| 2nd Floor | 44,926 SF | Negotiable | Upon Request Upon Request Upon Request Upon Request | Office | Full Build-Out | Now |
1st Floor
| Size |
| 44,926 SF |
| Term |
| Negotiable |
| Rental Rate |
| Upon Request Upon Request Upon Request Upon Request |
| Space Use |
| Office |
| Build-Out |
| Full Build-Out |
| Available |
| Now |
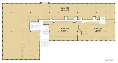
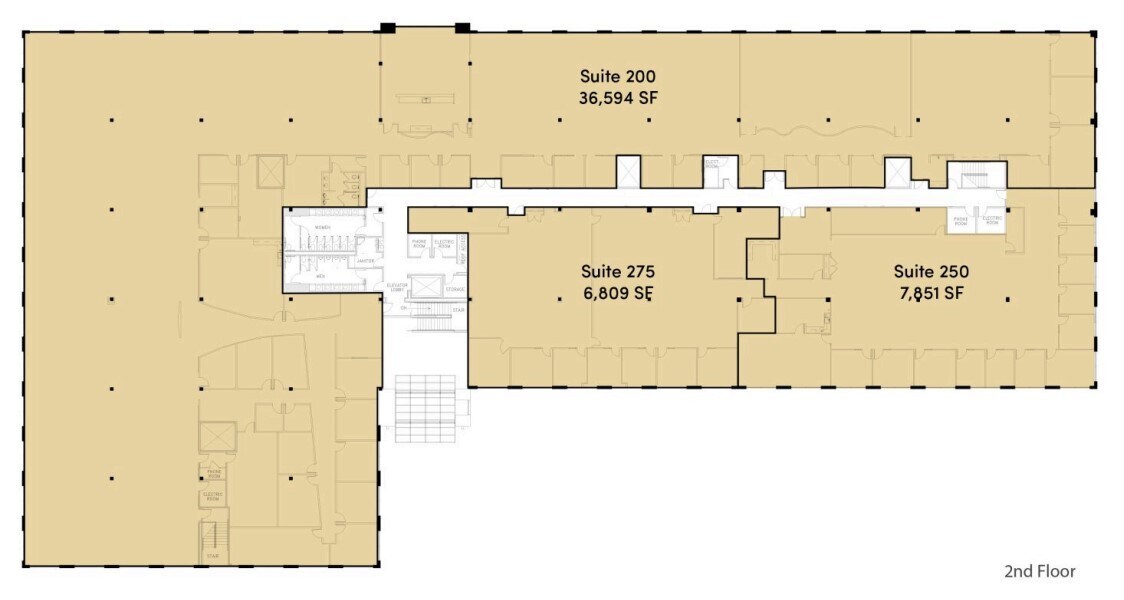
2nd Floor
| Size |
| 44,926 SF |
| Term |
| Negotiable |
| Rental Rate |
| Upon Request Upon Request Upon Request Upon Request |
| Space Use |
| Office |
| Build-Out |
| Full Build-Out |
| Available |
| Now |
1st Floor
| Size | 44,926 SF |
| Term | Negotiable |
| Rental Rate | Upon Request |
| Space Use | Office |
| Build-Out | Full Build-Out |
| Available | Now |
The office space features a main building entry with a storefront window system. This system consists of full-length, double-pane fixed windows with low-emissivity (low-e) or solar-tinted glazing, designed to optimize energy efficiency. The windows are set in sleek aluminum framing, ensuring both durability and a modern aesthetic. The fixed units enhance the overall appearance of the office while allowing ample natural light to enter the space, contributing to a bright and welcoming environment.
- Fully Built-Out as Standard Office
- Mostly Open Floor Plan Layout
- Can be combined with additional space(s) for up to 89,852 SF of adjacent space
2nd Floor
| Size | 44,926 SF |
| Term | Negotiable |
| Rental Rate | Upon Request |
| Space Use | Office |
| Build-Out | Full Build-Out |
| Available | Now |
The office space features a main building entry with a storefront window system. This system consists of full-length, double-pane fixed windows with low-emissivity (low-e) or solar-tinted glazing, designed to optimize energy efficiency. The windows are set in sleek aluminum framing, ensuring both durability and a modern aesthetic. The fixed units enhance the overall appearance of the office while allowing ample natural light to enter the space, contributing to a bright and welcoming environment.
- Fully Built-Out as Standard Office
- Mostly Open Floor Plan Layout
- 4 Conference Rooms
- Can be combined with additional space(s) for up to 89,852 SF of adjacent space
Features and Amenities
- Courtyard
- Air Conditioning
Property Facts
Presented by
Freeport Corporate Center | 8650 Freeport Pky
Hmm, there seems to have been an error sending your message. Please try again.
Thanks! Your message was sent.





