Log In/Sign Up
Your email has been sent.
869 Pulaski Hwy
Goshen, NY 10924
Aurora · Land For Sale
·
51.00 AC


EXECUTIVE SUMMARY
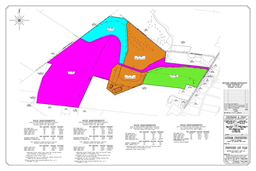
Proposed site plans are being submitted for 3 warehouse sites totaling 655,000 sf. Property is zoned and presently is being used for warehouse. The existing site is not part of the offering. The address and SBLS are 869 and 853 Pulaski Highway; 24-1-113, 24-1-108.2 respectively and 32 Black Dirt Drive.
PROPERTY FACTS
| Sale Type | Investment or Owner User | Property Subtype | Commercial |
| No. Lots | 1 | Proposed Use | Industrial |
| Property Type | Land | Total Lot Size | 51.00 AC |
| Sale Type | Investment or Owner User |
| No. Lots | 1 |
| Property Type | Land |
| Property Subtype | Commercial |
| Proposed Use | Industrial |
| Total Lot Size | 51.00 AC |
1 LOT AVAILABLE
Lot
| Price | $6,225,255 CAD | Lot Size | 51.00 AC |
| Price Per AC | $122,063.82 CAD |
| Price | $6,225,255 CAD |
| Price Per AC | $122,063.82 CAD |
| Lot Size | 51.00 AC |
655,000 of proposed warehouse(s) to be built on this site. Selling site subject to for a qualified developer
1 of 4
VIDEOS
MATTERPORT 3D EXTERIOR
MATTERPORT 3D TOUR
PHOTOS
STREET VIEW
STREET
MAP
