Log In/Sign Up
Your email has been sent.
87 Jefferson St 748 SF Office/Retail Condo Unit Offered at $765,901 CAD in Hoboken, NJ 07030

Investment Highlights
- Prime location in the heart of Hoboken
- Walking distance to PATH and NJ Transit stations
- New construction
- Excellent visibility with direct street frontage
1 Unit Available
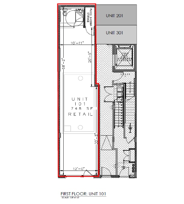
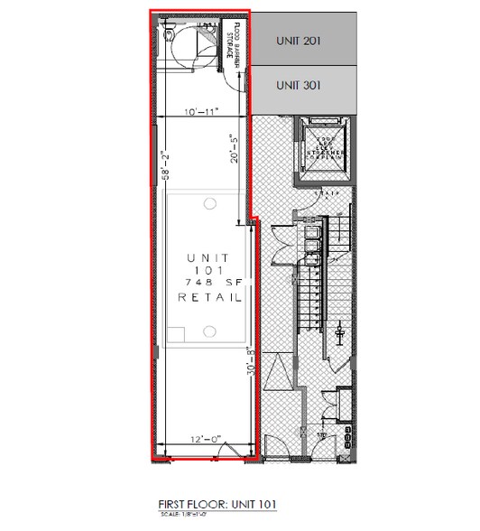
Unit 101
| Unit Size | 748 SF | Sale Type | Investment or Owner User |
| Price | $765,901 CAD | Cap Rate | 8.00% |
| Price Per SF | $1,023.93 CAD | NOI | $61,272.06 CAD |
| Condo Use | Office/Retail |
| Unit Size | 748 SF |
| Price | $765,901 CAD |
| Price Per SF | $1,023.93 CAD |
| Condo Use | Office/Retail |
| Sale Type | Investment or Owner User |
| Cap Rate | 8.00% |
| NOI | $61,272.06 CAD |
Floor Plan
1 of 1
Videos
Matterport 3D Exterior
Matterport 3D Tour
Photos
Street View
Street
Map
Property Facts
The following property facts apply to the entire building. Details for individual condo units may vary and are listed in the unit information above.
| Total Building Size | 5,000 SF | Floors | 5 |
| Property Type | Retail (Condo) | Typical Floor Size | 1,000 SF |
| Property Subtype | Storefront Retail/Residential | Year Built | 1950 |
| Building Class | C | Lot Size | 0.06 AC |
| Zoning | R-3 | ||
| Total Building Size | 5,000 SF |
| Property Type | Retail (Condo) |
| Property Subtype | Storefront Retail/Residential |
| Building Class | C |
| Floors | 5 |
| Typical Floor Size | 1,000 SF |
| Year Built | 1950 |
| Lot Size | 0.06 AC |
| Zoning | R-3 |
Exceptionally walkable
100/100
Fairly drivable
40/100
Exceptional public transit
90/100
Moderately bikeable
70/100
Nearby Major Retailers
1 of 2
Videos
Matterport 3D Exterior
Matterport 3D Tour
Photos
Street View
Street
Map
Presented by
87 Jefferson St
Already a member? Log In
Hmm, there seems to have been an error sending your message. Please try again.
Thanks! Your message was sent.

