Your email has been sent.
Highlights
- Immediate access to I-75 (1 mile) and I-70 (3.1 miles) with proximity to Dayton International Airport (3.8 miles).
- 13 dock doors, one drive-in door, and 114’ truck court depth for streamlined loading and distribution.
- ESFR fire protection, 4,000-amp power capacity, and concrete tilt-wall construction for durability and safety.
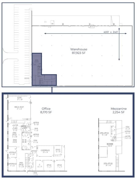
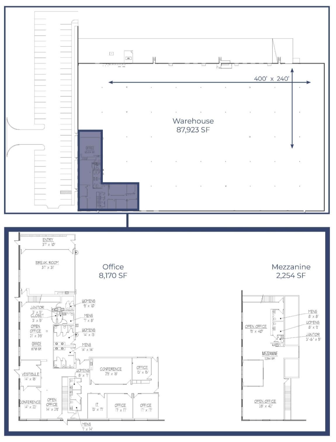
- ±96,093 SF (+2,254 SF additional office) facility with 21’ clear height and 40’ x 40’ column spacing for efficient operations.
- Recent renovations include new LED lighting, dock doors, exterior paint, and office upgrades.
Features
All Available Space(1)
Display Rental Rate as
- Space
- Size
- Term
- Rental Rate
- Space Use
- Build-Out
- Available
The 2 spaces in this building must be leased together, for a total size of 98,347 SF (Contiguous Area):
This industrial facility offers ±96,093 SF plus an additional 2,254 SF of functional space in Vandalia, Ohio, with immediate access to I-75 and I-70 and just 3.8 miles from Dayton International Airport.
- Listed rate may not include certain utilities, building services and property expenses
- 1 Drive Bay
- Open Floor Plan Layout
- Includes 8,170 SF of dedicated office space
- 13 Loading Docks
- Fits 6 - 19 People
| Space | Size | Term | Rental Rate | Space Use | Build-Out | Available |
| 1st Floor, 2nd Floor | 98,347 SF | Negotiable | Upon Request Upon Request Upon Request Upon Request | Industrial | Full Build-Out | Now |
1st Floor, 2nd Floor
The 2 spaces in this building must be leased together, for a total size of 98,347 SF (Contiguous Area):
| Size |
|
1st Floor - 96,093 SF
2nd Floor - 2,254 SF
|
| Term |
| Negotiable |
| Rental Rate |
| Upon Request Upon Request Upon Request Upon Request |
| Space Use |
| Industrial |
| Build-Out |
| Full Build-Out |
| Available |
| Now |
1st Floor, 2nd Floor
| Size |
1st Floor - 96,093 SF
2nd Floor - 2,254 SF
|
| Term | Negotiable |
| Rental Rate | Upon Request |
| Space Use | Industrial |
| Build-Out | Full Build-Out |
| Available | Now |
This industrial facility offers ±96,093 SF plus an additional 2,254 SF of functional space in Vandalia, Ohio, with immediate access to I-75 and I-70 and just 3.8 miles from Dayton International Airport.
- Listed rate may not include certain utilities, building services and property expenses
- Includes 8,170 SF of dedicated office space
- 1 Drive Bay
- 13 Loading Docks
- Open Floor Plan Layout
- Fits 6 - 19 People
Property Overview
The property sits on 8.2 acres and features a 21-foot clear height, 40’ x 40’ column spacing, and a truck court depth of 114 feet, supporting efficient logistics and distribution operations.The building includes 13 dock doors, one drive-in door, and a robust power supply of 4,000 amps at 480/277 volts. Recent upgrades include new LED lighting, updated dock doors and seals, and fresh paint throughout the warehouse and office areas. Additional improvements such as new exterior paint, asphalt paving, and enhanced fire protection with ESFR sprinklers further enhance operational reliability. Located within a one-day drive to over 60% of the U.S. population, this site provides exceptional connectivity to major markets and transportation hubs, making it an optimal choice for manufacturing, distribution, or logistics users seeking a well-positioned and modernized facility.
Warehouse Facility Facts
Presented by
875 Center Dr
Hmm, there seems to have been an error sending your message. Please try again.
Thanks! Your message was sent.






