Your email has been sent.
Centreville Road Centre 8780 Centreville Rd 1,537 - 4,035 SF of Space Available in Manassas, VA 20110



Highlights
- Prime Location: Situated along the high-traffic Route 28 corridor for excellent visibility.
- Zoning: B-4 zoning, suitable for a wide range of commercial uses (retail, office, etc.).
- Ample Parking: 46-space surface parking lot for convenient access.
Space Availability (2)
Display Rental Rate as
- Space
- Size
- Ceiling
- Term
- Rental Rate
- Rent Type
| Space | Size | Ceiling | Term | Rental Rate | Rent Type | |
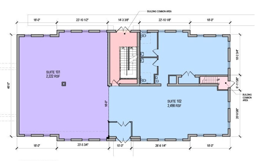
| 1st Floor, Ste 102 | 2,498 SF | 10’ - 12’ | Negotiable | Upon Request Upon Request Upon Request Upon Request | Triple Net (NNN) | |
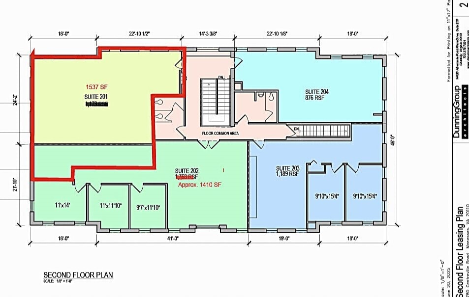
| 2nd Floor, Ste 201 | 1,537 SF | 9’ - 10’ | Negotiable | Upon Request Upon Request Upon Request Upon Request | Modified Gross |
1st Floor, Ste 102
Prime retail space located in a high-visibility, high-traffic area—ideal for a variety of business uses. This versatile location is well-suited for a restaurant, bakery, carry-out concept, café, nail salon, or spa. Surrounded by dense residential neighborhoods and established commercial developments, the site offers excellent exposure and accessibility, making it a strong choice for customer-facing businesses.
- Lease rate does not include utilities, property expenses or building services
- Located in-line with other retail
- Central Air Conditioning
- Corner Space
- Exposed Ceiling
- Finished Ceilings: 10’ - 12’
- Great Location
- Suited for a restaurant, bakery, carry-out, Cafe
2nd Floor, Ste 201
Prime retail space located in a high-visibility, high-traffic area—ideal for a variety of business uses. This versatile location is well-suited for a restaurant, bakery, carry-out concept, café, nail salon, or spa. Surrounded by dense residential neighborhoods and established commercial developments, the site offers excellent exposure and accessibility, making it a strong choice for customer-facing businesses.
- Listed rate may not include certain utilities, building services and property expenses
- Partially Built-Out as Standard Retail Space
- Open Floor Plan Layout
- Finished Ceilings: 9’ - 10’
- Space is in Excellent Condition
- Central Air Conditioning
- Drop Ceilings
- Recessed Lighting
- Emergency Lighting
- Natural Light
- Open-Plan
- Smoke Detector
- Great natural light
- Open Space to accommodate any space requirement
Rent Types
The rent amount and type that the tenant (lessee) will be responsible to pay to the landlord (lessor) throughout the lease term is negotiated prior to both parties signing a lease agreement. The rent type will vary depending upon the services provided. For example, triple net rents are typically lower than full service rents due to additional expenses the tenant is required to pay in addition to the base rent. Contact the listing broker for a full understanding of any associated costs or additional expenses for each rent type.
1. Full Service: A rental rate that includes normal building standard services as provided by the landlord within a base year rental.
2. Double Net (NN): Tenant pays for only two of the building expenses; the landlord and tenant determine the specific expenses prior to signing the lease agreement.
3. Triple Net (NNN): A lease in which the tenant is responsible for all expenses associated with their proportional share of occupancy of the building.
4. Modified Gross: Modified Gross is a general type of lease rate where typically the tenant will be responsible for their proportional share of one or more of the expenses. The landlord will pay the remaining expenses. See the below list of common Modified Gross rental rate structures: 4. Plus All Utilities: A type of Modified Gross Lease where the tenant is responsible for their proportional share of utilities in addition to the rent. 4. Plus Cleaning: A type of Modified Gross Lease where the tenant is responsible for their proportional share of cleaning in addition to the rent. 4. Plus Electric: A type of Modified Gross Lease where the tenant is responsible for their proportional share of the electrical cost in addition to the rent. 4. Plus Electric & Cleaning: A type of Modified Gross Lease where the tenant is responsible for their proportional share of the electrical and cleaning cost in addition to the rent. 4. Plus Utilities and Char: A type of Modified Gross Lease where the tenant is responsible for their proportional share of the utilities and cleaning cost in addition to the rent. 4. Industrial Gross: A type of Modified Gross lease where the tenant pays one or more of the expenses in addition to the rent. The landlord and tenant determine these prior to signing the lease agreement.
5. Tenant Electric: The landlord pays for all services and the tenant is responsible for their usage of lights and electrical outlets in the space they occupy.
6. Negotiable or Upon Request: Used when the leasing contact does not provide the rent or service type.
7. TBD: To be determined; used for buildings for which no rent or service type is known, commonly utilized when the buildings are not yet built.
Select Tenants at Centreville Road Centre
- Tenant
- Description
- US Locations
- Reach
- GTAX Consulting Group
- Finance and Insurance
- -
- -
- Integrity Tax Pro
- Finance and Insurance
- -
- -
- Premier Insurance Group
- Finance Company
- 2
- Local
- Yum Yum Donut
- Accommodation and Food Services
- 1
- -
| Tenant | Description | US Locations | Reach |
| GTAX Consulting Group | Finance and Insurance | - | - |
| Integrity Tax Pro | Finance and Insurance | - | - |
| Premier Insurance Group | Finance Company | 2 | Local |
| Yum Yum Donut | Accommodation and Food Services | 1 | - |
Property Facts
| Total Space Available | 4,035 SF | Year Built | 1987 |
| Property Type | Retail | Parking Ratio | 4.25/1,000 SF |
| Gross Leasable Area | 10,832 SF |
| Total Space Available | 4,035 SF |
| Property Type | Retail |
| Gross Leasable Area | 10,832 SF |
| Year Built | 1987 |
| Parking Ratio | 4.25/1,000 SF |
About the Property
8780 Centreville Road in Manassas, VA, offers a prime commercial property with excellent visibility and accessibility. This two-story building spans 10,832 square feet and is situated along the high-traffic Route 28 corridor. The property includes a 46-space parking lot, making it ideal for various businesses, particularly those requiring convenient customer access. Zoned B-4 for a wide range of commercial uses, the property is adaptable for retail, office, or other business needs.
- 24 Hour Access
- Restaurant
- Signage
- Air Conditioning
Demographics
Demographics
Nearby Major Retailers
Presented by
Centreville Road Centre | 8780 Centreville Rd
Hmm, there seems to have been an error sending your message. Please try again.
Thanks! Your message was sent.






