Log In/Sign Up
Your email has been sent.
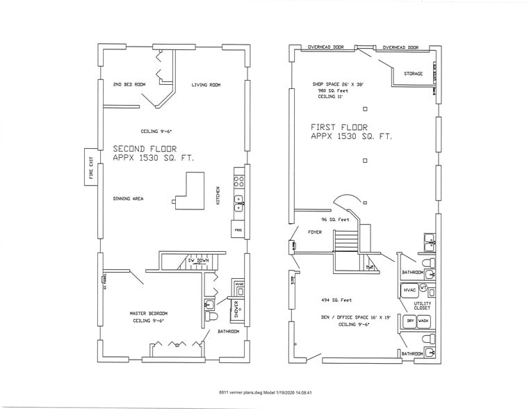
8811 Vernier Rd 3,300 SF Retail Building Ira, MI 48023 $527,608 CAD ($159.88 CAD/SF)



Investment Highlights
- Contact Broker for More Details
Executive Summary
Great building with excellent frontage, offering outstanding visibility and versatility for a wide range of uses. The property provides multiple income opportunities, highlighted by an established Airbnb on the second level. Ideal for an owner-user seeking office space with a small retail or shop component, or for an investor looking to maximize returns by leasing the first floor while maintaining short-term rental income above. Additionally, the layout supports a live/work configuration, allowing an owner to operate their business on the first floor while utilizing the upper level as a private residence.
Property Facts
Sale Type
Investment or Owner User
Property Type
Retail
Property Subtype
Building Size
3,300 SF
Building Class
C
Year Built
1907
Price
$527,608 CAD
Price Per SF
$159.88 CAD
Tenancy
Multiple
Building Height
2 Stories
Building FAR
0.45
Lot Size
0.17 AC
Zoning
B2
Parking
6 Spaces (2 Spaces per 1,000 SF Leased)
Frontage
65’ on VERNIER RD
Somewhat walkable
30/100
Exceptionally drivable
90/100
Somewhat bikeable
20/100
Property Taxes
| Parcel Number | 23-640-0084-000 | Improvements Assessment | $0 CAD |
| Land Assessment | $0 CAD | Total Assessment | $124,015 CAD |
Property Taxes
Parcel Number
23-640-0084-000
Land Assessment
$0 CAD
Improvements Assessment
$0 CAD
Total Assessment
$124,015 CAD
1 of 4
Videos
Matterport 3D Exterior
Matterport 3D Tour
Photos
Street View
Street
Map
Presented by
Company Not Provided
8811 Vernier Rd
Already a member? Log In
Hmm, there seems to have been an error sending your message. Please try again.
Thanks! Your message was sent.
