Your email has been sent.
Park Highlights
- Prime location near Highway 290 and Beltway 8
- Pull-up parking for easy client access
- DDA-compliant restrooms in every suite
- Complimentary community conference room for tenants
- New construction with modern finishes throughout
- Convenient access to Houston business hubs
Park Facts
All Available Space(1)
Display Rental Rate as
- Space
- Size
- Term
- Rental Rate
- Space Use
- Build-Out
- Available
Suite 304 is a 653 SF condo-style office located within Infinity Office Park at Jersey Village, a newly constructed business park offering a clean professional setting with modern site planning and ample surface parking. The suite is designed for efficient day-to-day operations and is well suited for professional service, medical, administrative, or small business users seeking a new-build office environment. The office is configured with a defined reception or open work area at the entry, providing a professional front-of-house layout suitable for client-facing operations. From the reception area, the suite transitions into a private office corridor serving three (3) enclosed offices, allowing for separation between administrative functions and private workspace. The suite includes a dedicated breakroom with built-in cabinet and sink, along with space for a refrigerator, supporting daily staff use without sacrificing office area. A private ADA-compliant restroom is located within the suite for tenant and client convenience. Interior finishes reflect new construction standards and include luxury vinyl plank flooring, recessed lighting, and modern millwork. The layout provides a functional balance of private offices and shared work space, making the suite suitable for a wide range of business uses.
- Listed rate may not include certain utilities, building services and property expenses
- Fits 2 - 6 People
- Finished Ceilings: 10’
- Central Air and Heating
- Private Restrooms
- Accent Lighting
- Smoke Detector
- Modern New Construction Design
- ADA-Compliant Restroom
- Separation of Public & Private Areas
- Fully Built-Out as Standard Office
- 3 Private Offices
- Space is in Excellent Condition
- Reception Area
- Recessed Lighting
- DDA Compliant
- Wheelchair Accessible
- Three (3) Private Offices
- Space for a full size Refrigerator
| Space | Size | Term | Rental Rate | Space Use | Build-Out | Available |
| 1st Floor, Ste 104 | 653 SF | 2-5 Years | $47.58 CAD/SF/YR $3.97 CAD/SF/MO $31,071 CAD/YR $2,589 CAD/MO | Office | Full Build-Out | Now |
8815 West Rd - 1st Floor - Ste 104
8815 West Rd - 1st Floor - Ste 104
| Size | 653 SF |
| Term | 2-5 Years |
| Rental Rate | $47.58 CAD/SF/YR |
| Space Use | Office |
| Build-Out | Full Build-Out |
| Available | Now |
Suite 304 is a 653 SF condo-style office located within Infinity Office Park at Jersey Village, a newly constructed business park offering a clean professional setting with modern site planning and ample surface parking. The suite is designed for efficient day-to-day operations and is well suited for professional service, medical, administrative, or small business users seeking a new-build office environment. The office is configured with a defined reception or open work area at the entry, providing a professional front-of-house layout suitable for client-facing operations. From the reception area, the suite transitions into a private office corridor serving three (3) enclosed offices, allowing for separation between administrative functions and private workspace. The suite includes a dedicated breakroom with built-in cabinet and sink, along with space for a refrigerator, supporting daily staff use without sacrificing office area. A private ADA-compliant restroom is located within the suite for tenant and client convenience. Interior finishes reflect new construction standards and include luxury vinyl plank flooring, recessed lighting, and modern millwork. The layout provides a functional balance of private offices and shared work space, making the suite suitable for a wide range of business uses.
- Listed rate may not include certain utilities, building services and property expenses
- Fully Built-Out as Standard Office
- Fits 2 - 6 People
- 3 Private Offices
- Finished Ceilings: 10’
- Space is in Excellent Condition
- Central Air and Heating
- Reception Area
- Private Restrooms
- Recessed Lighting
- Accent Lighting
- DDA Compliant
- Smoke Detector
- Wheelchair Accessible
- Modern New Construction Design
- Three (3) Private Offices
- ADA-Compliant Restroom
- Space for a full size Refrigerator
- Separation of Public & Private Areas
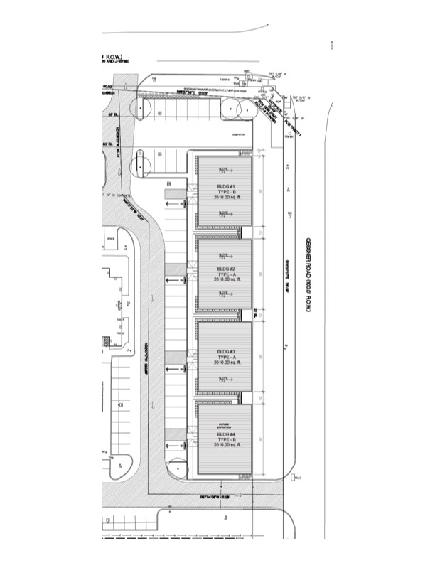
Site Plan
Park Overview
Welcome to Infinity Office Park at Jersey Village, located at 8815 West Rd., Houston, TX 77064—a newly developed, upscale condo-style office park offering a premium business environment with unmatched convenience. Set on 2.38 acres, Infinity Office Park features three modern buildings with 13 meticulously designed office suites, each with spacious layouts that include a fully compliant DDA restroom, dedicated break area, and a professional finish throughout. This business park provides an ideal location for companies looking for visibility and accessibility, with West Road placing you near major highways like Highway 290, Beltway 8, and the Grand Parkway (TX-99). This strategic positioning grants direct access to nearby business districts, prominent realtors, and a well-connected professional network. Infinity Office Park’s thoughtful layout includes open, pull-up parking, allowing clients and employees to park just steps from their office, adding convenience to their daily routines. Tenants also enjoy complimentary access to a shared community conference room—perfect for hosting meetings and collaborative sessions in a sophisticated, comfortable setting. For those seeking a modern, high-end space with proximity to key city routes, Infinity Office Park at Jersey Village is ready to welcome you. Discover your next business home in a dynamic location built with every detail in mind.
- 24 Hour Access
- Corner Lot
- Security System
- Signage
- Tenant Controlled HVAC
- Wheelchair Accessible
- Storage Space
- Monument Signage
- Air Conditioning
- Smoke Detector
Presented by
Infinity Office Park at Jersey Village | Houston, TX 77064
Hmm, there seems to have been an error sending your message. Please try again.
Thanks! Your message was sent.






