Your email has been sent.
HIGHLIGHTS
- Rare opportunity to lease entire industrial project for $1.70/sf/month Industrial Gross.
- Great warehouse/ manufacturing facility.
- Excellent Golden State Fwy (5) accessibility.
- Can be leased as individual units or all contiguous in entire project.
- Main street exposure, with access to front and rear yard.
- Entire project currently being renovated.
FEATURES
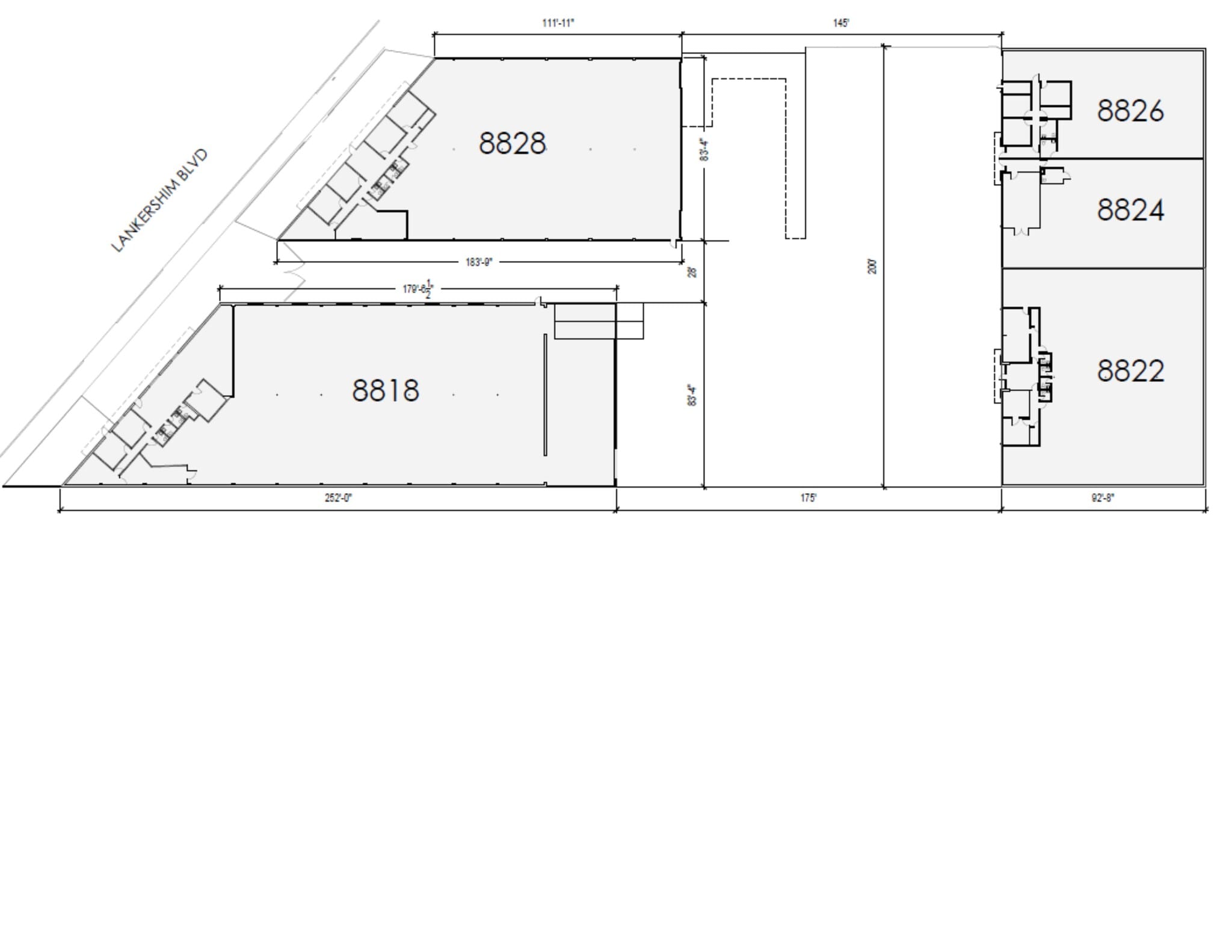
ALL AVAILABLE SPACES(3)
Display Rental Rate as
- SPACE
- SIZE
- TERM
- RENTAL RATE
- SPACE USE
- CONDITION
- AVAILABLE
Low Teaser Rate of $1.00 PSF for the first six (6) months of a new deal. Rare freestanding industrial building with main street frontage. Excellent distribution/manufacturing facility. Great loading including 1 dock position. Located adjacent to the I-5 freeway.
- Listed rate may not include certain utilities, building services and property expenses
- 1 Drive Bay
- Includes 2,569 SF of dedicated office space
- Can be combined with additional space(s) for up to 36,300 SF of adjacent space
Low Teaser Rate of $1.00 PSF for the first six (6) months of a new deal. Great warehouse/ manufacturing facility. Shared fenced yard. Entire project currently being renovated.
- Listed rate may not include certain utilities, building services and property expenses
- 2 Drive Ins
- Private Restrooms
- Office HVAC.
- 14 parking spaces.
- Includes 1,560 SF of dedicated office space
- Can be combined with additional space(s) for up to 36,300 SF of adjacent space
- 200A, 120/240 V, Ph3
- Excellent Golden State Fwy (5) accessibility.
Low Teaser Rate of $1.00 PSF for the first six (6) months of a new deal. Great warehouse/ manufacturing facility. Main Street exposure. Front and rear fenced yard. Entire project currently being renovated.
- Listed rate may not include certain utilities, building services and property expenses
- 2 Drive Ins
- Private Restrooms
- Office HVAC.
- 20 Parking spaces.
- Includes 2,055 SF of dedicated office space
- Can be combined with additional space(s) for up to 36,300 SF of adjacent space
- Excellent Golden State Fwy (5) accessibility.
- 400 A, 120/240 V, Ph 3, W 4.
| Space | Size | Term | Rental Rate | Space Use | Condition | Available |
| 1st Floor - 8818 | 15,000 SF | Negotiable | $26.30 CAD/SF/YR $2.19 CAD/SF/MO $394,487 CAD/YR $32,874 CAD/MO | Industrial | Full Build-Out | Now |
| 1st Floor - 8822 | 9,000 SF | Negotiable | $27.30 CAD/SF/YR $2.28 CAD/SF/MO $245,738 CAD/YR $20,478 CAD/MO | Industrial | - | Now |
| 1st Floor - 8828 | 12,300 SF | Negotiable | $26.63 CAD/SF/YR $2.22 CAD/SF/MO $327,600 CAD/YR $27,300 CAD/MO | Industrial | - | Now |
1st Floor - 8818
| Size |
| 15,000 SF |
| Term |
| Negotiable |
| Rental Rate |
| $26.30 CAD/SF/YR $2.19 CAD/SF/MO $394,487 CAD/YR $32,874 CAD/MO |
| Space Use |
| Industrial |
| Condition |
| Full Build-Out |
| Available |
| Now |
1st Floor - 8822
| Size |
| 9,000 SF |
| Term |
| Negotiable |
| Rental Rate |
| $27.30 CAD/SF/YR $2.28 CAD/SF/MO $245,738 CAD/YR $20,478 CAD/MO |
| Space Use |
| Industrial |
| Condition |
| - |
| Available |
| Now |
1st Floor - 8828
| Size |
| 12,300 SF |
| Term |
| Negotiable |
| Rental Rate |
| $26.63 CAD/SF/YR $2.22 CAD/SF/MO $327,600 CAD/YR $27,300 CAD/MO |
| Space Use |
| Industrial |
| Condition |
| - |
| Available |
| Now |
1st Floor - 8818
| Size | 15,000 SF |
| Term | Negotiable |
| Rental Rate | $26.30 CAD/SF/YR |
| Space Use | Industrial |
| Condition | Full Build-Out |
| Available | Now |
Low Teaser Rate of $1.00 PSF for the first six (6) months of a new deal. Rare freestanding industrial building with main street frontage. Excellent distribution/manufacturing facility. Great loading including 1 dock position. Located adjacent to the I-5 freeway.
- Listed rate may not include certain utilities, building services and property expenses
- Includes 2,569 SF of dedicated office space
- 1 Drive Bay
- Can be combined with additional space(s) for up to 36,300 SF of adjacent space
1st Floor - 8822
| Size | 9,000 SF |
| Term | Negotiable |
| Rental Rate | $27.30 CAD/SF/YR |
| Space Use | Industrial |
| Condition | - |
| Available | Now |
Low Teaser Rate of $1.00 PSF for the first six (6) months of a new deal. Great warehouse/ manufacturing facility. Shared fenced yard. Entire project currently being renovated.
- Listed rate may not include certain utilities, building services and property expenses
- Includes 1,560 SF of dedicated office space
- 2 Drive Ins
- Can be combined with additional space(s) for up to 36,300 SF of adjacent space
- Private Restrooms
- 200A, 120/240 V, Ph3
- Office HVAC.
- Excellent Golden State Fwy (5) accessibility.
- 14 parking spaces.
1st Floor - 8828
| Size | 12,300 SF |
| Term | Negotiable |
| Rental Rate | $26.63 CAD/SF/YR |
| Space Use | Industrial |
| Condition | - |
| Available | Now |
Low Teaser Rate of $1.00 PSF for the first six (6) months of a new deal. Great warehouse/ manufacturing facility. Main Street exposure. Front and rear fenced yard. Entire project currently being renovated.
- Listed rate may not include certain utilities, building services and property expenses
- Includes 2,055 SF of dedicated office space
- 2 Drive Ins
- Can be combined with additional space(s) for up to 36,300 SF of adjacent space
- Private Restrooms
- Excellent Golden State Fwy (5) accessibility.
- Office HVAC.
- 400 A, 120/240 V, Ph 3, W 4.
- 20 Parking spaces.
MANUFACTURING FACILITY FACTS
Presented by
8818-8828 Lankershim Blvd
Hmm, there seems to have been an error sending your message. Please try again.
Thanks! Your message was sent.





