Log In/Sign Up
Your email has been sent.
883 Mountain View Dr 2.71 Acres of Residential Land Offered at $506,101 CAD in Stone Mountain, GA 30083



Executive Summary
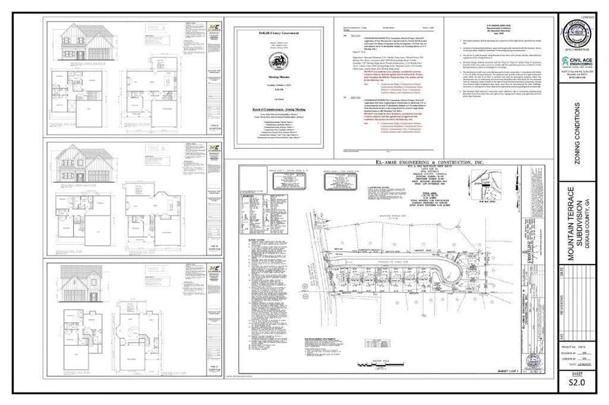
Imagine a secluded, wooded retreat where modern living meets the historic charm of Stone Mountain. This rare 2.71 acre development site in the transitioning Stone Mountain Terrace neighborhood offers a near-shovel-ready opportunity to create a premier gated community. With rezoning already secured from R75 to R60, the heavy lifting has been completed, paving the way for a refined nine home enclave that balances total privacy with neighborhood connectivity. The site is perfectly positioned for success, with high demand new construction in the immediate two mile radius consistently commanding prices between $450,000 and $500,000. Future residents will enjoy a lifestyle defined by both nature and accessibility, located just minutes from the boutique shops of Stone Mountain Village and the vast recreational trails of Stone Mountain Park. Everyday essentials are equally close, with a major retail hub featuring Publix, Walmart, and The Home Depot less than four miles away. Education is within easy reach as well, with the local elementary and middle schools situated just about a mile from the property. This offering is a meticulously prepared canvas, arriving with a comprehensive development package that includes a full survey, recorded sewer easements, and three distinct architectural home plans designed for contemporary tastes. All documentation is organized and ready for Land Disturbance Permit submission, ensuring a streamlined transition from vision to groundbreaking. In an area where buildable land is becoming a scarcity, this combined tract at 883 and 875 Mountain View Drive stands out as a strategic investment in a high growth pocket. Secure this site and lead the next wave of residential excellence in a community that perfectly blends tranquility with urban convenience.
Property Facts
| Price | $506,101 CAD | Property Subtype | Residential |
| Sale Type | Investment or Owner User | Proposed Use | Single Family Development |
| No. Lots | 1 | Total Lot Size | 2.71 AC |
| Property Type | Land | ||
| Zoning | R60 - Single-family detached residences | ||
| Price | $506,101 CAD |
| Sale Type | Investment or Owner User |
| No. Lots | 1 |
| Property Type | Land |
| Property Subtype | Residential |
| Proposed Use | Single Family Development |
| Total Lot Size | 2.71 AC |
| Zoning | R60 - Single-family detached residences |
1 Lot Available
Lot
| Price | $506,101 CAD | Lot Size | 2.71 AC |
| Price Per AC | $186,753.07 CAD |
| Price | $506,101 CAD |
| Price Per AC | $186,753.07 CAD |
| Lot Size | 2.71 AC |
Imagine a secluded, wooded retreat where modern living meets the historic charm of Stone Mountain. This rare 2.71 acre development site in the transitioning Stone Mountain Terrace neighborhood offers a near-shovel-ready opportunity .
1 1
Fairly walkable
40/100
Exceptionally drivable
100/100
Limited public transit
30/100
Somewhat bikeable
30/100
Property Taxes
| Parcel Number | 18-091-03-006 | Improvements Assessment | $32,509 CAD |
| Land Assessment | $109,374 CAD | Total Assessment | $141,883 CAD |
Property Taxes
Parcel Number
18-091-03-006
Land Assessment
$109,374 CAD
Improvements Assessment
$32,509 CAD
Total Assessment
$141,883 CAD
1 of 12
Videos
Matterport 3D Exterior
Matterport 3D Tour
Photos
Street View
Street
Map
1 of 1
Presented by
883 Mountain View Dr
Already a member? Log In
Hmm, there seems to have been an error sending your message. Please try again.
Thanks! Your message was sent.
