Log In/Sign Up
Your email has been sent.
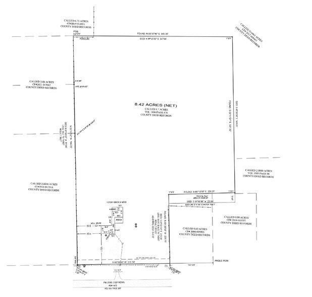
884 FM 2090 Rd E - 8.42 Ac on FM 2090 1,965 SF Specialty Building Offered at $1,313,375 CAD in Splendora, TX 77372



INVESTMENT HIGHLIGHTS
- This property sits in the heart of a rapidly evolving commercial corridor in Montgomery County. The site benefits from strong daily traffic volumes
- The location is bolstered by a surge in residential development, including new single-family communities and multifamily projects
- The area is quickly becoming a retail and service destination for Splendora and the neighboring communities of New Caney, Cleveland, and Porter
- An ideal opportunity for investors and developers seeking to establish a presence in a high-growth, underserved market
- Ample road frontage, flexible zoning potential, and proximity to Splendora ISD schools and city services
EXECUTIVE SUMMARY
A prime investment opportunity at Splendora Property, located at 884 FM 2090, Splendora, TX 77372. This 8.29-acre property sits in a designated Opportunity Zone with 315' of frontage along FM 2090. Offering incredible potential for various developments such as single-family homes, multifamily residences, storage facilities, or an RV park, the location is also just 4 miles from Interstate 69. Conveniently positioned in a rapidly growing area, this property enjoys high visibility with 13,834 VPD and is surrounded by a community with a booming demographic profile. With an estimated population of 112,037 within a 10-mile radius and an average household income of $89,257, this property presents a lucrative opportunity for investors and developers alike. Don't miss out on the chance to capitalize on the potential of the Splendora Property in this thriving market.
PROPERTY FACTS Under Contract
| Price | $1,313,375 CAD | Lot Size | 8.29 AC |
| Price Per SF | $668.38 CAD | Building Size | 1,965 SF |
| Sale Type | Investment | No. Stories | 1 |
| Property Type | Specialty | Year Built | 1965 |
| Property Subtype | Residential Income | Opportunity Zone |
Yes
|
| Price | $1,313,375 CAD |
| Price Per SF | $668.38 CAD |
| Sale Type | Investment |
| Property Type | Specialty |
| Property Subtype | Residential Income |
| Lot Size | 8.29 AC |
| Building Size | 1,965 SF |
| No. Stories | 1 |
| Year Built | 1965 |
| Opportunity Zone |
Yes |
1 1
1 of 4
VIDEOS
MATTERPORT 3D EXTERIOR
MATTERPORT 3D TOUR
PHOTOS
STREET VIEW
STREET
MAP
1 of 1
Presented by
884 FM 2090 Rd E - 8.42 Ac on FM 2090
Already a member? Log In
Hmm, there seems to have been an error sending your message. Please try again.
Thanks! Your message was sent.
