Your email has been sent.
Activity Road Medical Center 8901 Activity Rd 1,744 - 4,508 SF of Office/Medical Space Available in San Diego, CA 92126



Highlights
- Convenient access to I-15, Mira Mesa, and Scripps Ranch for regional connectivity.
All Available Spaces(2)
Display Rental Rate as
- Space
- Size
- Term
- Rental Rate
- Space Use
- Build-Out
- Available
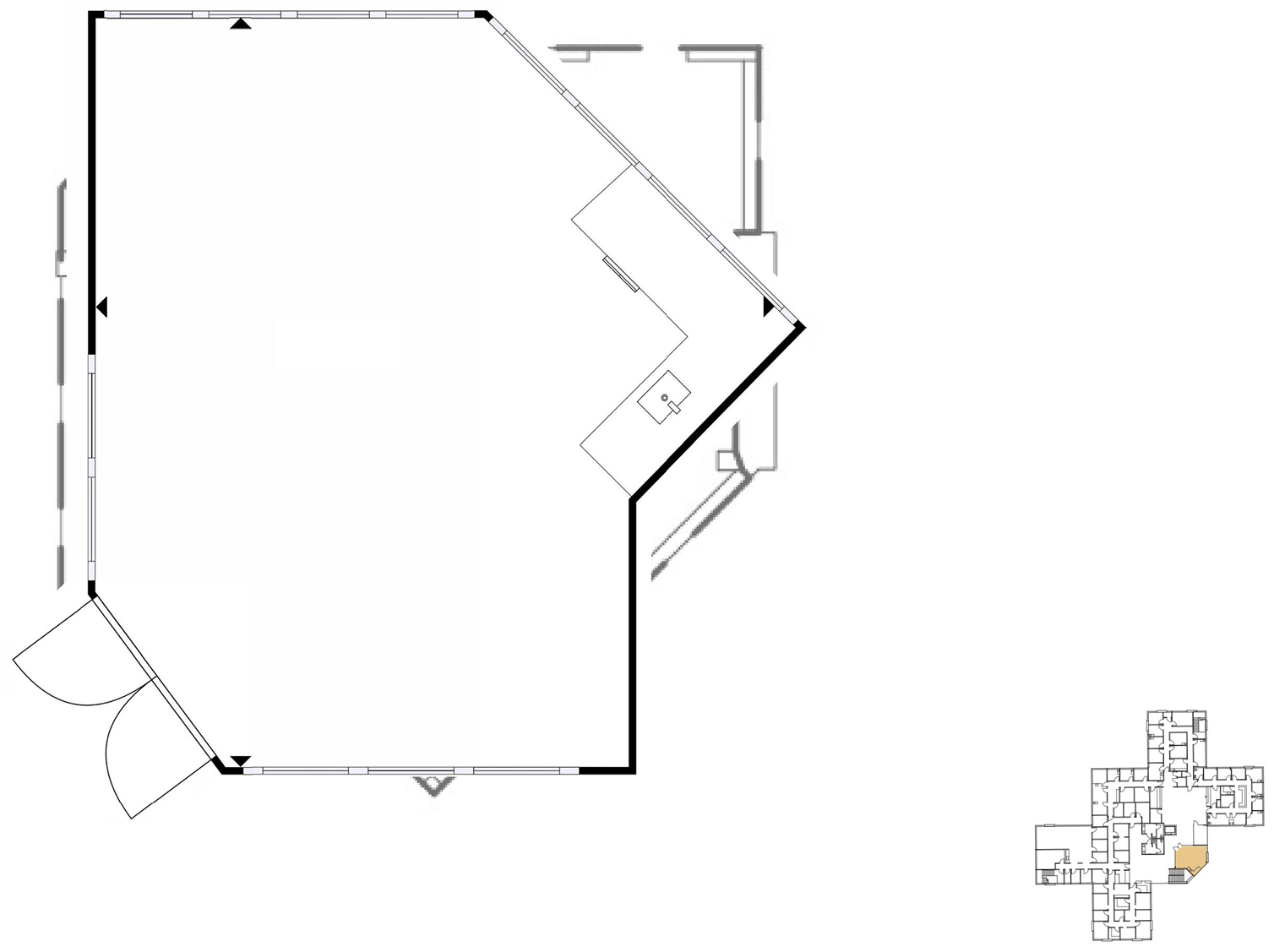
Suite 100 • Space Available: 2,764 SF • Suite Description: 7 Exam Rooms. 1 Procedure or Break Room. 1 Doctor’s Office. 1 Shared Staff Room. 1 Ensuite Restroom. 1 Storage Room - with Exterior Entrance. Floor Plan: https://medwestrealty.com/wp-content/uploads/2024/11/MW_San-Diego-8901-Activity-Road-SP3-Suites-100.png
- Lease rate does not include utilities, property expenses or building services
- 8 Private Offices
- Partially Built-Out as Standard Medical Space
- Reception Area
Suite 204 • Space Available: 1,744 SF • Lease Rate: $2.35/SF • Lease Type: NNN • Suite Description: Shared lobby. 7 exam rooms. 1 office. 1 office could be converted to exam room due to plumbing rough in. Floor Plan: https://medwestrealty.com/wp-content/uploads/2024/11/MW_San-Diego-8901-Activity-Road-Suite-204-v2.png Virtual Tour: https://my.matterport.com/show/?m=yZtMCtJk7Ut
- Lease rate does not include utilities, property expenses or building services
- 8 Private Offices
- Partially Built-Out as Standard Medical Space
| Space | Size | Term | Rental Rate | Space Use | Build-Out | Available |
| 1st Floor, Ste 100 | 2,764 SF | Negotiable | $38.63 CAD/SF/YR $3.22 CAD/SF/MO $106,762 CAD/YR $8,897 CAD/MO | Office/Medical | Partial Build-Out | Now |
| 2nd Floor, Ste 204 | 1,744 SF | Negotiable | $38.63 CAD/SF/YR $3.22 CAD/SF/MO $67,363 CAD/YR $5,614 CAD/MO | Office/Medical | Partial Build-Out | Now |
1st Floor, Ste 100
| Size |
| 2,764 SF |
| Term |
| Negotiable |
| Rental Rate |
| $38.63 CAD/SF/YR $3.22 CAD/SF/MO $106,762 CAD/YR $8,897 CAD/MO |
| Space Use |
| Office/Medical |
| Build-Out |
| Partial Build-Out |
| Available |
| Now |
2nd Floor, Ste 204
| Size |
| 1,744 SF |
| Term |
| Negotiable |
| Rental Rate |
| $38.63 CAD/SF/YR $3.22 CAD/SF/MO $67,363 CAD/YR $5,614 CAD/MO |
| Space Use |
| Office/Medical |
| Build-Out |
| Partial Build-Out |
| Available |
| Now |
1st Floor, Ste 100
| Size | 2,764 SF |
| Term | Negotiable |
| Rental Rate | $38.63 CAD/SF/YR |
| Space Use | Office/Medical |
| Build-Out | Partial Build-Out |
| Available | Now |
Suite 100 • Space Available: 2,764 SF • Suite Description: 7 Exam Rooms. 1 Procedure or Break Room. 1 Doctor’s Office. 1 Shared Staff Room. 1 Ensuite Restroom. 1 Storage Room - with Exterior Entrance. Floor Plan: https://medwestrealty.com/wp-content/uploads/2024/11/MW_San-Diego-8901-Activity-Road-SP3-Suites-100.png
- Lease rate does not include utilities, property expenses or building services
- Partially Built-Out as Standard Medical Space
- 8 Private Offices
- Reception Area
2nd Floor, Ste 204
| Size | 1,744 SF |
| Term | Negotiable |
| Rental Rate | $38.63 CAD/SF/YR |
| Space Use | Office/Medical |
| Build-Out | Partial Build-Out |
| Available | Now |
Suite 204 • Space Available: 1,744 SF • Lease Rate: $2.35/SF • Lease Type: NNN • Suite Description: Shared lobby. 7 exam rooms. 1 office. 1 office could be converted to exam room due to plumbing rough in. Floor Plan: https://medwestrealty.com/wp-content/uploads/2024/11/MW_San-Diego-8901-Activity-Road-Suite-204-v2.png Virtual Tour: https://my.matterport.com/show/?m=yZtMCtJk7Ut
- Lease rate does not include utilities, property expenses or building services
- Partially Built-Out as Standard Medical Space
- 8 Private Offices
Property Overview
8901 Activity Rd, San Diego, CA 92126 Located in the heart of San Diego’s thriving medical corridor, 8901 Activity Road offers a dynamic space designed to meet the needs of modern healthcare providers. This state-of-the-art building features flexible suites tailored for various specialties, equipped with advanced infrastructure such as medical-grade HVAC, high-speed internet, and ample power capacity to support cutting-edge technologies. With a prime location near major highways, the property ensures exceptional accessibility for both providers and patients, complemented by dedicated surface parking. The contemporary design includes spacious common areas, ADA-compliant features, and abundant natural light to enhance the patient and staff experience. Conveniently situated near pharmacies, diagnostic labs, and other healthcare services, this property creates a seamless ecosystem for patient care. PROPERTY FEATURES • Upgraded Medical Office building with ability to utilize shared lobby with in the Building. • Shared conference room on second floor. • Conveniently located next to Sharp Mira Mesa Outpatient building. • Monument signage available. • Ample referral opportunities with existing tenant base in Building and with Sharp Mira Mesa. • Ease of access to 1-15, Mira Mesa and Scripps Ranch. AMPLE PARKING • 5 Stalls per 1,000 RSF
- Restaurant
- Signage
- Accent Lighting
- Central Heating
- Natural Light
- Wi-Fi
- Hardwood Floors
- Air Conditioning
Property Facts
Presented by
Activity Road Medical Center | 8901 Activity Rd
Hmm, there seems to have been an error sending your message. Please try again.
Thanks! Your message was sent.




