Your email has been sent.
Peel Press Building 9 E Philadelphia St 1,495 - 5,590 SF of Retail Space Available in York, PA 17401



Highlights
- New Retail Storefront Space(s) Available in Mixed-Use Redevelopment
- Property is situated in the heart of Downtown York's restaurant and entertainment district.
- Redevelopment Includes up to 4 storefront spaces and 22 market-rate apartments
Space Availability (1)
Display Rental Rate as
- Space
- Size
- Ceiling
- Term
- Rental Rate
- Rent Type
| Space | Size | Ceiling | Term | Rental Rate | Rent Type | |
| 1st Floor | 1,495-5,590 SF | 14’ - 25’ | Negotiable | $24.82 CAD/SF/YR $2.07 CAD/SF/MO $138,722 CAD/YR $11,560 CAD/MO | Modified Gross |
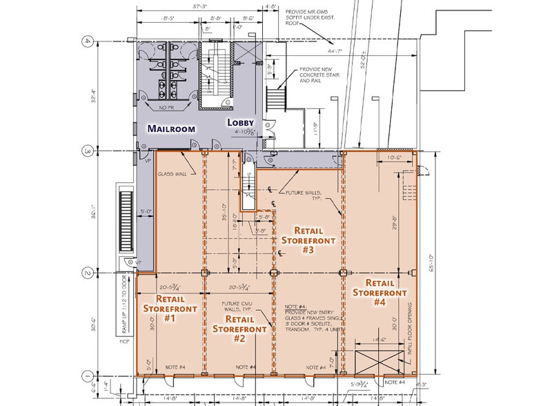
1st Floor
The redevelopment includes up to four (4) new retail storefronts (which can be combined or configured in various layouts) along with 22 new market-rate apartments. The storefronts will feature high ceilings, new HVAC and electrical systems, open layouts, and large shared bathrooms in the rear common area. An on-site fitness center will be available for all tenants to use. The first floor will retain the historic manufacturing structure, which will be transformed into modern industrial-chic retail space, while three new stories of apartments will be built with a contemporary exterior above the original structure.
- Listed rate may not include certain utilities, building services and property expenses
- Finished Ceilings: 14’ - 25’
Rent Types
The rent amount and type that the tenant (lessee) will be responsible to pay to the landlord (lessor) throughout the lease term is negotiated prior to both parties signing a lease agreement. The rent type will vary depending upon the services provided. For example, triple net rents are typically lower than full service rents due to additional expenses the tenant is required to pay in addition to the base rent. Contact the listing broker for a full understanding of any associated costs or additional expenses for each rent type.
1. Full Service: A rental rate that includes normal building standard services as provided by the landlord within a base year rental.
2. Double Net (NN): Tenant pays for only two of the building expenses; the landlord and tenant determine the specific expenses prior to signing the lease agreement.
3. Triple Net (NNN): A lease in which the tenant is responsible for all expenses associated with their proportional share of occupancy of the building.
4. Modified Gross: Modified Gross is a general type of lease rate where typically the tenant will be responsible for their proportional share of one or more of the expenses. The landlord will pay the remaining expenses. See the below list of common Modified Gross rental rate structures: 4. Plus All Utilities: A type of Modified Gross Lease where the tenant is responsible for their proportional share of utilities in addition to the rent. 4. Plus Cleaning: A type of Modified Gross Lease where the tenant is responsible for their proportional share of cleaning in addition to the rent. 4. Plus Electric: A type of Modified Gross Lease where the tenant is responsible for their proportional share of the electrical cost in addition to the rent. 4. Plus Electric & Cleaning: A type of Modified Gross Lease where the tenant is responsible for their proportional share of the electrical and cleaning cost in addition to the rent. 4. Plus Utilities and Char: A type of Modified Gross Lease where the tenant is responsible for their proportional share of the utilities and cleaning cost in addition to the rent. 4. Industrial Gross: A type of Modified Gross lease where the tenant pays one or more of the expenses in addition to the rent. The landlord and tenant determine these prior to signing the lease agreement.
5. Tenant Electric: The landlord pays for all services and the tenant is responsible for their usage of lights and electrical outlets in the space they occupy.
6. Negotiable or Upon Request: Used when the leasing contact does not provide the rent or service type.
7. TBD: To be determined; used for buildings for which no rent or service type is known, commonly utilized when the buildings are not yet built.
Property Facts
| Total Space Available | 5,590 SF | Property Subtype | Storefront Retail/Residential |
| Min. Divisible | 1,495 SF | Gross Leasable Area | 30,830 SF |
| Property Type | Retail | Year Built/Renovated | 1981/2026 |
| Total Space Available | 5,590 SF |
| Min. Divisible | 1,495 SF |
| Property Type | Retail |
| Property Subtype | Storefront Retail/Residential |
| Gross Leasable Area | 30,830 SF |
| Year Built/Renovated | 1981/2026 |
About the Property
We are pleased to present this exciting opportunity to lease new retail storefront space in the redeveloped Peel Press Building in downtown York! Located at the prime intersection of N. George St. and E. Philadelphia St., this project is situated in the heart of downtown York’s restaurant and entertainment district. It is surrounded by the Appell Center for the Performing Arts, Central Market, the 330,000+ SF York County Judicial Center, and Restaurant Row. This location benefits from significant pedestrian traffic, a robust daytime business population, and a dense residential area nearby. Additionally, there are three (3) public parking garages within one block of the project. The redevelopment includes up to four (4) new retail storefronts (which can be combined or configured in various layouts) along with 22 new market-rate apartments. The storefronts will feature high ceilings, new HVAC and electrical systems, open layouts, and large shared bathrooms in the rear common area. An on-site fitness center will be available for all tenants to use. The first floor will retain the historic manufacturing structure, which will be transformed into modern industrial-chic retail space, while three new stories of apartments will be built with a contemporary exterior above the original structure. This project is well-suited for traditional retail, restaurants and breweries, entertainment venues, personal services, business services, fitness facilities, healthcare providers, and office users.
Nearby Major Retailers
Presented by
Peel Press Building | 9 E Philadelphia St
Hmm, there seems to have been an error sending your message. Please try again.
Thanks! Your message was sent.

