Your email has been sent.
Build to Suit Medical 90 Millburn Ave 1,320 - 7,659 SF of Office/Medical Space Available in Millburn, NJ 07041

Highlights
- Close Proximity to Cooperman Barnabas Medical Center and Overlook Medical Center
- Access to major highways Routes 124, 24, 78 and GSP
- Elevatored Building
- Abundant On-Site Parking
- ADA Accessible
All Available Spaces(3)
Display Rental Rate as
- Space
- Size
- Term
- Rental Rate
- Space Use
- Build-Out
- Available
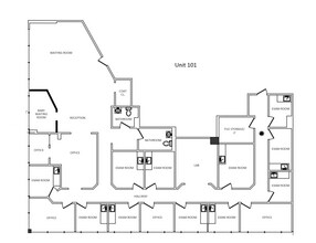
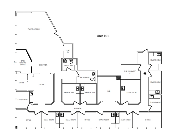
This spacious medical office is designed for efficiency and patient comfort, making it an ideal fit for pediatricians and other medical professionals. Featuring 12 fully plumbed exam rooms, 3 private offices, a dedicated laboratory area, and a large reception space flooded with natural light, this office creates a welcoming and professional environment. The reception area also includes a separate waiting space for young children, ensuring a family-friendly experience. Conveniently located just minutes from downtown Millburn, this turnkey space offers the accessibility and functionality needed to take your practice to the next level.
- Tenant responsible for usage of lights and electrical outlets
- 3 Private Offices
- Laboratory
- Private Restrooms
- Twelve Exam Rooms w Sinks
- Laboratory Area
- Waiting & Well Baby Waiting Room w/ Natural Light
- Fully Built-Out as Standard Medical Space
- 12 Workstations
- Reception Area
- Natural Light
- Three Private Offices
- Two ADA Private Restrooms
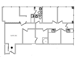
±1,300 sq. ft. medical office is perfectly designed for efficiency and patient care. Equipped with 3 fully plumbed exam rooms, a welcoming waiting room, and a well-organized reception area, this space is ideal for a variety of medical professionals. Whether you're starting a new practice or expanding, this turnkey office offers the functionality and convenience you need.
- Tenant responsible for usage of lights and electrical outlets
- 5 Private Offices
- Laboratory
- Private Restrooms
- Five Exam Rooms w Sinks
- Private Restroom for Patients
- Fully Built-Out as Standard Medical Space
- Can be combined with additional space(s) for up to 3,519 SF of adjacent space
- Reception Area
- Shower Facilities
- Administrative Area with Private Restroom
This ±2,300 sq. ft. medical office is designed for efficiency and comfort, making it an excellent fit for a variety of healthcare professionals. The space features a welcoming reception and waiting area, 3 plumbed exam rooms, 3 private offices, and a convenient laboratory/break room for staff. ADA Bathroom conversion available. Whether you're establishing a new practice or expanding, this turnkey office provides the functionality and convenience you need.
- Tenant responsible for usage of lights and electrical outlets
- 3 Private Offices
- Can be combined with additional space(s) for up to 3,519 SF of adjacent space
- Three Exam Rooms w Sinks
- Laboratory Area
- Fully Built-Out as Standard Medical Space
- 4 Workstations
- Reception Area
- Three Private Offices
| Space | Size | Term | Rental Rate | Space Use | Build-Out | Available |
| 1st Floor, Ste 101 | 1,500-4,140 SF | Negotiable | $38.20 CAD/SF/YR $3.18 CAD/SF/MO $158,143 CAD/YR $13,179 CAD/MO | Office/Medical | Full Build-Out | Now |
| 2nd Floor, Ste 201 | 1,320 SF | Negotiable | $38.20 CAD/SF/YR $3.18 CAD/SF/MO $50,422 CAD/YR $4,202 CAD/MO | Office/Medical | Full Build-Out | Now |
| 2nd Floor, Ste 204 | 2,199 SF | Negotiable | $38.20 CAD/SF/YR $3.18 CAD/SF/MO $83,999 CAD/YR $7,000 CAD/MO | Office/Medical | Full Build-Out | Now |
1st Floor, Ste 101
| Size |
| 1,500-4,140 SF |
| Term |
| Negotiable |
| Rental Rate |
| $38.20 CAD/SF/YR $3.18 CAD/SF/MO $158,143 CAD/YR $13,179 CAD/MO |
| Space Use |
| Office/Medical |
| Build-Out |
| Full Build-Out |
| Available |
| Now |
2nd Floor, Ste 201
| Size |
| 1,320 SF |
| Term |
| Negotiable |
| Rental Rate |
| $38.20 CAD/SF/YR $3.18 CAD/SF/MO $50,422 CAD/YR $4,202 CAD/MO |
| Space Use |
| Office/Medical |
| Build-Out |
| Full Build-Out |
| Available |
| Now |
2nd Floor, Ste 204
| Size |
| 2,199 SF |
| Term |
| Negotiable |
| Rental Rate |
| $38.20 CAD/SF/YR $3.18 CAD/SF/MO $83,999 CAD/YR $7,000 CAD/MO |
| Space Use |
| Office/Medical |
| Build-Out |
| Full Build-Out |
| Available |
| Now |
1st Floor, Ste 101
| Size | 1,500-4,140 SF |
| Term | Negotiable |
| Rental Rate | $38.20 CAD/SF/YR |
| Space Use | Office/Medical |
| Build-Out | Full Build-Out |
| Available | Now |
This spacious medical office is designed for efficiency and patient comfort, making it an ideal fit for pediatricians and other medical professionals. Featuring 12 fully plumbed exam rooms, 3 private offices, a dedicated laboratory area, and a large reception space flooded with natural light, this office creates a welcoming and professional environment. The reception area also includes a separate waiting space for young children, ensuring a family-friendly experience. Conveniently located just minutes from downtown Millburn, this turnkey space offers the accessibility and functionality needed to take your practice to the next level.
- Tenant responsible for usage of lights and electrical outlets
- Fully Built-Out as Standard Medical Space
- 3 Private Offices
- 12 Workstations
- Laboratory
- Reception Area
- Private Restrooms
- Natural Light
- Twelve Exam Rooms w Sinks
- Three Private Offices
- Laboratory Area
- Two ADA Private Restrooms
- Waiting & Well Baby Waiting Room w/ Natural Light
2nd Floor, Ste 201
| Size | 1,320 SF |
| Term | Negotiable |
| Rental Rate | $38.20 CAD/SF/YR |
| Space Use | Office/Medical |
| Build-Out | Full Build-Out |
| Available | Now |
±1,300 sq. ft. medical office is perfectly designed for efficiency and patient care. Equipped with 3 fully plumbed exam rooms, a welcoming waiting room, and a well-organized reception area, this space is ideal for a variety of medical professionals. Whether you're starting a new practice or expanding, this turnkey office offers the functionality and convenience you need.
- Tenant responsible for usage of lights and electrical outlets
- Fully Built-Out as Standard Medical Space
- 5 Private Offices
- Can be combined with additional space(s) for up to 3,519 SF of adjacent space
- Laboratory
- Reception Area
- Private Restrooms
- Shower Facilities
- Five Exam Rooms w Sinks
- Administrative Area with Private Restroom
- Private Restroom for Patients
2nd Floor, Ste 204
| Size | 2,199 SF |
| Term | Negotiable |
| Rental Rate | $38.20 CAD/SF/YR |
| Space Use | Office/Medical |
| Build-Out | Full Build-Out |
| Available | Now |
This ±2,300 sq. ft. medical office is designed for efficiency and comfort, making it an excellent fit for a variety of healthcare professionals. The space features a welcoming reception and waiting area, 3 plumbed exam rooms, 3 private offices, and a convenient laboratory/break room for staff. ADA Bathroom conversion available. Whether you're establishing a new practice or expanding, this turnkey office provides the functionality and convenience you need.
- Tenant responsible for usage of lights and electrical outlets
- Fully Built-Out as Standard Medical Space
- 3 Private Offices
- 4 Workstations
- Can be combined with additional space(s) for up to 3,519 SF of adjacent space
- Reception Area
- Three Exam Rooms w Sinks
- Three Private Offices
- Laboratory Area
Property Overview
Prime Medical Office Space at 90 Millburn – ±21,000 Sq. Ft. Position your practice in a highly accessible and well-equipped medical office building at 90 Millburn. This ±21,000 sq. ft., two-story, elevatored property is designed for efficiency, convenience, and patient comfort. With ample parking (88 spaces) and 18 fully plumbed exam rooms along with 7 private offices available, this space is ideal for a variety of medical professionals. Each suite features a spacious waiting room and a dedicated reception area for seamless administrative operations. Located just minutes from Routes 78, 124, 24, and the Garden State Parkway, the property offers excellent accessibility via public transportation and is just moments away from downtown Millburn, providing easy access to its vibrant shopping, dining, and amenities. Don't miss this opportunity to establish or expand your practice in a prime medical location. Schedule a tour today!
- Air Conditioning
Property Facts
Select Tenants
- Floor
- Tenant Name
- Industry
- Multiple
- Positive Developments LLC
- Health Care and Social Assistance
- 2nd
- Soma Skin & Laser LLC
- Health Care and Social Assistance
Presented by
Build to Suit Medical | 90 Millburn Ave
Hmm, there seems to have been an error sending your message. Please try again.
Thanks! Your message was sent.







