Log In/Sign Up
Your email has been sent.
900 Park Ave - The Park 900 Condominium 1,500 SF Office/Medical Condo Unit Offered at $3,712,041 CAD in New York, NY 10075



Investment Highlights
- PRIVATE STREET ENTRANCE EAST 79TH STREET
- OPERATING SUITE BUILT TO QUAD-A STANDARD AT TIME OF CONSTRUCTION
- MULTI-ZONE CENTRAL AIR CONDITIONING
- ADAPTABLE TO ANY MEDICAL SPECIALTY
1 Unit Available
- Unit
- Unit Size
- Condo Use
- Price
- NOI
| Sale Type | Investment or Owner User |
| Sale Type | Investment or Owner User |
Description
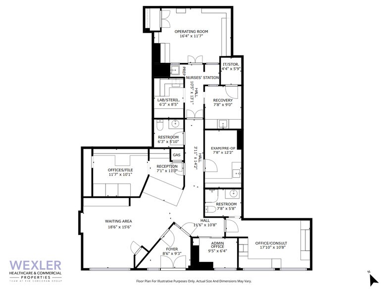
Available for sale, 900 Park Avenue, Suite NR2, is a medical office condo located at the corner of Park Avenue and East 79th Street on the Upper East Side with a private street entrance. Currently configured as a cosmetic surgery practice, this 1,500-square-foot suite is adaptable to any medical specialty.
The current layout includes waiting and reception areas, operating room built to Quad-A standards at the time of construction, a prep/nurses’ station, a recovery/exam room, a pre-op/exam room, a lab/sterilization room, an office/consult with private bathroom, an admin/manager office, a two-station admin/file room, a gas closet, and restroom.
900 Park Ave is easily accessible by public transportation via the 4 and 6 trains at 77th St, the 4, 5, 6, N, Q and R trains at 86th St as well as Upper East Side bus routes. The building is proximate to Lenox Hill Hospital and Mount Sinai.
Please see the brochure for common charges, RE taxes, and financing.
The current layout includes waiting and reception areas, operating room built to Quad-A standards at the time of construction, a prep/nurses’ station, a recovery/exam room, a pre-op/exam room, a lab/sterilization room, an office/consult with private bathroom, an admin/manager office, a two-station admin/file room, a gas closet, and restroom.
900 Park Ave is easily accessible by public transportation via the 4 and 6 trains at 77th St, the 4, 5, 6, N, Q and R trains at 86th St as well as Upper East Side bus routes. The building is proximate to Lenox Hill Hospital and Mount Sinai.
Please see the brochure for common charges, RE taxes, and financing.
| Unit | Unit Size | Condo Use | Price | NOI |
| Unit NR2 | 1,500 SF | Office/Medical | $3,712,041 CAD ($2,474.69 CAD/SF) | - |
Unit NR2
| Unit Size |
| 1,500 SF |
| Condo Use |
| Office/Medical |
| Price |
| $3,712,041 CAD ($2,474.69 CAD/SF) |
| NOI |
| - |
1 of 12
Videos
Matterport 3D Exterior
Matterport 3D Tour
Photos
Street View
Street
Map
Unit NR2
| Unit Size | 1,500 SF |
| Condo Use | Office/Medical |
| Price | $3,712,041 CAD ($2,474.69 CAD/SF) |
| NOI | - |
| Sale Type | Investment or Owner User |
| Description | |
| Available for sale, 900 Park Avenue, Suite NR2, is a medical office condo located at the corner of Park Avenue and East 79th Street on the Upper East Side with a private street entrance. Currently configured as a cosmetic surgery practice, this 1,500-square-foot suite is adaptable to any medical specialty.<br> <br> The current layout includes waiting and reception areas, operating room built to Quad-A standards at the time of construction, a prep/nurses’ station, a recovery/exam room, a pre-op/exam room, a lab/sterilization room, an office/consult with private bathroom, an admin/manager office, a two-station admin/file room, a gas closet, and restroom.<br> <br> 900 Park Ave is easily accessible by public transportation via the 4 and 6 trains at 77th St, the 4, 5, 6, N, Q and R trains at 86th St as well as Upper East Side bus routes. The building is proximate to Lenox Hill Hospital and Mount Sinai.<br> <br> Please see the brochure for common charges, RE taxes, and financing.</li></ul> |
Property Facts
The following property facts and amenities apply to the entire building. Details for individual condo units may vary and are listed in the unit information above.
| Total Building Size | 152,811 SF | Floors | 28 |
| Property Type | Multifamily (Condo) | Typical Floor Size | 5,605 SF |
| Property Subtype | Apartment | Year Built | 1973 |
| Building Class | B | Lot Size | 0.32 AC |
| Zoning | R10 - High Density Residential District. | ||
| Total Building Size | 152,811 SF |
| Property Type | Multifamily (Condo) |
| Property Subtype | Apartment |
| Building Class | B |
| Floors | 28 |
| Typical Floor Size | 5,605 SF |
| Year Built | 1973 |
| Lot Size | 0.32 AC |
| Zoning | R10 - High Density Residential District. |
Amenities
Site Amenities
- 24 Hour Access
- Concierge
- Doorman
- Elevator
1 1
Exceptionally walkable
100/100
Fairly drivable
40/100
Exceptional public transit
100/100
Exceptionally bikeable
90/100
1 of 4
Videos
Matterport 3D Exterior
Matterport 3D Tour
Photos
Street View
Street
Map
1 of 1
Presented by
900 Park Ave - The Park 900 Condominium
Already a member? Log In
Hmm, there seems to have been an error sending your message. Please try again.
Thanks! Your message was sent.


