Log In/Sign Up
Your email has been sent.
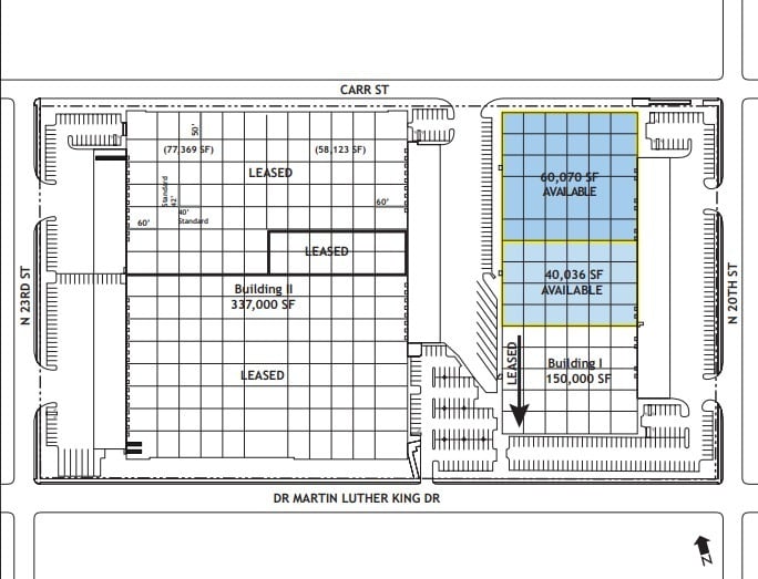
909-1019 N 20th St
Saint Louis, MO 63106
St. Louis Commerce Center I · Industrial Property For Lease
·
100,106 SF


Features
Clear Height
28’
Column Spacing
40’ x 40’
Drive In Bays
1
Levelers
14
Standard Parking Spaces
50
Warehouse Facility Facts
Building Size
149,908 SF
Lot Size
6.79 AC
Year Built
1999
Construction
Reinforced Concrete
Water
City Water
Sewer
City Sewer
Heating
Gas
Power Supply
Amps: 1,300 Volts: 480 Phase: 3 Wire: 4
Zoning
J - Industrial
1 of 9
Videos
Matterport 3D Exterior
Matterport 3D Tour
Photos
Street View
Street
Map
