Log In/Sign Up
Your email has been sent.
909 Highland Ave 2,400 SF Office Building Selma, AL 36701 $407,557 CAD ($169.82 CAD/SF) 6.10% Cap Rate



INVESTMENT HIGHLIGHTS
- Heavy traffic count per day
- Recently renovated
- Multi tenant building
EXECUTIVE SUMMARY
Prime Investment Opportunity! This building is located perfectly in Selma's business sector. Traffic count is over 20,000 per day. Perfectly visible from the highway. Surrounded by multiple restaurants and gas stations. Multi-tenant building. Both sides recently renovated for a more modern look. Office areas are fully carpeted except for kitchen and bathroom areas which are tile. This building is fully functional and would be great for any office need.
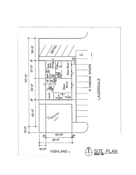
Please note that the pictures only show Suit B of the building. It has been occupied since the pictures were taken.
Suit A has a larger show room with 2 private offices, small conference room, kitchenette, and 2 restrooms.
Please note that the pictures only show Suit B of the building. It has been occupied since the pictures were taken.
Suit A has a larger show room with 2 private offices, small conference room, kitchenette, and 2 restrooms.
FINANCIAL SUMMARY (ACTUAL - 2025) |
ANNUAL (CAD) | ANNUAL PER SF (CAD) |
|---|---|---|
| Gross Rental Income |
$26,940
|
$11.23
|
| Other Income |
-
|
-
|
| Vacancy Loss |
-
|
-
|
| Effective Gross Income |
$26,940
|
$11.23
|
| Taxes |
$2,962
|
$1.23
|
| Operating Expenses |
$691
|
$0.29
|
| Total Expenses |
$3,653
|
$1.52
|
| Net Operating Income |
$23,287
|
$9.70
|
FINANCIAL SUMMARY (ACTUAL - 2025)
| Gross Rental Income (CAD) | |
|---|---|
| Annual | $26,940 |
| Annual Per SF | $11.23 |
| Other Income (CAD) | |
|---|---|
| Annual | - |
| Annual Per SF | - |
| Vacancy Loss (CAD) | |
|---|---|
| Annual | - |
| Annual Per SF | - |
| Effective Gross Income (CAD) | |
|---|---|
| Annual | $26,940 |
| Annual Per SF | $11.23 |
| Taxes (CAD) | |
|---|---|
| Annual | $2,962 |
| Annual Per SF | $1.23 |
| Operating Expenses (CAD) | |
|---|---|
| Annual | $691 |
| Annual Per SF | $0.29 |
| Total Expenses (CAD) | |
|---|---|
| Annual | $3,653 |
| Annual Per SF | $1.52 |
| Net Operating Income (CAD) | |
|---|---|
| Annual | $23,287 |
| Annual Per SF | $9.70 |
PROPERTY FACTS
Sale Type
Investment
Property Type
Office
Building Size
2,400 SF
Building Class
C
Year Built/Renovated
2002/2020
Price
$407,557 CAD
Price Per SF
$169.82 CAD
Cap Rate
6.10%
NOI
$24,868 CAD
Tenancy
Multiple
Building Height
1 Story
Typical Floor Size
2,400 SF
Building FAR
0.34
Lot Size
0.16 AC
Zoning
Business
Parking
20 Spaces (8.33 Spaces per 1,000 SF Leased)
AMENITIES
- 24 Hour Access
- Conferencing Facility
- Kitchen
- Central Heating
- Partitioned Offices
- Drop Ceiling
- Air Conditioning
ABOUT 909 HIGHLAND AVE , SELMA, AL 36701
Prime Investment Opportunity! This building is located perfectly in Selma's business sector. Traffic count is over 20,000 per day. Perfectly visible from the highway. Surrounded by multiple restaurants and gas stations. Multi-tenant building. Both sides recently renovated for a more modern look. Office areas are fully carpeted except for kitchen and bathroom areas which are tile. This building is fully functional and would be great for any office need.
1 1
PROPERTY TAXES
| Parcel Number | 11-06-24-3-004-019.0000 | Total Assessment | $40,787 CAD (2024) |
| Land Assessment | $0 CAD (2024) | Annual Taxes | $2,962 CAD ($1.23 CAD/SF) |
| Improvements Assessment | $0 CAD (2024) | Tax Year | 2025 |
PROPERTY TAXES
Parcel Number
11-06-24-3-004-019.0000
Land Assessment
$0 CAD (2024)
Improvements Assessment
$0 CAD (2024)
Total Assessment
$40,787 CAD (2024)
Annual Taxes
$2,962 CAD ($1.23 CAD/SF)
Tax Year
2025
1 of 9
VIDEOS
MATTERPORT 3D EXTERIOR
MATTERPORT 3D TOUR
PHOTOS
STREET VIEW
STREET
MAP
1 of 1
Presented by
909 Highland Ave
Already a member? Log In
Hmm, there seems to have been an error sending your message. Please try again.
Thanks! Your message was sent.
