Your email has been sent.
Park Highlights
- The Grove 270 offers over 575,000 square feet of premium office space with elegant atriums, polished granite floors, and lush landscaped surroundings.
- Flexible leasing options cater to businesses of all sizes with move-in-ready suites ideal for corporate headquarters and satellite offices.
- Tenants enjoy walkable park like setting and nearby amenities, including restaurants, banks, hotels, and major retailers for ultimate convenience.
- Enjoy top-tier onsite amenities, featuring a full-service deli, two fitness centers, and four conference rooms.
- Strategically located near Interstate 270 and Highway 28, with easy access to Washington, D.C., and nearby Metro stations for seamless commuting.
- Situated in Rockville’s thriving business district, The Grove 270 offers access to top universities, a skilled workforce, and leading biotech firms.
Park Facts
All Available Spaces(28)
Display Rental Rate as
- Space
- Size
- Term
- Rental Rate
- Space Use
- Build-Out
- Available
- Rate includes utilities, building services and property expenses
- Fits 11 - 34 People
- Rate includes utilities, building services and property expenses
- Fits 5 - 14 People
- Rate includes utilities, building services and property expenses
- Fits 12 - 39 People
- Rate includes utilities, building services and property expenses
- Fits 10 - 29 People
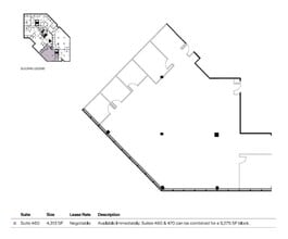
Suites 460 & 470 can be combined for a 9,275 SF block.
- Rate includes utilities, building services and property expenses
- Can be combined with additional space(s) for up to 9,275 SF of adjacent space
- Fits 11 - 35 People
Suites 460 & 470 can be combined for a 9,275 SF block.
- Rate includes utilities, building services and property expenses
- Can be combined with additional space(s) for up to 9,275 SF of adjacent space
- Fits 13 - 40 People
| Space | Size | Term | Rental Rate | Space Use | Build-Out | Available |
| 1st Floor, Ste 100 | 4,155 SF | Negotiable | Upon Request Upon Request Upon Request Upon Request | Office | - | Now |
| 1st Floor, Ste 143 | 1,646 SF | Negotiable | Upon Request Upon Request Upon Request Upon Request | Office | - | Now |
| 2nd Floor, Ste 230 | 4,789 SF | Negotiable | Upon Request Upon Request Upon Request Upon Request | Office | - | Now |
| 3rd Floor, Ste 375 | 3,605 SF | Negotiable | Upon Request Upon Request Upon Request Upon Request | Office | - | Now |
| 4th Floor, Ste 460 | 4,313 SF | Negotiable | Upon Request Upon Request Upon Request Upon Request | Office | - | Now |
| 4th Floor, Ste 470 | 4,962 SF | Negotiable | Upon Request Upon Request Upon Request Upon Request | Office | - | Now |
9200 Corporate Blvd - 1st Floor - Ste 100
9200 Corporate Blvd - 1st Floor - Ste 143
9200 Corporate Blvd - 2nd Floor - Ste 230
9200 Corporate Blvd - 3rd Floor - Ste 375
9200 Corporate Blvd - 4th Floor - Ste 460
9200 Corporate Blvd - 4th Floor - Ste 470
- Space
- Size
- Term
- Rental Rate
- Space Use
- Build-Out
- Available
- Rate includes utilities, building services and property expenses
- Fits 16 - 50 People
- Rate includes utilities, building services and property expenses
- Fits 11 - 34 People
- Rate includes utilities, building services and property expenses
- Fits 20 - 63 People
- Rate includes utilities, building services and property expenses
- Fits 11 - 34 People
- Rate includes utilities, building services and property expenses
- Fits 13 - 42 People
- Rate includes utilities, building services and property expenses
- Fits 19 - 58 People
- Fits 12 - 38 People
- Rate includes utilities, building services and property expenses
- Fits 13 - 42 People
- Rate includes utilities, building services and property expenses
- Fits 6 - 19 People
- Fits 8 - 24 People
- Rate includes utilities, building services and property expenses
- Fits 19 - 60 People
- Fits 13 - 41 People
- Rate includes utilities, building services and property expenses
- Fits 10 - 30 People
| Space | Size | Term | Rental Rate | Space Use | Build-Out | Available |
| 1st Floor, Ste 100 | 6,215 SF | Negotiable | Upon Request Upon Request Upon Request Upon Request | Office | - | Now |
| 1st Floor, Ste 120 | 4,249 SF | Negotiable | Upon Request Upon Request Upon Request Upon Request | Office | - | Now |
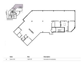
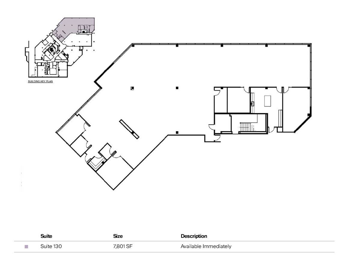
| 1st Floor, Ste 130 | 7,801 SF | Negotiable | Upon Request Upon Request Upon Request Upon Request | Office | - | Now |
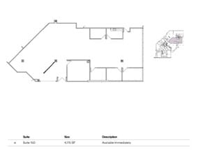
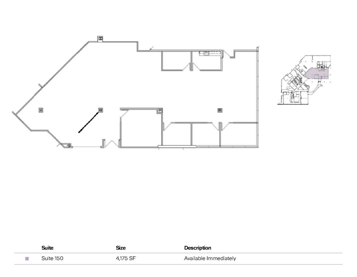
| 1st Floor, Ste 150 | 4,175 SF | Negotiable | Upon Request Upon Request Upon Request Upon Request | Office | - | Now |
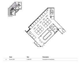
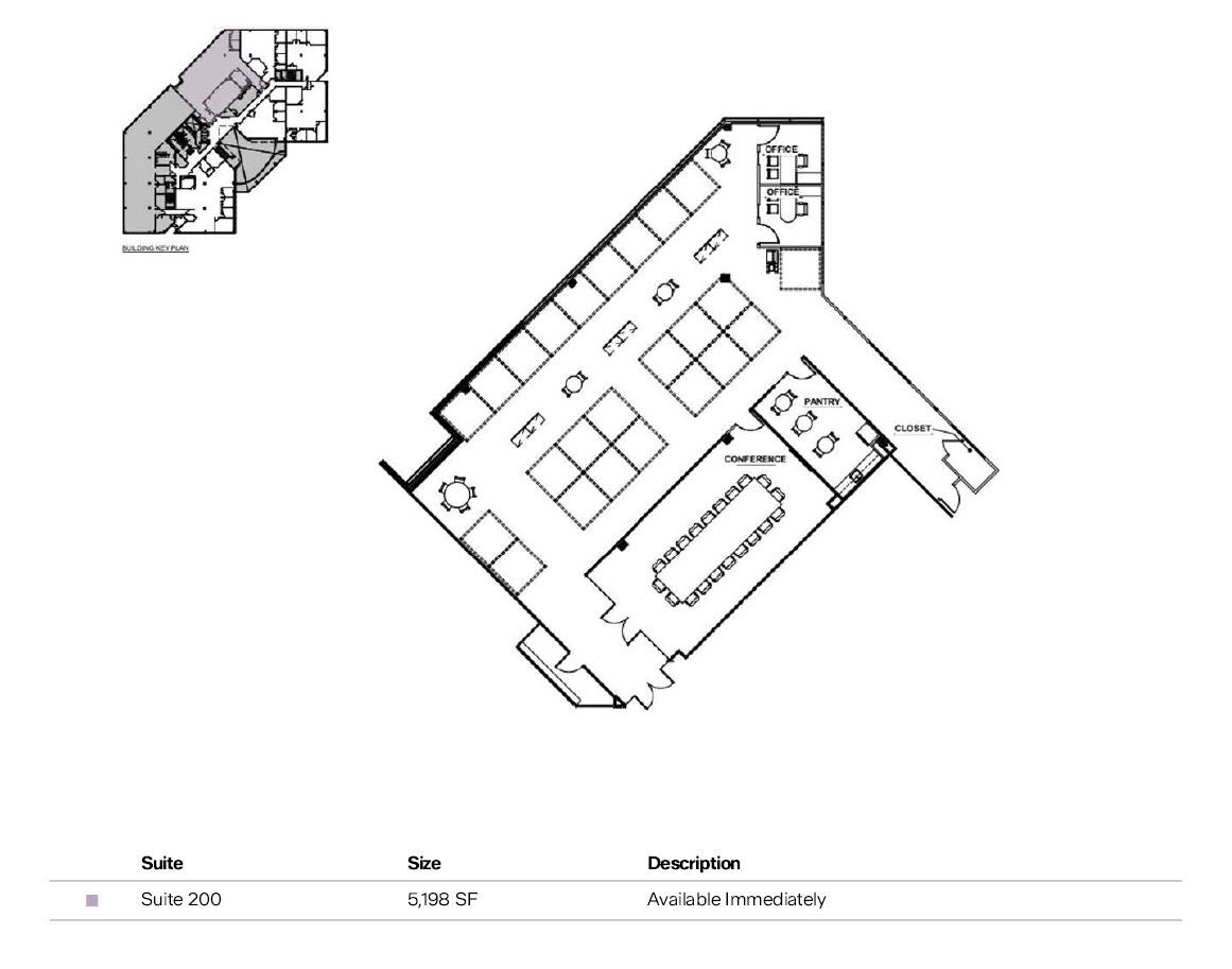
| 2nd Floor, Ste 200 | 5,198 SF | Negotiable | Upon Request Upon Request Upon Request Upon Request | Office | - | Now |
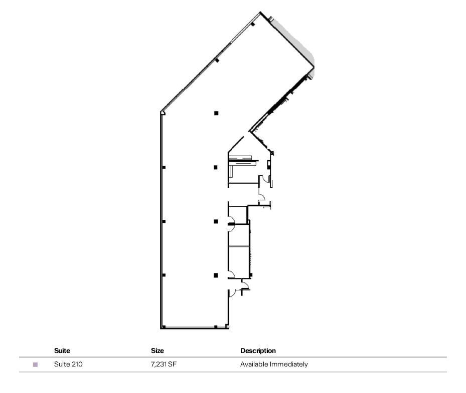
| 2nd Floor, Ste 210 | 7,231 SF | Negotiable | Upon Request Upon Request Upon Request Upon Request | Office | - | Now |
| 2nd Floor, Ste 220 | 4,750 SF | Negotiable | Upon Request Upon Request Upon Request Upon Request | Office | - | Now |
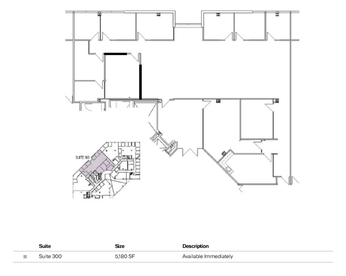
| 3rd Floor, Ste 300 | 5,180 SF | Negotiable | Upon Request Upon Request Upon Request Upon Request | Office | - | Now |
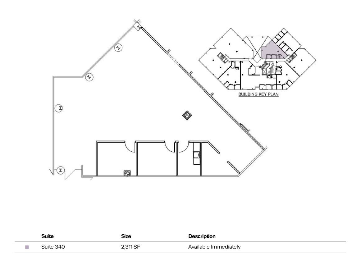
| 3rd Floor, Ste 340 | 2,311 SF | Negotiable | Upon Request Upon Request Upon Request Upon Request | Office | - | Now |
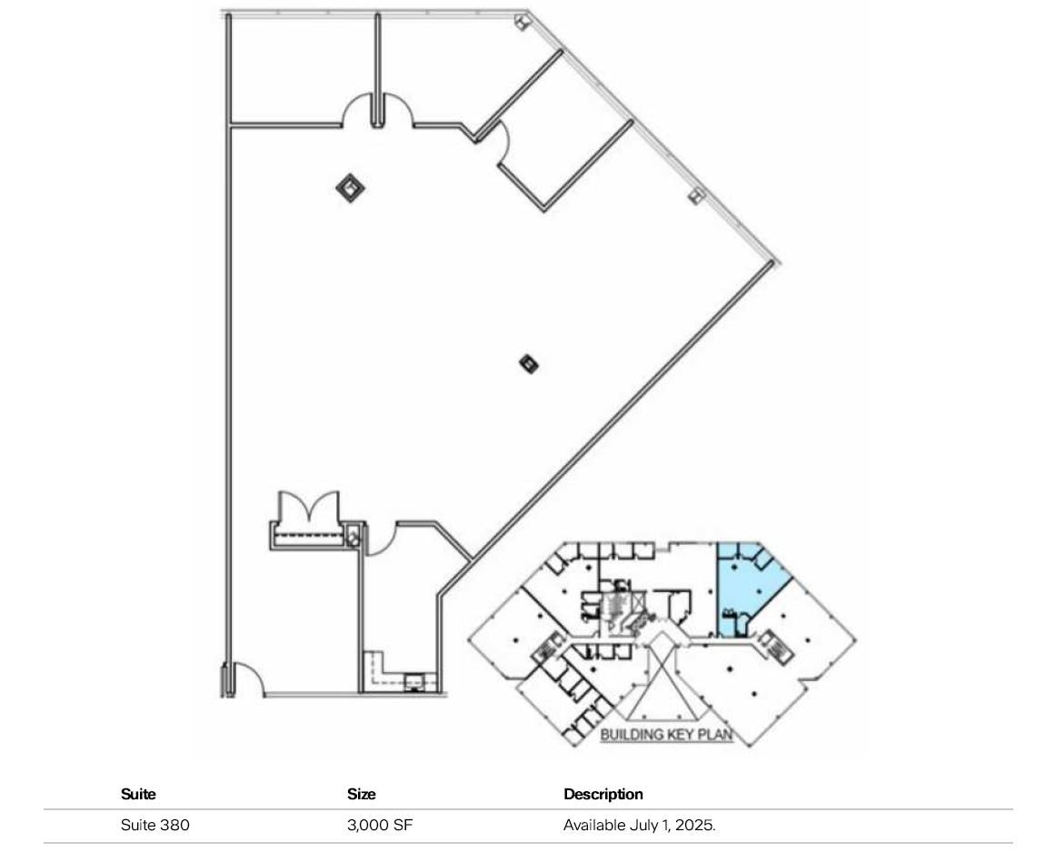
| 3rd Floor, Ste 380 | 3,000 SF | Negotiable | Upon Request Upon Request Upon Request Upon Request | Office | - | Now |
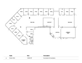
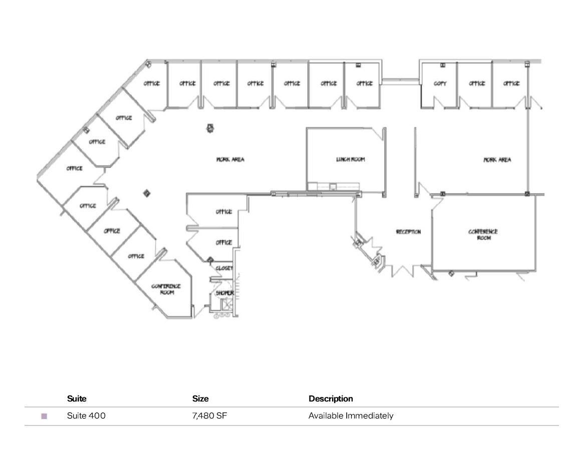
| 4th Floor, Ste 400 | 7,480 SF | Negotiable | Upon Request Upon Request Upon Request Upon Request | Office | - | Now |
| 4th Floor, Ste 450 | 5,016 SF | Negotiable | Upon Request Upon Request Upon Request Upon Request | Office | - | Now |
| 4th Floor, Ste 480 | 3,661 SF | Negotiable | Upon Request Upon Request Upon Request Upon Request | Office | - | Now |
9201 Corporate Blvd - 1st Floor - Ste 100
9201 Corporate Blvd - 1st Floor - Ste 120
9201 Corporate Blvd - 1st Floor - Ste 130
9201 Corporate Blvd - 1st Floor - Ste 150
9201 Corporate Blvd - 2nd Floor - Ste 200
9201 Corporate Blvd - 2nd Floor - Ste 210
9201 Corporate Blvd - 2nd Floor - Ste 220
9201 Corporate Blvd - 3rd Floor - Ste 300
9201 Corporate Blvd - 3rd Floor - Ste 340
9201 Corporate Blvd - 3rd Floor - Ste 380
9201 Corporate Blvd - 4th Floor - Ste 400
9201 Corporate Blvd - 4th Floor - Ste 450
9201 Corporate Blvd - 4th Floor - Ste 480
- Space
- Size
- Term
- Rental Rate
- Space Use
- Build-Out
- Available
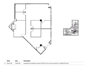
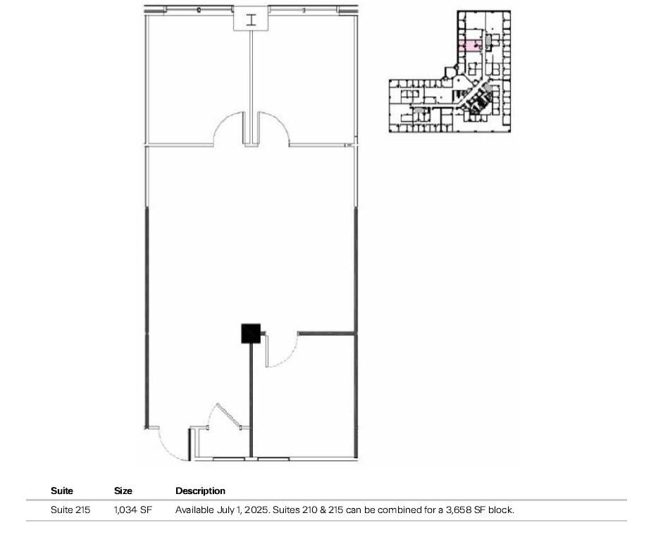
Suites 210 & 215 can be combined for a 3,658 SF block.
- Rate includes utilities, building services and property expenses
- Fits 7 - 21 People
- Fully Built-Out as Standard Office
- Can be combined with additional space(s) for up to 3,658 SF of adjacent space
Suites 210 & 215 can be combined for a 3,658 SF block.
- Rate includes utilities, building services and property expenses
- Can be combined with additional space(s) for up to 3,658 SF of adjacent space
- Fits 3 - 9 People
- Rate includes utilities, building services and property expenses
- Fits 21 - 65 People
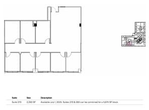
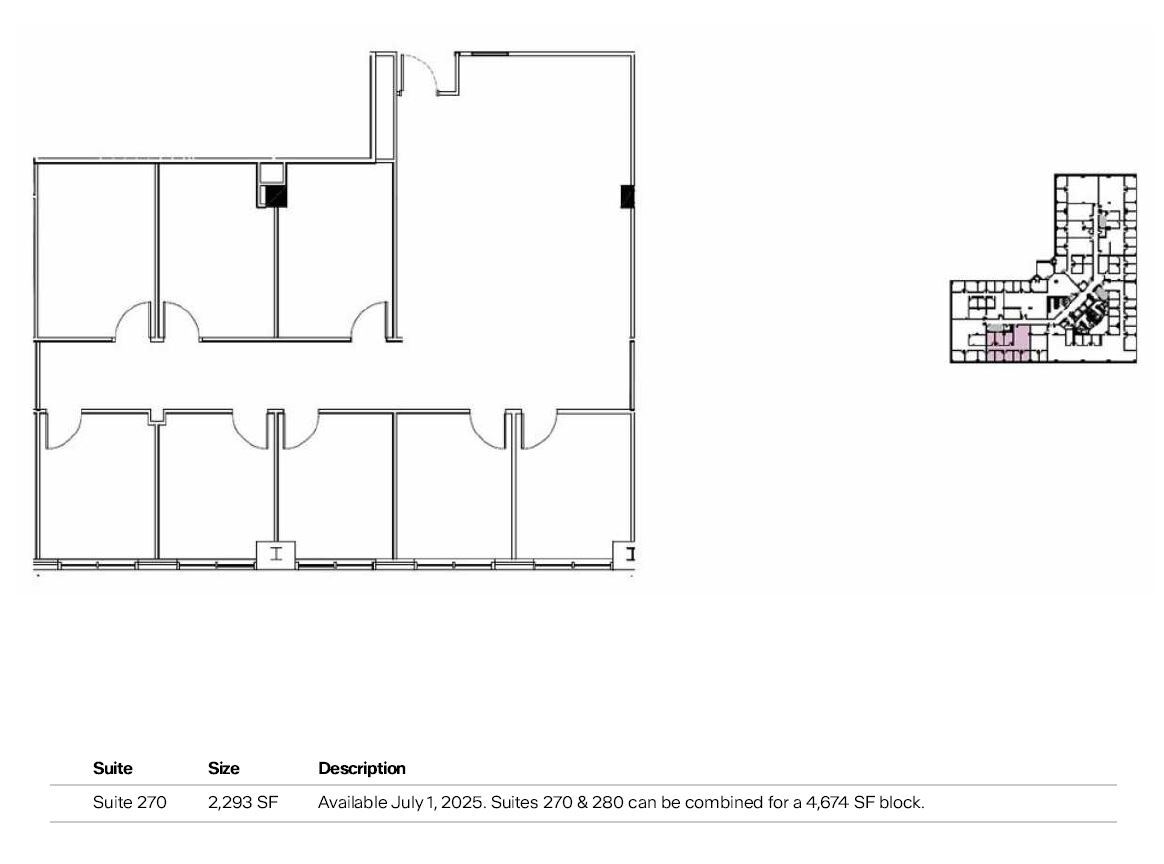
Suites 270 & 280 can be combined for a 4,674 SF block.
- Rate includes utilities, building services and property expenses
- Can be combined with additional space(s) for up to 4,674 SF of adjacent space
- Fits 6 - 19 People
Suites 270 & 280 can be combined for a 4,674 SF block.
- Rate includes utilities, building services and property expenses
- Fits 6 - 20 People
- Fully Built-Out as Standard Office
- Can be combined with additional space(s) for up to 4,674 SF of adjacent space
Suites 300 & 305 can be combined for a 13,651 SF block.
- Rate includes utilities, building services and property expenses
- Fits 24 - 76 People
- Fully Built-Out as Standard Office
- Can be combined with additional space(s) for up to 13,651 SF of adjacent space
Suites 300 & 305 can be combined for a 13,651 SF block.
- Rate includes utilities, building services and property expenses
- Fits 11 - 34 People
- Fully Built-Out as Standard Office
- Can be combined with additional space(s) for up to 13,651 SF of adjacent space
- Rate includes utilities, building services and property expenses
- Fits 5 - 15 People
Full floor available
- Fits 82 - 260 People
| Space | Size | Term | Rental Rate | Space Use | Build-Out | Available |
| 2nd Floor, Ste 210 | 2,624 SF | Negotiable | Upon Request Upon Request Upon Request Upon Request | Office | Full Build-Out | Now |
| 2nd Floor, Ste 215 | 1,034 SF | Negotiable | Upon Request Upon Request Upon Request Upon Request | Office | - | Now |
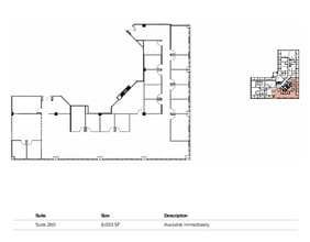
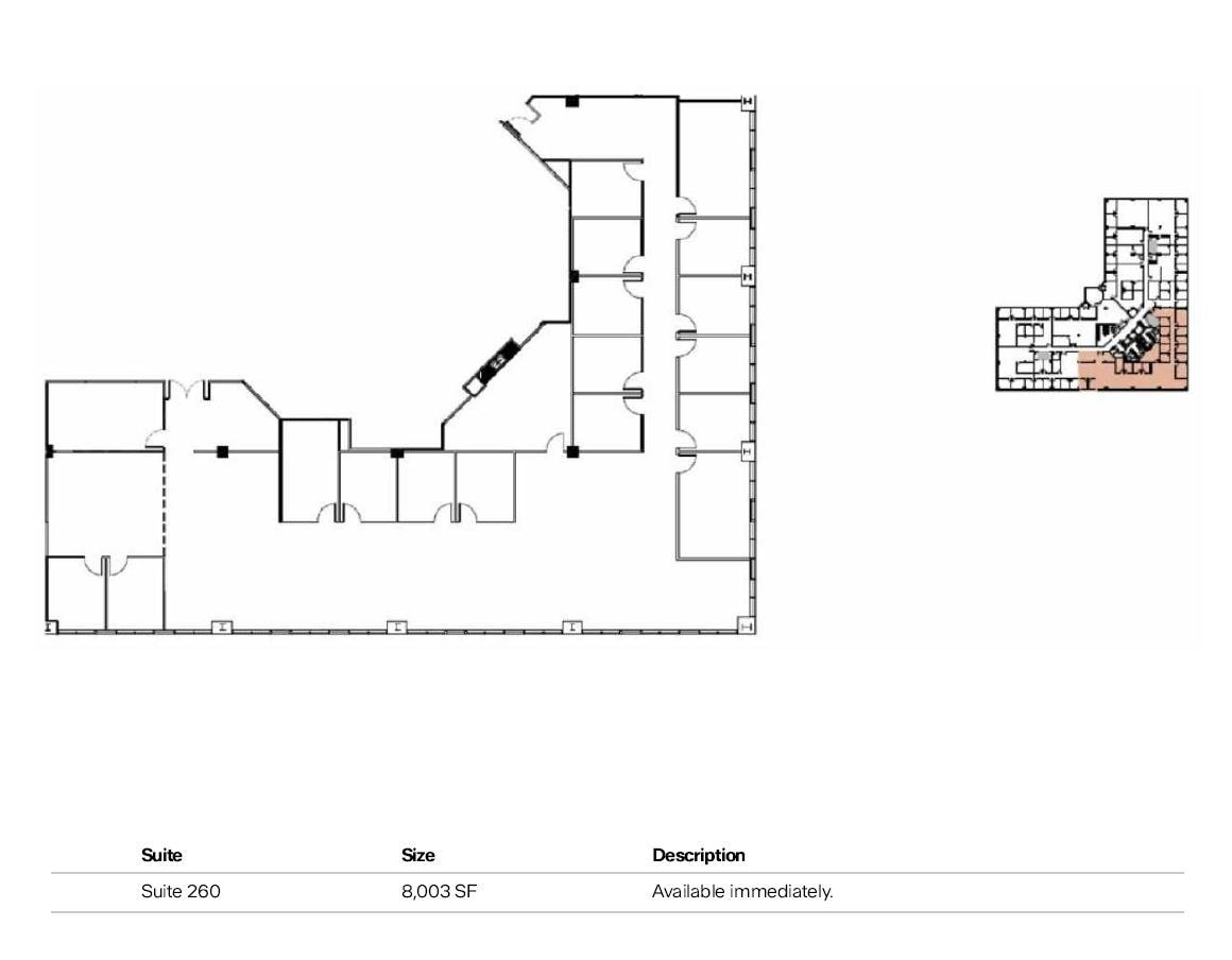
| 2nd Floor, Ste 260 | 8,003 SF | Negotiable | Upon Request Upon Request Upon Request Upon Request | Office | - | Now |
| 2nd Floor, Ste 270 | 2,293 SF | Negotiable | Upon Request Upon Request Upon Request Upon Request | Office | - | Now |
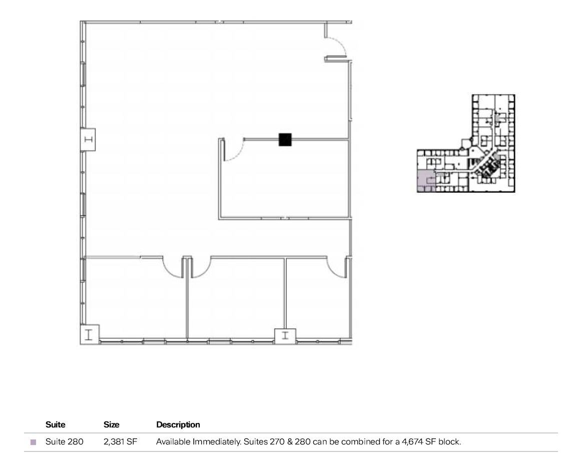
| 2nd Floor, Ste 280 | 2,381 SF | Negotiable | Upon Request Upon Request Upon Request Upon Request | Office | Full Build-Out | Now |
| 3rd Floor, Ste 300 | 9,463 SF | Negotiable | Upon Request Upon Request Upon Request Upon Request | Office | Full Build-Out | Now |
| 3rd Floor, Ste 305 | 4,188 SF | Negotiable | Upon Request Upon Request Upon Request Upon Request | Office | Full Build-Out | Now |
| 3rd Floor, Ste 360 | 1,852 SF | Negotiable | Upon Request Upon Request Upon Request Upon Request | Office | - | 2026-11-01 |
| 4th Floor, Ste 400 | 32,402 SF | Negotiable | Upon Request Upon Request Upon Request Upon Request | Office | - | 2026-09-01 |
9211 Corporate Blvd - 2nd Floor - Ste 210
9211 Corporate Blvd - 2nd Floor - Ste 215
9211 Corporate Blvd - 2nd Floor - Ste 260
9211 Corporate Blvd - 2nd Floor - Ste 270
9211 Corporate Blvd - 2nd Floor - Ste 280
9211 Corporate Blvd - 3rd Floor - Ste 300
9211 Corporate Blvd - 3rd Floor - Ste 305
9211 Corporate Blvd - 3rd Floor - Ste 360
9211 Corporate Blvd - 4th Floor - Ste 400
9200 Corporate Blvd - 1st Floor - Ste 100
| Size | 4,155 SF |
| Term | Negotiable |
| Rental Rate | Upon Request |
| Space Use | Office |
| Build-Out | - |
| Available | Now |
- Rate includes utilities, building services and property expenses
- Fits 11 - 34 People
9200 Corporate Blvd - 1st Floor - Ste 143
| Size | 1,646 SF |
| Term | Negotiable |
| Rental Rate | Upon Request |
| Space Use | Office |
| Build-Out | - |
| Available | Now |
- Rate includes utilities, building services and property expenses
- Fits 5 - 14 People
9200 Corporate Blvd - 2nd Floor - Ste 230
| Size | 4,789 SF |
| Term | Negotiable |
| Rental Rate | Upon Request |
| Space Use | Office |
| Build-Out | - |
| Available | Now |
- Rate includes utilities, building services and property expenses
- Fits 12 - 39 People
9200 Corporate Blvd - 3rd Floor - Ste 375
| Size | 3,605 SF |
| Term | Negotiable |
| Rental Rate | Upon Request |
| Space Use | Office |
| Build-Out | - |
| Available | Now |
- Rate includes utilities, building services and property expenses
- Fits 10 - 29 People
9200 Corporate Blvd - 4th Floor - Ste 460
| Size | 4,313 SF |
| Term | Negotiable |
| Rental Rate | Upon Request |
| Space Use | Office |
| Build-Out | - |
| Available | Now |
Suites 460 & 470 can be combined for a 9,275 SF block.
- Rate includes utilities, building services and property expenses
- Fits 11 - 35 People
- Can be combined with additional space(s) for up to 9,275 SF of adjacent space
9200 Corporate Blvd - 4th Floor - Ste 470
| Size | 4,962 SF |
| Term | Negotiable |
| Rental Rate | Upon Request |
| Space Use | Office |
| Build-Out | - |
| Available | Now |
Suites 460 & 470 can be combined for a 9,275 SF block.
- Rate includes utilities, building services and property expenses
- Fits 13 - 40 People
- Can be combined with additional space(s) for up to 9,275 SF of adjacent space
9201 Corporate Blvd - 1st Floor - Ste 100
| Size | 6,215 SF |
| Term | Negotiable |
| Rental Rate | Upon Request |
| Space Use | Office |
| Build-Out | - |
| Available | Now |
- Rate includes utilities, building services and property expenses
- Fits 16 - 50 People
9201 Corporate Blvd - 1st Floor - Ste 120
| Size | 4,249 SF |
| Term | Negotiable |
| Rental Rate | Upon Request |
| Space Use | Office |
| Build-Out | - |
| Available | Now |
- Rate includes utilities, building services and property expenses
- Fits 11 - 34 People
9201 Corporate Blvd - 1st Floor - Ste 130
| Size | 7,801 SF |
| Term | Negotiable |
| Rental Rate | Upon Request |
| Space Use | Office |
| Build-Out | - |
| Available | Now |
- Rate includes utilities, building services and property expenses
- Fits 20 - 63 People
9201 Corporate Blvd - 1st Floor - Ste 150
| Size | 4,175 SF |
| Term | Negotiable |
| Rental Rate | Upon Request |
| Space Use | Office |
| Build-Out | - |
| Available | Now |
- Rate includes utilities, building services and property expenses
- Fits 11 - 34 People
9201 Corporate Blvd - 2nd Floor - Ste 200
| Size | 5,198 SF |
| Term | Negotiable |
| Rental Rate | Upon Request |
| Space Use | Office |
| Build-Out | - |
| Available | Now |
- Rate includes utilities, building services and property expenses
- Fits 13 - 42 People
9201 Corporate Blvd - 2nd Floor - Ste 210
| Size | 7,231 SF |
| Term | Negotiable |
| Rental Rate | Upon Request |
| Space Use | Office |
| Build-Out | - |
| Available | Now |
- Rate includes utilities, building services and property expenses
- Fits 19 - 58 People
9201 Corporate Blvd - 2nd Floor - Ste 220
| Size | 4,750 SF |
| Term | Negotiable |
| Rental Rate | Upon Request |
| Space Use | Office |
| Build-Out | - |
| Available | Now |
- Fits 12 - 38 People
9201 Corporate Blvd - 3rd Floor - Ste 300
| Size | 5,180 SF |
| Term | Negotiable |
| Rental Rate | Upon Request |
| Space Use | Office |
| Build-Out | - |
| Available | Now |
- Rate includes utilities, building services and property expenses
- Fits 13 - 42 People
9201 Corporate Blvd - 3rd Floor - Ste 340
| Size | 2,311 SF |
| Term | Negotiable |
| Rental Rate | Upon Request |
| Space Use | Office |
| Build-Out | - |
| Available | Now |
- Rate includes utilities, building services and property expenses
- Fits 6 - 19 People
9201 Corporate Blvd - 3rd Floor - Ste 380
| Size | 3,000 SF |
| Term | Negotiable |
| Rental Rate | Upon Request |
| Space Use | Office |
| Build-Out | - |
| Available | Now |
- Fits 8 - 24 People
9201 Corporate Blvd - 4th Floor - Ste 400
| Size | 7,480 SF |
| Term | Negotiable |
| Rental Rate | Upon Request |
| Space Use | Office |
| Build-Out | - |
| Available | Now |
- Rate includes utilities, building services and property expenses
- Fits 19 - 60 People
9201 Corporate Blvd - 4th Floor - Ste 450
| Size | 5,016 SF |
| Term | Negotiable |
| Rental Rate | Upon Request |
| Space Use | Office |
| Build-Out | - |
| Available | Now |
- Fits 13 - 41 People
9201 Corporate Blvd - 4th Floor - Ste 480
| Size | 3,661 SF |
| Term | Negotiable |
| Rental Rate | Upon Request |
| Space Use | Office |
| Build-Out | - |
| Available | Now |
- Rate includes utilities, building services and property expenses
- Fits 10 - 30 People
9211 Corporate Blvd - 2nd Floor - Ste 210
| Size | 2,624 SF |
| Term | Negotiable |
| Rental Rate | Upon Request |
| Space Use | Office |
| Build-Out | Full Build-Out |
| Available | Now |
Suites 210 & 215 can be combined for a 3,658 SF block.
- Rate includes utilities, building services and property expenses
- Fully Built-Out as Standard Office
- Fits 7 - 21 People
- Can be combined with additional space(s) for up to 3,658 SF of adjacent space
9211 Corporate Blvd - 2nd Floor - Ste 215
| Size | 1,034 SF |
| Term | Negotiable |
| Rental Rate | Upon Request |
| Space Use | Office |
| Build-Out | - |
| Available | Now |
Suites 210 & 215 can be combined for a 3,658 SF block.
- Rate includes utilities, building services and property expenses
- Fits 3 - 9 People
- Can be combined with additional space(s) for up to 3,658 SF of adjacent space
9211 Corporate Blvd - 2nd Floor - Ste 260
| Size | 8,003 SF |
| Term | Negotiable |
| Rental Rate | Upon Request |
| Space Use | Office |
| Build-Out | - |
| Available | Now |
- Rate includes utilities, building services and property expenses
- Fits 21 - 65 People
9211 Corporate Blvd - 2nd Floor - Ste 270
| Size | 2,293 SF |
| Term | Negotiable |
| Rental Rate | Upon Request |
| Space Use | Office |
| Build-Out | - |
| Available | Now |
Suites 270 & 280 can be combined for a 4,674 SF block.
- Rate includes utilities, building services and property expenses
- Fits 6 - 19 People
- Can be combined with additional space(s) for up to 4,674 SF of adjacent space
9211 Corporate Blvd - 2nd Floor - Ste 280
| Size | 2,381 SF |
| Term | Negotiable |
| Rental Rate | Upon Request |
| Space Use | Office |
| Build-Out | Full Build-Out |
| Available | Now |
Suites 270 & 280 can be combined for a 4,674 SF block.
- Rate includes utilities, building services and property expenses
- Fully Built-Out as Standard Office
- Fits 6 - 20 People
- Can be combined with additional space(s) for up to 4,674 SF of adjacent space
9211 Corporate Blvd - 3rd Floor - Ste 300
| Size | 9,463 SF |
| Term | Negotiable |
| Rental Rate | Upon Request |
| Space Use | Office |
| Build-Out | Full Build-Out |
| Available | Now |
Suites 300 & 305 can be combined for a 13,651 SF block.
- Rate includes utilities, building services and property expenses
- Fully Built-Out as Standard Office
- Fits 24 - 76 People
- Can be combined with additional space(s) for up to 13,651 SF of adjacent space
9211 Corporate Blvd - 3rd Floor - Ste 305
| Size | 4,188 SF |
| Term | Negotiable |
| Rental Rate | Upon Request |
| Space Use | Office |
| Build-Out | Full Build-Out |
| Available | Now |
Suites 300 & 305 can be combined for a 13,651 SF block.
- Rate includes utilities, building services and property expenses
- Fully Built-Out as Standard Office
- Fits 11 - 34 People
- Can be combined with additional space(s) for up to 13,651 SF of adjacent space
9211 Corporate Blvd - 3rd Floor - Ste 360
| Size | 1,852 SF |
| Term | Negotiable |
| Rental Rate | Upon Request |
| Space Use | Office |
| Build-Out | - |
| Available | 2026-11-01 |
- Rate includes utilities, building services and property expenses
- Fits 5 - 15 People
9211 Corporate Blvd - 4th Floor - Ste 400
| Size | 32,402 SF |
| Term | Negotiable |
| Rental Rate | Upon Request |
| Space Use | Office |
| Build-Out | - |
| Available | 2026-09-01 |
Full floor available
- Fits 82 - 260 People
Select Tenants at This Property
- Floor
- Tenant Name
- Industry
- 4th
- Access Intelligence
- Professional, Scientific, and Technical Services
- 3rd
- American Society for Nutrition
- Services
- 2nd
- Cardinal Financial
- Finance and Insurance
- 4th
- Chickasaw Nation Industries
- Professional, Scientific, and Technical Services
- 3rd
- DP Clinical
- Professional, Scientific, and Technical Services
- Multiple
- Lockheed Martin
- Manufacturing
- 3rd
- On The Marc Media
- Professional, Scientific, and Technical Services
- 4th
- Pps Infotech Llc
- Professional, Scientific, and Technical Services
- 3rd
- Smolen Emr Ilkovitch Architects
- Professional, Scientific, and Technical Services
- 4th
- StarCompliance
- Information
Park Overview
The Grove 270 at 9200-9201 Corporate Boulevard offers more than 575,000 square feet of office space across five buildings nestled in the heart of Montgomery County. This well-established business park boasts 4-story atriums, sophisticated window lines, polished granite floors, and exquisite lobby finishes. With various suite and space options to best fit tenant needs, The Grove 270 is an ideal location for satellite sales offices, corporate headquarters, or anything in between. All suites are move-in-ready and can be customized. Exceptional on-site amenities include a full-service deli, two fitness centers, four on-site conference centers, and free Wi-Fi throughout the park. In addition to its lush green spaces and refreshed landscape, the office park provides ample free surface and covered parking. Positioned for ultimate connectivity, The Grove 270 provides immediate access to Interstate 270 and Highway 28 along Shady Grove Road, making commutes seamless and efficient. Located just 18 miles from Washington, D.C., the property is also a short 2-mile drive to the Shady Grove Metro Station and 4 miles from the Rockville Metro Station. The surrounding area offers convenient walkable residential options, further enhancing accessibility for employees. In addition to the on-site amenities, The Grove 270 is minutes away from a wealth of offsite conveniences, including Dunkin', That’s Amore, Bank of America, Safeway, and several hotels such as Courtyard by Marriott Rockville and The Rockville Hotel, a Ramada by Wyndham. Rockville is a dynamic, family-oriented suburb of Washington, D.C., known for its abundant dining, shopping, and entertainment options. The Grove 270 sits at the center of a thriving market, supported by a robust population of 272,000 residents, 57% of whom hold a bachelor’s degree or higher. The area benefits from a highly educated workforce, access to top universities such as the University of Maryland, Johns Hopkins, and Montgomery College, and proximity to major employers such as The Emmes Company, Montgomery College Central Services HQ, and Lockheed Martin Information Systems. Additionally, Rockville serves as a major hub for biotech and life sciences, with leading firms strategically located near the NIH and FDA. The Grove 270 is a premier office space that offers businesses the ideal environment to thrive, grow, and connect.
- Atrium
- Commuter Rail
- Metro/Subway
- Property Manager on Site
- Security System
Sustainability
Sustainability
LEED Certification Developed by the U.S. Green Building Council (USGBC), the Leadership in Energy and Environmental Design (LEED) is a green building certification program focused on the design, construction, operation, and maintenance of green buildings, homes, and neighborhoods, which aims to help building owners and operators be environmentally responsible and use resources efficiently. LEED certification is a globally recognized symbol of sustainability achievement and leadership. To achieve LEED certification, a project earns points by adhering to prerequisites and credits that address carbon, energy, water, waste, transportation, materials, health and indoor environmental quality. Projects go through a verification and review process and are awarded points that correspond to a level of LEED certification: Platinum (80+ points) Gold (60-79 points) Silver (50-59 points) Certified (40-49 points)
Presented by
The Grove 270 | Rockville, MD 20850
Hmm, there seems to have been an error sending your message. Please try again.
Thanks! Your message was sent.

























































