Your email has been sent.
Guaranty Title Building 921 N Chaparral St 210 - 3,225 SF of Office Space Available in Corpus Christi, TX 78401



Highlights
- Downtown location
- Close to Port and Harbor Bridge
- Corner with great visibility
All Available Spaces(3)
Display Rental Rate as
- Space
- Size
- Term
- Rental Rate
- Space Use
- Build-Out
- Available
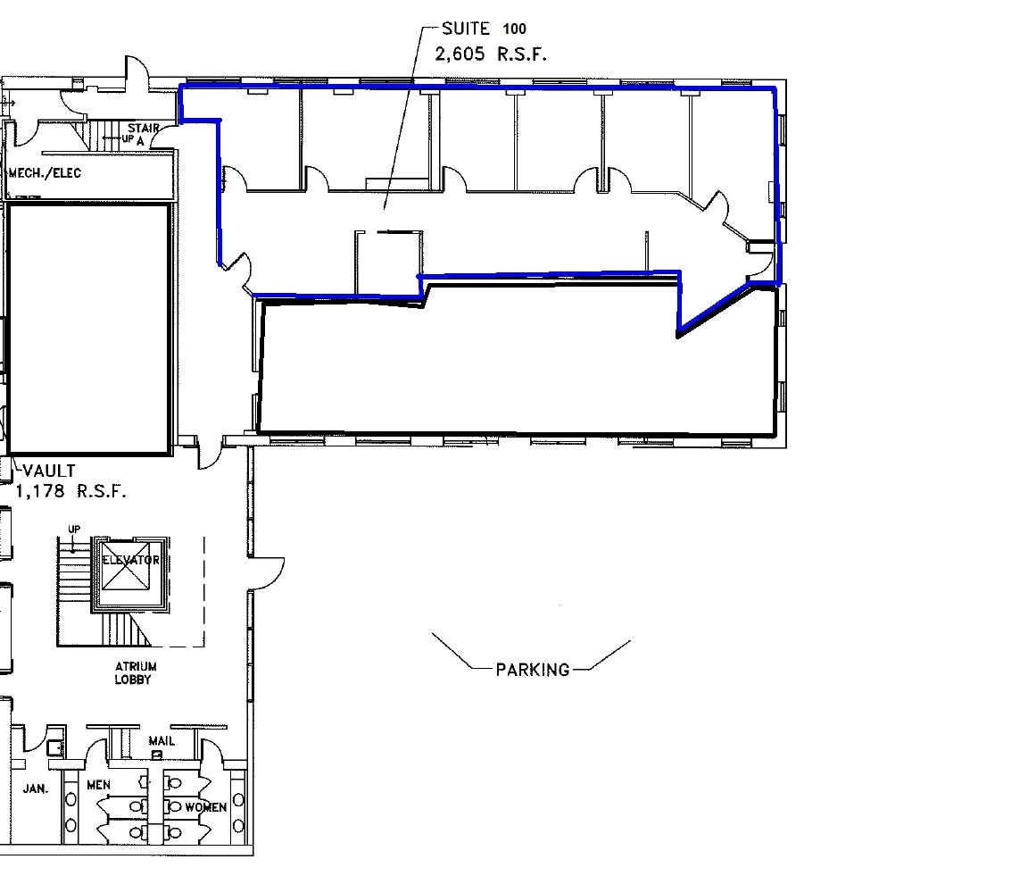
Well-appointed office suite with 2,605 rentable square feet and a highly functional layout. This space features five spacious 12'x12' offices and one 17'x12' conference room, along with a welcoming reception area, IT room and a wide hallway that can serve comfortably as a bullpen or waiting area. The offices boast nice high ceilings and large windows that provide abundant natural light, creating a bright and productive work environment. Ground floor unit in a small historic building.
- Listed rate may not include certain utilities, building services and property expenses
- 5 Private Offices
- 4 Workstations
- Central Air Conditioning
- Atrium
- Landlord pays all other utilities
- Fully Built-Out as Professional Services Office
- 1 Conference Room
- Space is in Excellent Condition
- Corner Space
- $3,200 per month plus internet
Corner second floor office with views of downtwon. Lots of natural light. One recpetion area and private office room approximately 11' x 13'. Suite 208. Modified gross lease Tenant pays phone and internet and LL pays all other utilities. Assigned parking included. Common area break room and private bathrooms for tenants.
- Listed rate may not include certain utilities, building services and property expenses
Private office room approximately 11' x 13' on the second floor. Suite 220. Modified gross lease Tenant pays phone and internet and LL pays all other utilities. Assigned parking included. Common area break room and private bathrooms for tenants.
| Space | Size | Term | Rental Rate | Space Use | Build-Out | Available |
| 1st Floor, Ste 100 | 2,605 SF | 2-3 Years | $20.18 CAD/SF/YR $1.68 CAD/SF/MO $52,564 CAD/YR $4,380 CAD/MO | Office | Full Build-Out | Pending |
| 2nd Floor, Ste 208 | 410 SF | Negotiable | $24.83 CAD/SF/YR $2.07 CAD/SF/MO $10,180 CAD/YR $848.33 CAD/MO | Office | - | 2026-05-15 |
| 2nd Floor, Ste 220 | 210 SF | Negotiable | $26.58 CAD/SF/YR $2.22 CAD/SF/MO $5,582 CAD/YR $465.15 CAD/MO | Office | - | 2026-06-01 |
1st Floor, Ste 100
| Size |
| 2,605 SF |
| Term |
| 2-3 Years |
| Rental Rate |
| $20.18 CAD/SF/YR $1.68 CAD/SF/MO $52,564 CAD/YR $4,380 CAD/MO |
| Space Use |
| Office |
| Build-Out |
| Full Build-Out |
| Available |
| Pending |
2nd Floor, Ste 208
| Size |
| 410 SF |
| Term |
| Negotiable |
| Rental Rate |
| $24.83 CAD/SF/YR $2.07 CAD/SF/MO $10,180 CAD/YR $848.33 CAD/MO |
| Space Use |
| Office |
| Build-Out |
| - |
| Available |
| 2026-05-15 |
2nd Floor, Ste 220
| Size |
| 210 SF |
| Term |
| Negotiable |
| Rental Rate |
| $26.58 CAD/SF/YR $2.22 CAD/SF/MO $5,582 CAD/YR $465.15 CAD/MO |
| Space Use |
| Office |
| Build-Out |
| - |
| Available |
| 2026-06-01 |
1st Floor, Ste 100
| Size | 2,605 SF |
| Term | 2-3 Years |
| Rental Rate | $20.18 CAD/SF/YR |
| Space Use | Office |
| Build-Out | Full Build-Out |
| Available | Pending |
Well-appointed office suite with 2,605 rentable square feet and a highly functional layout. This space features five spacious 12'x12' offices and one 17'x12' conference room, along with a welcoming reception area, IT room and a wide hallway that can serve comfortably as a bullpen or waiting area. The offices boast nice high ceilings and large windows that provide abundant natural light, creating a bright and productive work environment. Ground floor unit in a small historic building.
- Listed rate may not include certain utilities, building services and property expenses
- Fully Built-Out as Professional Services Office
- 5 Private Offices
- 1 Conference Room
- 4 Workstations
- Space is in Excellent Condition
- Central Air Conditioning
- Corner Space
- Atrium
- $3,200 per month plus internet
- Landlord pays all other utilities
2nd Floor, Ste 208
| Size | 410 SF |
| Term | Negotiable |
| Rental Rate | $24.83 CAD/SF/YR |
| Space Use | Office |
| Build-Out | - |
| Available | 2026-05-15 |
Corner second floor office with views of downtwon. Lots of natural light. One recpetion area and private office room approximately 11' x 13'. Suite 208. Modified gross lease Tenant pays phone and internet and LL pays all other utilities. Assigned parking included. Common area break room and private bathrooms for tenants.
- Listed rate may not include certain utilities, building services and property expenses
2nd Floor, Ste 220
| Size | 210 SF |
| Term | Negotiable |
| Rental Rate | $26.58 CAD/SF/YR |
| Space Use | Office |
| Build-Out | - |
| Available | 2026-06-01 |
Private office room approximately 11' x 13' on the second floor. Suite 220. Modified gross lease Tenant pays phone and internet and LL pays all other utilities. Assigned parking included. Common area break room and private bathrooms for tenants.
Property Overview
Lease office space in this beautiful historic building located downtown on the corner of Mann & Chaparral with access to all of the Coastal Bend. Tenant pays for their own internet & phone. Landlord will pay the utilities. The unit will include assigned parking spaces. The building is equipped with an elevator to access the 2nd floor, a break room, and an open lobby. Click on the Spaces link to see the office photos and floorplan.
- 24 Hour Access
- Controlled Access
- Air Conditioning
Property Facts
Presented by
Guaranty Title Building | 921 N Chaparral St
Hmm, there seems to have been an error sending your message. Please try again.
Thanks! Your message was sent.








