Log In/Sign Up
Your email has been sent.
921 Orange St
Wilmington, DE 19801
Office Property For Sale


INVESTMENT HIGHLIGHTS
- 5,760 SF, two-story office building with partially finished lower level
- Zoned C-4 (Central Office) - flexible professional office use
- Convenient access to I-95, I-495, and regional transit
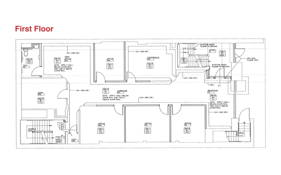
- Interior includes 9 private offices, 3 conference rooms, law library, file storage, server room, and admin/workspace
- Proximity to courthouses, banks, restaurants, and retail in Wilmington's CBD
- Street and nearby garage parking options
EXECUTIVE SUMMARY
Situated on North Orange Street in Wilmington, this 5,760 SF office building offers a professional environment in a prime location just steps from the Central Business District. This property benefits from its walkable setting near government offices, financial institutions, restaurants, and public transit, making it highly convenient for employees and clients alike. With zoning that supports a wide range of office uses, the building provides an excellent opportunity for firms seeking a prominent address in Wilmington's thriving downtown core.
PROPERTY FACTS
Sale Type
Owner User
Property Type
Office
Building Size
5,760 SF
Building Class
C
Year Built
1964
Tenancy
Multiple
Building Height
2 Stories
Typical Floor Size
2,880 SF
Building FAR
1.89
Lot Size
0.07 AC
Opportunity Zone
Yes
Zoning
C-4, Wilmington City
AMENITIES
- Banking
- Signage
PROPERTY TAXES
| Parcel Number | 26-035.20-027 | Improvements Assessment | $230,699 CAD |
| Land Assessment | $314,991 CAD | Total Assessment | $545,690 CAD |
PROPERTY TAXES
Parcel Number
26-035.20-027
Land Assessment
$314,991 CAD
Improvements Assessment
$230,699 CAD
Total Assessment
$545,690 CAD
1 of 16
VIDEOS
MATTERPORT 3D EXTERIOR
MATTERPORT 3D TOUR
PHOTOS
STREET VIEW
STREET
MAP
