Log In/Sign Up
Your email has been sent.
922-926 Industrial Ave 1,200 SF of Office Space Available in Palo Alto, CA 94303



Highlights
- Close proximity to amenities.
- Great freeway access.
Features
Standard Parking Spaces
3
All Available Space(1)
Display Rental Rate as
- Space
- Size
- Term
- Rental Rate
- Space Use
- Build-Out
- Available
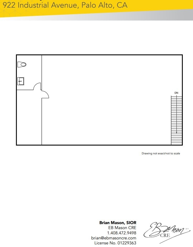
Second floor office space. Close proximity to amenities, great freeway access. The suite has an open floor plan with a restroom.
- Listed rate may not include certain utilities, building services and property expenses
- Open Floor Plan Layout
- Open-Plan
- Fully Built-Out as Standard Office
- Private Restrooms
- Open floor plan.
| Space | Size | Term | Rental Rate | Space Use | Build-Out | Available |
| 2nd Floor, Ste 922 | 1,200 SF | Negotiable | $46.78 CAD/SF/YR $3.90 CAD/SF/MO $56,136 CAD/YR $4,678 CAD/MO | Office | Full Build-Out | Now |
2nd Floor, Ste 922
| Size |
| 1,200 SF |
| Term |
| Negotiable |
| Rental Rate |
| $46.78 CAD/SF/YR $3.90 CAD/SF/MO $56,136 CAD/YR $4,678 CAD/MO |
| Space Use |
| Office |
| Build-Out |
| Full Build-Out |
| Available |
| Now |
1 of 1
Videos
Matterport 3D Exterior
Matterport 3D Tour
Photos
Street View
Street
Map
2nd Floor, Ste 922
| Size | 1,200 SF |
| Term | Negotiable |
| Rental Rate | $46.78 CAD/SF/YR |
| Space Use | Office |
| Build-Out | Full Build-Out |
| Available | Now |
Second floor office space. Close proximity to amenities, great freeway access. The suite has an open floor plan with a restroom.
- Listed rate may not include certain utilities, building services and property expenses
- Fully Built-Out as Standard Office
- Open Floor Plan Layout
- Private Restrooms
- Open-Plan
- Open floor plan.
Property Overview
Multi-tenant office building with 2 floors. The property has great freeway access and sites within close proximity to amenities in the area.
Warehouse Facility Facts
Building Size
7,931 SF
Lot Size
0.40 AC
Year Built
1974
Zoning
GM - Office use
Select Tenants
- Floor
- Tenant Name
- Industry
- Unknown
- B M Brothers LLC
- Construction
- 1st
- Matt Hale Llc
- Services
- Unknown
- Palo Alto Concrete & Construction
- Construction
- 1st
- Scientific Environmental Laboratories Inc
- Services
- Unknown
- Silcon Valley Digital Dcmnts
- Professional, Scientific, and Technical Services
- Unknown
- Smart Tube Inc
- Retailer
1 1
Fairly walkable
50/100
Exceptionally drivable
100/100
Limited public transit
20/100
Moderately bikeable
60/100
1 of 6
Videos
Matterport 3D Exterior
Matterport 3D Tour
Photos
Street View
Street
Map
1 of 1
Presented by
922-926 Industrial Ave
Already a member? Log In
Hmm, there seems to have been an error sending your message. Please try again.
Thanks! Your message was sent.


