Log In/Sign Up
Your email has been sent.
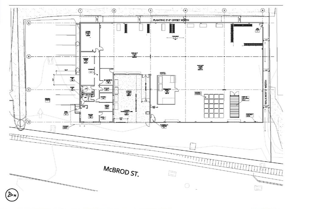
9255 SE McBrod Avenue 9255 SE Mcbrod Ave 14,400 SF of Industrial Space Available in Portland, OR 97222



Highlights
- Very clean, light industrial building with good power
- Covered dock loading
- Good office floor plan with tenant improvements available for general updating (flooring, paint, etc) to fit your company image
- 17' - 18' clear height
- Terrific location, one block from McGloughlin Blvd, and two blocks from the on ramp to Hwy 224, which leads to I-205
- Paint booth/modified clean room available for purchase through 1/31/2026
Features
Clear Height
18’
Drive In Bays
1
Exterior Dock Doors
2
Standard Parking Spaces
12
All Available Space(1)
Display Rental Rate as
- Space
- Size
- Term
- Rental Rate
- Space Use
- Build-Out
- Available
Very clean, light industrial building with good power. Good office floor plan with tenant improvements available for general updating (flooring, paint, etc) to fit your company image.
- Lease rate does not include utilities, property expenses or building services
- 1 Drive Bay
- Covered dock loading
- Terrific location, one block from McGloughlin Blvd
- Includes 2,000 SF of dedicated office space
- 2 Loading Docks
- 17' - 18' clear height
| Space | Size | Term | Rental Rate | Space Use | Build-Out | Available |
| 1st Floor | 14,400 SF | Negotiable | $14.94 CAD/SF/YR $1.24 CAD/SF/MO $215,115 CAD/YR $17,926 CAD/MO | Industrial | Full Build-Out | Now |
1st Floor
| Size |
| 14,400 SF |
| Term |
| Negotiable |
| Rental Rate |
| $14.94 CAD/SF/YR $1.24 CAD/SF/MO $215,115 CAD/YR $17,926 CAD/MO |
| Space Use |
| Industrial |
| Build-Out |
| Full Build-Out |
| Available |
| Now |
1 of 9
Videos
Matterport 3D Exterior
Matterport 3D Tour
Photos
Street View
Street
Map
1st Floor
| Size | 14,400 SF |
| Term | Negotiable |
| Rental Rate | $14.94 CAD/SF/YR |
| Space Use | Industrial |
| Build-Out | Full Build-Out |
| Available | Now |
Very clean, light industrial building with good power. Good office floor plan with tenant improvements available for general updating (flooring, paint, etc) to fit your company image.
- Lease rate does not include utilities, property expenses or building services
- Includes 2,000 SF of dedicated office space
- 1 Drive Bay
- 2 Loading Docks
- Covered dock loading
- 17' - 18' clear height
- Terrific location, one block from McGloughlin Blvd
Property Overview
Industrial Property For Lease ± 14,400 SF (± 2,000 SF Office) | 1.01 AC | $0.91 SF/mo + NNN
Warehouse Facility Facts
Building Size
14,400 SF
Lot Size
1.01 AC
Year Built
1964
Construction
Reinforced Concrete
Sprinkler System
Wet
Lighting
Fluorescent
Water
City
Sewer
City
Heating
Electric
Power Supply
Amps: 600 Volts: 240 Phase: 3
Zoning
NME - Industrial Zoning
1 1
Somewhat walkable
30/100
Moderately drivable
70/100
Some public transit
40/100
Moderately bikeable
70/100
1 of 11
Videos
Matterport 3D Exterior
Matterport 3D Tour
Photos
Street View
Street
Map
1 of 1
Presented by
9255 SE McBrod Avenue | 9255 SE Mcbrod Ave
Already a member? Log In
Hmm, there seems to have been an error sending your message. Please try again.
Thanks! Your message was sent.



