Your email has been sent.
93 Stroud Green Rd 997 SF of Assignment Available in London N4 3PX



ASSIGNMENT HIGHLIGHTS
- The unit is located on Stroud Green Road (A1 201) 0.7 miles from Finsbury Park Underground station.
- The premises also benefit from an excellent fit-out throughout and an external seating area to the front.
- By road, the premises are easily accessible to the A503 Seven Sisters Road and the A406 at Finchley.
SPACE AVAILABILITY (1)
Display Rental Rate as
- SPACE
- SIZE
- TERM
- RENTAL RATE
- TYPE
| Space | Size | Term | Rental Rate | Rent Type | ||
| Ground | 997 SF | Sep 2038 | $89.65 CAD/SF/YR $7.47 CAD/SF/MO $89,383 CAD/YR $7,449 CAD/MO | TBD |
Ground
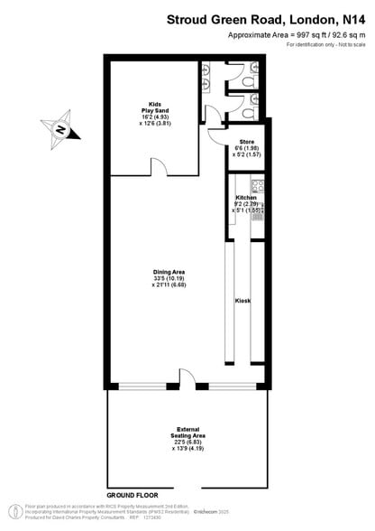
The space compromises 997 sf of ground floor retail accommodation. The premises are available through a lease assignment from our client, who holds them under a lease for a term of 15 years from 28 September 2023 to 27 September 2038. Thus, there are approximately 13 years unexpired. The current passing rent is £48,000.00 per annum exclusive. The next rent review within the lease is on 28 September 2027.
- Use Class: E
- Assignment space available from current tenant
- Fully Built-Out as a Restaurant or Café Space
- Located in-line with other retail
- Secure Storage
- Private Restrooms
- Display frontage
- Open plan
- Good finish
Service Types
The rent amount and service type that the tenant (lessee) will be responsible to pay to the landlord (lessor) throughout the lease term is negotiated prior to both parties signing a lease agreement. The service type will vary depending upon the services provided. Contact the listing broker for a full understanding of any associated costs or additional expenses for each service type.
1. Fully Repairing & Insuring: All obligations for repairing and insuring the property (or their share of the property) both internally and externally.
2. Internal Repairing Only: The tenant is responsible for internal repairs only. The landlord is responsible for structural and external repairs.
3. Internal Repairing & Insuring: The tenant is responsible for internal repairs and insurance for internal parts of the property only. The landlord is responsible for structural and external repairs.
4. Negotiable or TBD: This is used when the leasing contact does not provide the service type.
SELECT TENANTS AT 93 STROUD GREEN RD, LONDON, LND N4 3PX
- TENANT
- DESCRIPTION
- UK LOCATIONS
- REACH
- Finsbury Park Locksmiths
- Manufacturing
- 1
- -
- Sun Flower Gallery
- Retailer
- 1
- -
| TENANT | DESCRIPTION | UK LOCATIONS | REACH |
| Finsbury Park Locksmiths | Manufacturing | 1 | - |
| Sun Flower Gallery | Retailer | 1 | - |
PROPERTY FACTS
| Total Space Available | 997 SF | Gross Leasable Area | 997 SF |
| Property Type | Retail | Year Built | 1930 |
| Property Subtype | Storefront Retail/Residential |
| Total Space Available | 997 SF |
| Property Type | Retail |
| Property Subtype | Storefront Retail/Residential |
| Gross Leasable Area | 997 SF |
| Year Built | 1930 |
ABOUT THE PROPERTY
The property comprises a mid-terrace mixed use building of masonry construction, housing retail accommodation on the ground floor and residential to the floors above. The property is located within close proximity to the A1 Archway Road which provide a good link to junction 1 of the M1 and is within walking distance from Crouch Hill underground Station.
- Automatic Blinds
- Storage Space
Presented by
93 Stroud Green Rd
Hmm, there seems to have been an error sending your message. Please try again.
Thanks! Your message was sent.



