Your email has been sent.
9300 Goreway Dr 1,419 - 4,197 SF Condo Units Offered at $1,399,990 - $4,299,990 CAD Per Unit in Brampton, ON L6P 0M7



Investment Highlights
- A Signature swanky Head Office Space fitting for all business types in close proximity to International Pearson Airport.
- Turn-key, full security, professionally managed, ample parking, a must see!!!
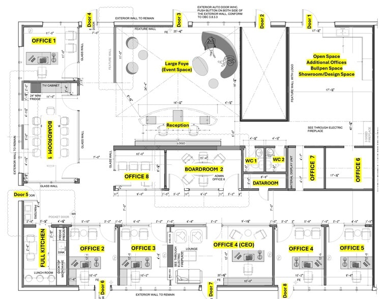
- Executive cabins, 9 private offices + space to add more, multiple executive board rooms, breakout rooms, full functioning kitchen and much more.
Executive Summary
Welcome to 9300 Goreway Drive, a premier commercial retail/office opportunity located in one of Brampton's most desirable business corridors. This offering includes three adjoining, high-end units (111, 112, and 113), available for lease or purchase either collectively as a single combined space or individually (refer to property flyer for details). The property presents an excellent opportunity for corporations seeking a new swanky head office, showroom, or medical/professional space. It features a well-designed and functional layout, including executive offices, private cabins, two boardrooms, open work areas, breakout rooms, and a fully equipped kitchen.Situated within a professionally maintained complex, the property offers ample parking, strong street visibility, and convenient access to major highways, transit routes, and key infrastructure. It is also located in close proximity to Toronto Pearson International Airport, prominent hotels, and a wide range of amenities.
Property Facts
| Total Building Size | 4,197 SF | Typical Floor Size | 4,197 SF |
| Property Type | Retail | Year Built | 2021 |
| Property Subtype | Storefront Retail/Office | Lot Size | 3.33 AC |
| Building Class | B | Parking Ratio | 22.64/1,000 SF |
| Floors | 1 | ||
| Zoning | SC-2033 - General retail/office | ||
| Total Building Size | 4,197 SF |
| Property Type | Retail |
| Property Subtype | Storefront Retail/Office |
| Building Class | B |
| Floors | 1 |
| Typical Floor Size | 4,197 SF |
| Year Built | 2021 |
| Lot Size | 3.33 AC |
| Parking Ratio | 22.64/1,000 SF |
| Zoning | SC-2033 - General retail/office |
Amenities
- Dedicated Turn Lane
- Fenced Lot
- Freeway Visibility
- Security System
- Signage
- Storage Space
- Air Conditioning
- Smoke Detector
3 Units Available
Unit 111
| Unit Size | 1,419 SF | Condo Use | Office |
| Price | $1,399,990 CAD | Sale Type | Investment or Owner User |
| Price Per SF | $986.60 CAD |
| Unit Size | 1,419 SF |
| Price | $1,399,990 CAD |
| Price Per SF | $986.60 CAD |
| Condo Use | Office |
| Sale Type | Investment or Owner User |
Description
1. Layout & Space
9 private offices/executive cabins, 2 dedicated meeting/conference rooms boardrooms, collaborative/ tri-company reception area, large foya/ event space, full kitchen, 2 water closets, data room, Open area for bullpen workstations/showroom. and design space; and
Breakout or lounge areas.
2. Flooring & Walls
flooring premium imported modern tile;
Multiple Stone accent walls;
multiple fireplaces; and
Soundproof partitions.
3. Lighting
Natural light from large windows;
LED lighting / energy-efficient fixtures;
Task lighting for workstations; and
Ambient lighting for meeting rooms.
4. Air & Climate
Central air conditioning and heating;
Ventilation systems for fresh airflow; and
Smart temperature control.
5. Fixtures & Finishes
Modern glass doors and handles;
Built-in storage / cabinets;
Modular furniture options;and
Contemporary ceiling design (false ceilings, recessed lights).
6. Technology & Connectivity
High-speed internet ready;
Fully integrated security system;
Network cabling and server room space; and
Integrated power outlets and charging stations.
7. Comfort & Convenience
Ergonomic workstation setups;
Restrooms with modern fixtures;
Pantry with appliances; and
Breakout zones for relaxation.
Sale Notes
Welcome to 9300 Goreway Drive, a premier commercial retail/office opportunity located in one of Brampton's most desirable business corridors. This offering includes three adjoining, high-end units (111, 112, and 113), available for purchase or lease either collectively as a single combined space or individually (refer to property flyer for details). The property presents an excellent opportunity for corporations seeking a new swanky head office, showroom, or medical/professional space. It features a well-designed and functional layout, including executive offices, private cabins, two boardrooms, open work areas, breakout rooms, and a fully equipped kitchen.Situated within a professionally maintained complex, the property offers ample parking, strong street visibility, and convenient access to major highways, transit routes, and key infrastructure. It is also located in close proximity to Toronto Pearson International Airport, prominent hotels, and a wide range of amenities.
Premium tile, glass walls, contemporary ceiling
Premium tiles, glass walls, contemporary ceiling
Private Office
Break out Room
Private Office
Break out Room
Open area for bullpen, workstations/showroom.
Open area for additional offices and/or showroom.
Endcap unit, 8 entry/exit points
Unit 113
| Unit Size | 4,197 SF | Condo Use | Retail |
| Price | $4,299,990 CAD | Sale Type | Owner User |
| Price Per SF | $1,024.54 CAD |
| Unit Size | 4,197 SF |
| Price | $4,299,990 CAD |
| Price Per SF | $1,024.54 CAD |
| Condo Use | Retail |
| Sale Type | Owner User |
Description
1. Layout & Space
9 private offices/executive cabins, 2 dedicated meeting/conference rooms boardrooms, collaborative/ tri- company reception area, large foya/ event space, full kitchen, 2 water closets, data room, Open area for bullpen workstations/showroom. and design space; and
Breakout or lounge areas.
2. Flooring & Walls
flooring premium imported modern tile;
Multiple Stone accent walls;
multiple fireplaces; and
Soundproof partitions.
3. Lighting
Natural light from large windows;
LED lighting / energy-efficient fixtures;
Task lighting for workstations; and
Ambient lighting for meeting rooms.
4. Air & Climate
Central air conditioning and heating;
Ventilation systems for fresh airflow; and
Smart temperature control.
5. Fixtures & Finishes
Modern glass doors and handles;
Built-in storage / cabinets;
Modular furniture options;and
Contemporary ceiling design (false ceilings, recessed lights).
6. Technology & Connectivity
High-speed internet ready;
Fully integrated security system;
Network cabling and server room space; and
Integrated power outlets and charging stations.
7. Comfort & Convenience
Ergonomic workstation setups;
Restrooms with modern fixtures;
Pantry with appliances; and
Breakout zones for relaxation.
Sale Notes
Welcome to 9300 Goreway Drive, a premier commercial retail/office opportunity located in one of Brampton's most desirable business corridors. This offering includes three adjoining, high-end units (111, 112, and 113), available for lease or purchase either collectively as a single combined space or individually (refer to property flyer for details). The property presents an excellent opportunity for corporations seeking a new swanky head office, showroom, or medical/professional space. It features a well-designed and functional layout, including executive offices, private cabins, two boardrooms, open work areas, breakout rooms, and a fully equipped kitchen.Situated within a professionally maintained complex, the property offers ample parking, strong street visibility, and convenient access to major highways, transit routes, and key infrastructure. It is also located in close proximity to Toronto Pearson International Airport, prominent hotels, and a wide range of amenities.
Sign on 3 building sides. 4 signage opportunities.
Tri-company reception area with accent wall
Large Open Foya and Event Space
Large Open Foya and Event Space
Fully integrated 14 person boardroom with dry bar
Sleek Design with well situated glass partitions
Premium tiles, glass walls, contemporary ceiling
Premium tiles, glass walls, contemporary ceiling
Executive Cabin
Executive Cabin Lounge With Private Entry
Break out Room
Private Office
Break out Room 2
Private Office 2
Open area for bullpen, workstations/showroom.
Open area for additional offices and/or showroom.
Endcap unit, 8 entry/exit points
Unit 212
| Unit Size | 2,778 SF | Condo Use | Office |
| Price | $2,899,990 CAD | Sale Type | Investment or Owner User |
| Price Per SF | $1,043.91 CAD |
| Unit Size | 2,778 SF |
| Price | $2,899,990 CAD |
| Price Per SF | $1,043.91 CAD |
| Condo Use | Office |
| Sale Type | Investment or Owner User |
Description
1. Layout & Space
9 private offices/executive cabins, 2 dedicated meeting/conference rooms boardrooms, collaborative/ tri-company reception area, large foya/ event space, full kitchen, 2 water closets, data room, Open area for bullpen workstations/showroom. and design space; and
Breakout or lounge areas.
2. Flooring & Walls
flooring premium imported modern tile;
Multiple Stone accent walls;
multiple fireplaces; and
Soundproof partitions.
3. Lighting
Natural light from large windows;
LED lighting / energy-efficient fixtures;
Task lighting for workstations; and
Ambient lighting for meeting rooms.
4. Air & Climate
Central air conditioning and heating;
Ventilation systems for fresh airflow; and
Smart temperature control.
5. Fixtures & Finishes
Modern glass doors and handles;
Built-in storage / cabinets;
Modular furniture options;and
Contemporary ceiling design (false ceilings, recessed lights).
6. Technology & Connectivity
High-speed internet ready;
Fully integrated security system;
Network cabling and server room space; and
Integrated power outlets and charging stations.
7. Comfort & Convenience
Ergonomic workstation setups;
Restrooms with modern fixtures;
Pantry with appliances; and
Breakout zones for relaxation.
Sale Notes
Welcome to 9300 Goreway Drive, a premier commercial retail/office opportunity located in one of Brampton's most desirable business corridors. This offering includes three adjoining, high-end units (111, 112, and 113), available for purchase or lease either collectively as a single combined space or individually (refer to property flyer for details). The property presents an excellent opportunity for corporations seeking a new swanky head office, showroom, or medical/professional space. It features a well-designed and functional layout, including executive offices, private cabins, two boardrooms, open work areas, breakout rooms, and a fully equipped kitchen.Situated within a professionally maintained complex, the property offers ample parking, strong street visibility, and convenient access to major highways, transit routes, and key infrastructure. It is also located in close proximity to Toronto Pearson International Airport, prominent hotels, and a wide range of amenities
Sign on 3 building sides. 4 signage opportunity
Large Open Foya and Event Space
Tri-company reception area with acent wall
Custom made reception+ Display hub
Fully integrated 14 person boardroom with dry bar
Sleek Design with well situated glass partition
Premium tile, glass walls, contemporary ceiling
Premium tile, glass walls, contemporary ceiling
Executive Cabin
Executive Cabin Lounge With Private Entry
Private Office
Break out room
Private Office 2
Break out room 2
Open area for bullpen ,workstations/showroom.
Open area for additional offices and/or showroom.
Endcap unit, 8 entry/exit points
Nearby Major Retailers
Presented by
9300 Goreway Dr
Hmm, there seems to have been an error sending your message. Please try again.
Thanks! Your message was sent.



