Enter your email to login or create a free account
This feature is unavailable at the moment.
We apologize, but the feature you are trying to access is currently unavailable. We are aware of this issue and our team is working hard to resolve the matter.
Please check back in a few minutes. We apologize for the inconvenience.
- LoopNet Team
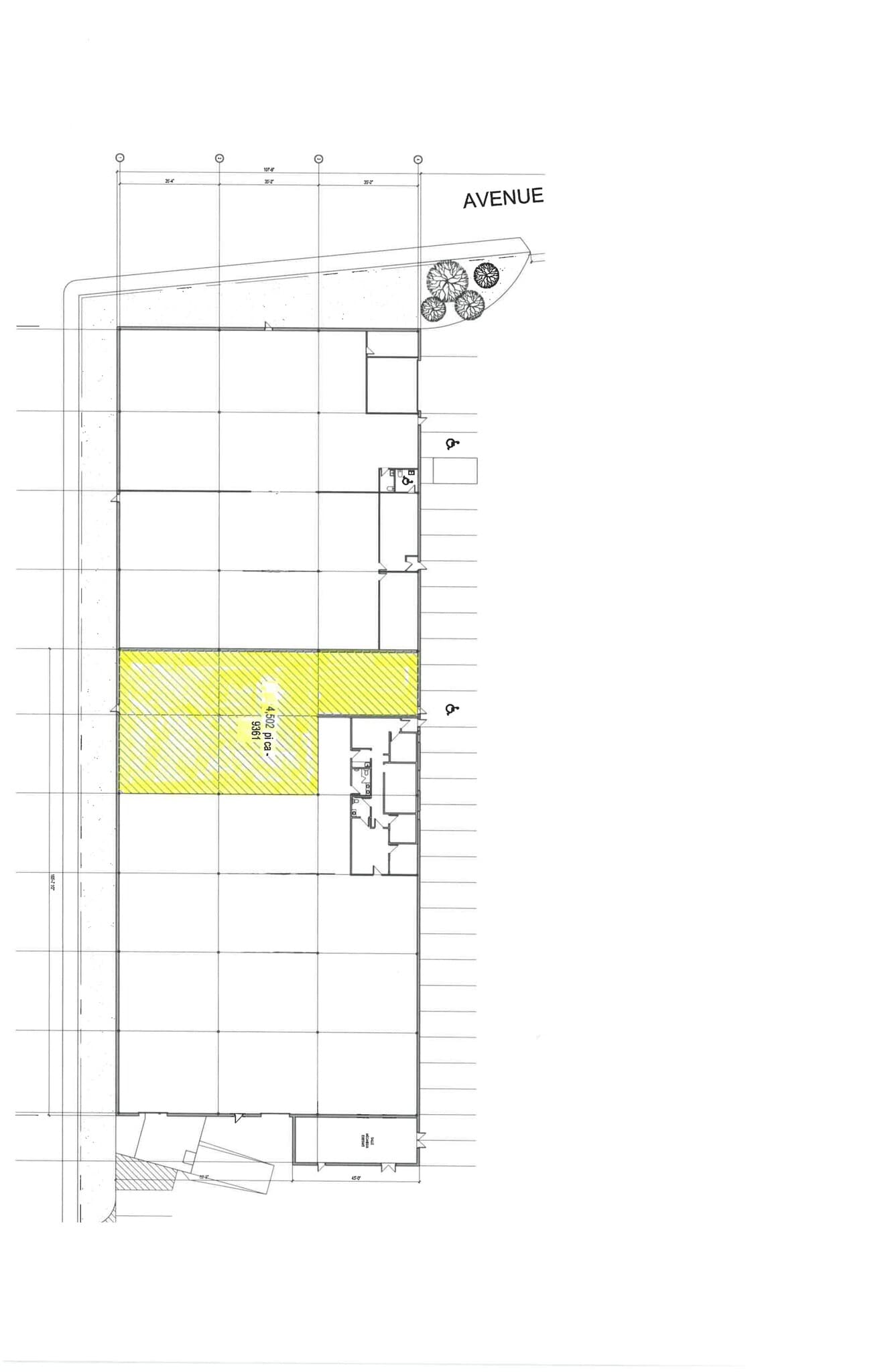
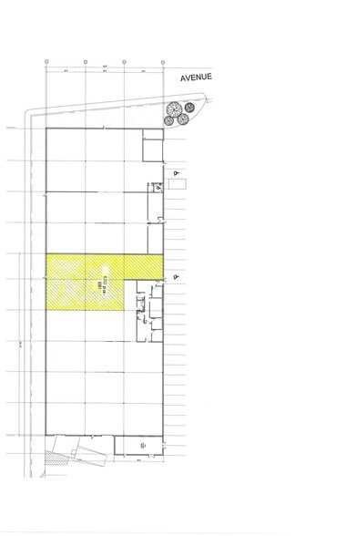
9361 Rue Wanklyn
Montréal, QC H8R 1Z2
Property For Lease

Highlights
- Situated in the Suburb of Lasalle
- Close to Dorval Airport
- Close proximity to both the downtown core
Property Overview
A 120,000 multi-tenant industrial complex featuring four (4) buildings. Situated in the Suburb of Lasalle with close proximity to both the downtown core as well as the Dorval Airport. The Buildings benefit from twenty (20) foot ceiling heights and abundant parking. Sizes range in order to cater to a large variety of tenant requirements.
Property Facts
| Property Type | Industrial | Rentable Building Area | 31,191 SF |
| Property Subtype | Warehouse | Year Built/Renovated | 1960/2005 |
| Property Type | Industrial |
| Property Subtype | Warehouse |
| Rentable Building Area | 31,191 SF |
| Year Built/Renovated | 1960/2005 |
Features and Amenities
- Fenced Lot
- Front Loading
- Security System
- Signage
- Monument Signage
- Smoke Detector
Attachments
| wanklyn-KEY PLAN |
| 9361 Wanklyn Floor Plan |
Listing ID: 31062304
Date on Market: 2024-02-27
Last Updated:
Address: 9361 Rue Wanklyn, Montréal, QC H8R 1Z2
The LaSalle Industrial Property at 9361 Rue Wanklyn, Montréal, QC H8R 1Z2 is no longer being advertised on LoopNet.ca. Contact the broker for information on availability.
INDUSTRIAL PROPERTIES IN NEARBY NEIGHBORHOODS
- Ville-Marie Commercial Properties
- Saint-Laurent Commercial Properties
- Le Plateau-Mont-Royal Commercial Properties
- Ahuntsic-Cartierville Commercial Properties
- Villeray-Saint-Michel-Parc-Extension Commercial Properties
- Le Sud-Ouest Commercial Properties
- Lachine Commercial Properties
- Roussillon Commercial Properties
- Côte-des-Neiges-Notre-Dame-de-Grâce Commercial Properties
- Rosemont-La Petite-Patrie Commercial Properties
- Chomedey Commercial Properties
NEARBY LISTINGS
- 9681-9725 Rue Clément, Montréal QC
- 2515-2525 Rue Lapierre, Montréal QC
- 360-366 Av Lafleur, Montréal QC
- 2555 Ave Dollard, Montréal QC
- 1 Rue Provost, Montréal QC
- 2698-2720 Rue Léger, Montréal QC
- 2698-2720 Rue Léger, Montréal QC
- 2165 Av Madison, Montréal QC
- 45 Boul Saint-Joseph, Lachine QC
- 2345 Rue Lapierre, Montréal QC
- 255 Rue Norman, Lachine QC
- 300 Rue de la Berge-du-Canal, Montréal QC
- 6265-6277 Rue Saint-Jacques, Montréal QC
- 2555 Ave Dollard, Montréal QC
- 6175-6177 Rue Sherbrooke O, Montréal QC
