Log In/Sign Up
Your email has been sent.
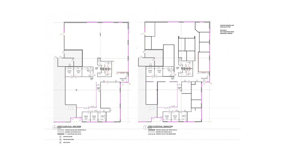
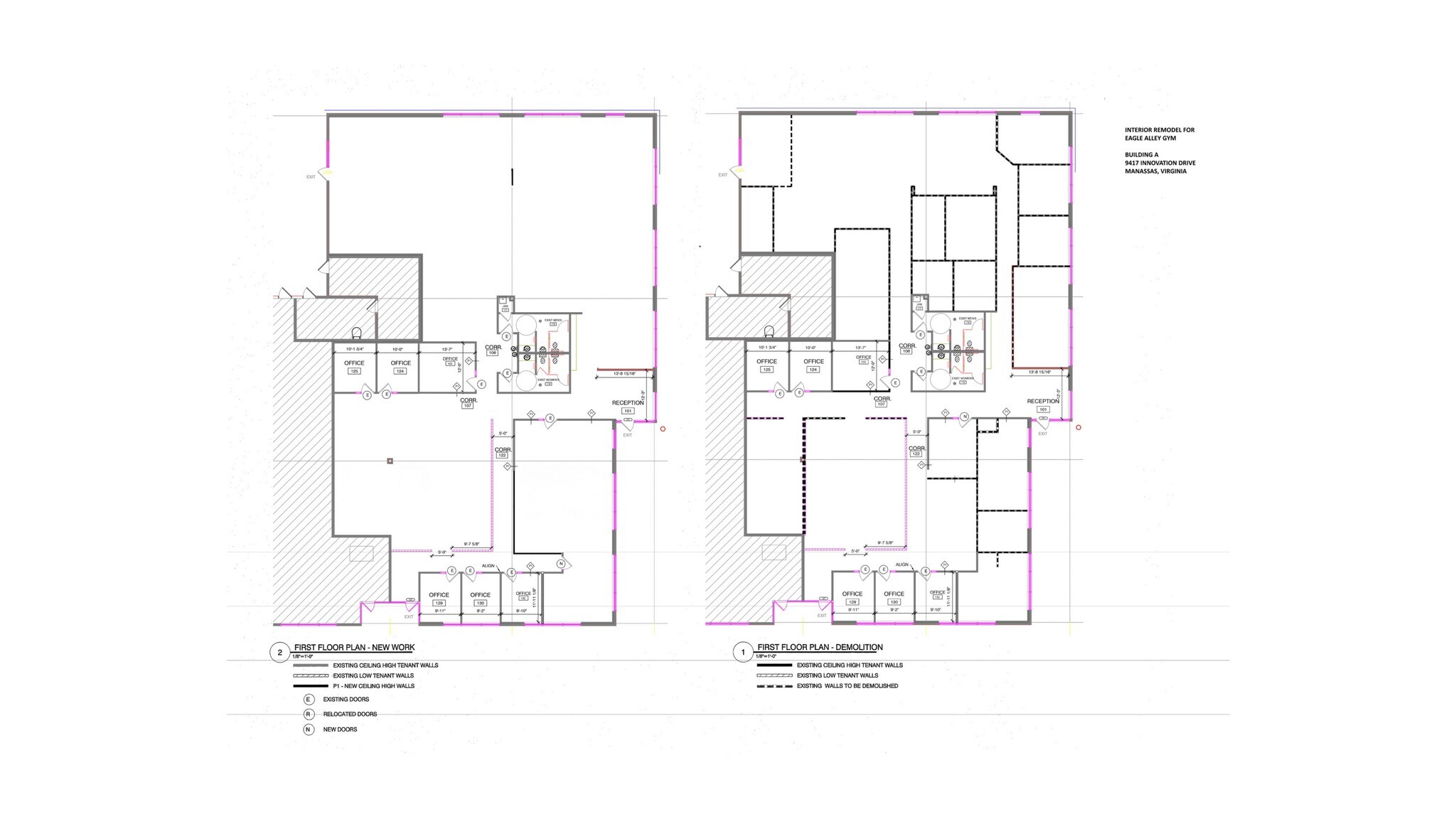
9371 Innovation Dr
Manassas, VA 20110
Building A · Flex Property For Lease
·
9,006 SF


FEATURES
Clear Height
18’
Drive In Bays
2
PROPERTY OVERVIEW
Class A flex space In the heart of Innovation where many cutting edge bio and technology companies choose to call home including George Mason's Science and Technology campus. Multiple fiber options. Amenities within walking distance. Quick access to 28/PW Parkway and 66.
PROPERTY FACTS
Building Size
32,893 SF
Lot Size
3.01 AC
Year Built
2006
Construction
Reinforced Concrete
Zoning
PBD, Manassas - Planned Business District
1 of 15
VIDEOS
MATTERPORT 3D EXTERIOR
MATTERPORT 3D TOUR
PHOTOS
STREET VIEW
STREET
MAP
