Log In/Sign Up
Your email has been sent.
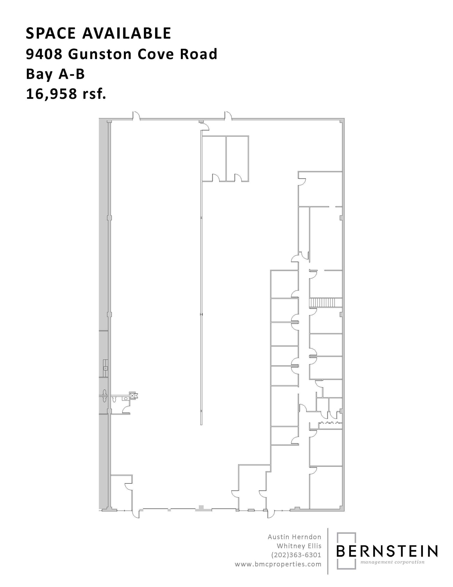
Gunston Industrial Center 1 9408 Gunston Cove Rd 16,958 SF of Industrial Space Available in Lorton, VA 22079



Features
Clear Height
20’
Column Spacing
40’ x 40’
Drive In Bays
2
Exterior Dock Doors
20
Standard Parking Spaces
40
All Available Space(1)
Display Rental Rate as
- Space
- Size
- Term
- Rental Rate
- Space Use
- Build-Out
- Available
16,958 SF industrial unit with office space and 4 loading docks available for lease.
- 4 Loading Docks
| Space | Size | Term | Rental Rate | Space Use | Build-Out | Available |
| 1st Floor - A-B | 16,958 SF | Negotiable | Upon Request Upon Request Upon Request Upon Request | Industrial | Full Build-Out | 60 Days |
1st Floor - A-B
| Size |
| 16,958 SF |
| Term |
| Negotiable |
| Rental Rate |
| Upon Request Upon Request Upon Request Upon Request |
| Space Use |
| Industrial |
| Build-Out |
| Full Build-Out |
| Available |
| 60 Days |
1 of 1
Videos
Matterport 3D Exterior
Matterport 3D Tour
Photos
Street View
Street
Map
1st Floor - A-B
| Size | 16,958 SF |
| Term | Negotiable |
| Rental Rate | Upon Request |
| Space Use | Industrial |
| Build-Out | Full Build-Out |
| Available | 60 Days |
16,958 SF industrial unit with office space and 4 loading docks available for lease.
- 4 Loading Docks
Warehouse Facility Facts
Building Size
59,670 SF
Lot Size
6.00 AC
Year Built
1988
Construction
Masonry
Sprinkler System
Dry
Water
City
Sewer
City
Heating
Gas
Gas
Natural
Power Supply
Phase: 3
Zoning
I-6 - I-6 Many uses allowed by zoning.
Select Tenants
- Floor
- Tenant Name
- Industry
- 1st
- Anning-Johnson Company
- Construction
- 1st
- Leather Links
- Wholesaler
- 1st
- WOW USA, Inc.
- Construction
1 1
Somewhat walkable
20/100
Exceptionally drivable
100/100
Minimal public transit
10/100
1 of 5
Videos
Matterport 3D Exterior
Matterport 3D Tour
Photos
Street View
Street
Map
1 of 1
Presented by
Gunston Industrial Center 1 | 9408 Gunston Cove Rd
Already a member? Log In
Hmm, there seems to have been an error sending your message. Please try again.
Thanks! Your message was sent.


