Your email has been sent.
Highlights
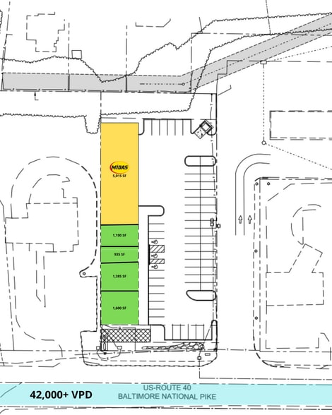
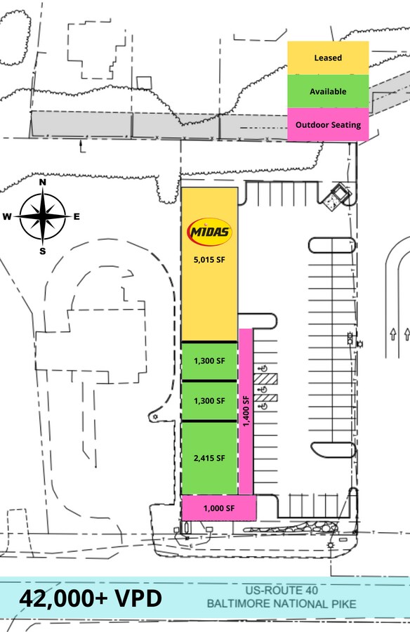
- Proposed Uses: National QSR, Retail Service (Physical Therapy, Nail Salon, Hair Salon, etc)
- 1,300-5,015 Sq Ft Available
- 42,000 VPD
- New Construction
- Can be Demised Into 3 Spaces
- Thriving Retail Corridor, Highly Accessible from Rt. 40 and Rt. 29
Space Availability (1)
Display Rental Rate as
- Space
- Size
- Term
- Rental Rate
- Rent Type
| Space | Size | Term | Rental Rate | Rent Type | ||
| 1st Floor | 1,300-5,015 SF | Negotiable | Upon Request Upon Request Upon Request Upon Request | Negotiable |
1st Floor
A great opportunity on the sought after Ellicott City Route 40 corridor. This New Retail Center will allow up to 5,015 Sq Ft Available. High income families in the area with available disposable income. Ellicott City Route 40 has extremely strong daytime traffic of over 42,000 VPD along with the high available and disposable income provides a robust and stable customer base for any retail environment. Modern building with high ceilings will provide an appealing and energy efficient space which will be available and customizable to the needs of any particular tenant. This site offer easy on/off access to Route 40 and provides great frontage and visibility off this heavily trafficked corridor. Any retailer's customer base will appreciate the easy access to Route 40 from Interstate 70 or Route 29.
- Space is in Excellent Condition
- Prime Route 40 Location
- Strong Traffic Counts
- Affluent trade area
- Flexible retail space
- Modern, efficient design
Rent Types
The rent amount and type that the tenant (lessee) will be responsible to pay to the landlord (lessor) throughout the lease term is negotiated prior to both parties signing a lease agreement. The rent type will vary depending upon the services provided. For example, triple net rents are typically lower than full service rents due to additional expenses the tenant is required to pay in addition to the base rent. Contact the listing broker for a full understanding of any associated costs or additional expenses for each rent type.
1. Full Service: A rental rate that includes normal building standard services as provided by the landlord within a base year rental.
2. Double Net (NN): Tenant pays for only two of the building expenses; the landlord and tenant determine the specific expenses prior to signing the lease agreement.
3. Triple Net (NNN): A lease in which the tenant is responsible for all expenses associated with their proportional share of occupancy of the building.
4. Modified Gross: Modified Gross is a general type of lease rate where typically the tenant will be responsible for their proportional share of one or more of the expenses. The landlord will pay the remaining expenses. See the below list of common Modified Gross rental rate structures: 4. Plus All Utilities: A type of Modified Gross Lease where the tenant is responsible for their proportional share of utilities in addition to the rent. 4. Plus Cleaning: A type of Modified Gross Lease where the tenant is responsible for their proportional share of cleaning in addition to the rent. 4. Plus Electric: A type of Modified Gross Lease where the tenant is responsible for their proportional share of the electrical cost in addition to the rent. 4. Plus Electric & Cleaning: A type of Modified Gross Lease where the tenant is responsible for their proportional share of the electrical and cleaning cost in addition to the rent. 4. Plus Utilities and Char: A type of Modified Gross Lease where the tenant is responsible for their proportional share of the utilities and cleaning cost in addition to the rent. 4. Industrial Gross: A type of Modified Gross lease where the tenant pays one or more of the expenses in addition to the rent. The landlord and tenant determine these prior to signing the lease agreement.
5. Tenant Electric: The landlord pays for all services and the tenant is responsible for their usage of lights and electrical outlets in the space they occupy.
6. Negotiable or Upon Request: Used when the leasing contact does not provide the rent or service type.
7. TBD: To be determined; used for buildings for which no rent or service type is known, commonly utilized when the buildings are not yet built.
Property Facts
| Total Space Available | 5,015 SF | Year Built | 2027 |
| Min. Divisible | 1,300 SF | Parking Ratio | 5.68/1,000 SF |
| Property Type | Retail | Construction Status | Under Construction |
| Gross Leasable Area | 10,030 SF |
| Total Space Available | 5,015 SF |
| Min. Divisible | 1,300 SF |
| Property Type | Retail |
| Gross Leasable Area | 10,030 SF |
| Year Built | 2027 |
| Parking Ratio | 5.68/1,000 SF |
| Construction Status | Under Construction |
About the Property
A great opportunity on the sought after Ellicott City Route 40 corridor. This New Retail Center will allow up to 5,015 Sq Ft Available. High income families in the area with available disposable income. Ellicott City Route 40 has extremely strong daytime traffic of over 42,000 VPD along with the high available and disposable income provides a robust and stable customer base for any retail environment. Modern building with high ceilings will provide an appealing and energy efficient space which will be available and customizable to the needs of any particular tenant. This site offer easy on/off access to Route 40 and provides great frontage and visibility off this heavily trafficked corridor. Any retailer's customer base will appreciate the easy access to Route 40 from Interstate 70 or Route 29.
- Signage
- Air Conditioning
Nearby Major Retailers
Presented by
9436 Baltimore National Pike
Hmm, there seems to have been an error sending your message. Please try again.
Thanks! Your message was sent.





