Log In/Sign Up
Your email has been sent.
9593 N McGee St
Kansas City, MO 64155
Northland Office Space · Office Property For Lease
·
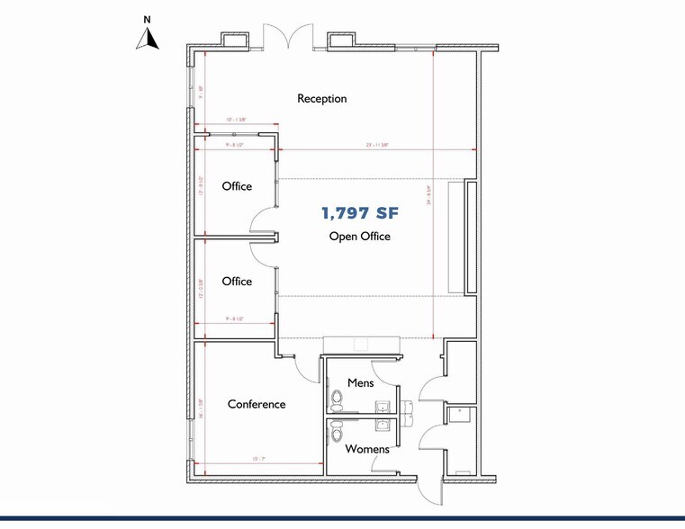
1,797 SF


Highlights
- ±1,797 SF office space featuring a functional open floor plan with three private offices, a kitchenette and restrooms
- Ideal for insurance, real estate, therapy or other professional office users
- Excellent accessibility just minutes from MO-152 in the Northland with close proximity to retail, dining and service amenities
- Located in a well-maintained two-tenant building next to Starbucks
- Convenient on-site parking is available
Property Facts
| Total Space Available | 1,797 SF | Gross Leasable Area | 3,724 SF |
| Property Type | Retail | Year Built | 2016 |
| Property Subtype | Freestanding | Parking Ratio | 5.64/1,000 SF |
| Total Space Available | 1,797 SF |
| Property Type | Retail |
| Property Subtype | Freestanding |
| Gross Leasable Area | 3,724 SF |
| Year Built | 2016 |
| Parking Ratio | 5.64/1,000 SF |
About the Property
This ±1,797 SF office space features a highly functional layout with an open work area, three private offices, a kitchenette, and restrooms, making it well suited for a variety of professional users. Located in a well-maintained two-tenant building next to Starbucks, the space is ideal for insurance, real estate, therapy, or other office-based businesses looking for a convenient and approachable location. The property offers easy on-site parking for both employees and visitors and provides excellent accessibility just minutes from MO-152, with close proximity to a wide range of retail, dining, and everyday service amenities throughout the Northland.
1 of 3
Videos
Matterport 3D Exterior
Matterport 3D Tour
Photos
Street View
Street
Map
