Log In/Sign Up
Your email has been sent.
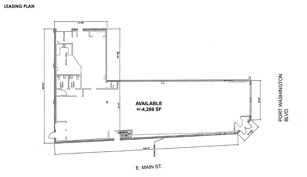
961-1029 Port Washington Blvd
Port Washington, NY 11050
Port Commons Shopping Center · Retail Property For Lease
·
4,266 SF


HIGHLIGHTS
- Restaurant/Retail with Parking Available
PROPERTY FACTS
| Total Space Available | 4,266 SF | Total Land Area | 3.04 AC |
| Property Type | Retail | Year Built/Renovated | 1947/2011 |
| Gross Leasable Area | 35,000 SF | Parking Ratio | 4.29/1,000 SF |
| Total Space Available | 4,266 SF |
| Property Type | Retail |
| Gross Leasable Area | 35,000 SF |
| Total Land Area | 3.04 AC |
| Year Built/Renovated | 1947/2011 |
| Parking Ratio | 4.29/1,000 SF |
ABOUT THE PROPERTY
HIGH BARRIER-TO-ENTRY MARKET
1 of 20
VIDEOS
MATTERPORT 3D EXTERIOR
MATTERPORT 3D TOUR
PHOTOS
STREET VIEW
STREET
MAP
