Your email has been sent.
Investment Highlights
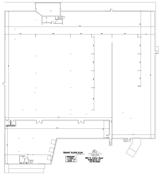
- ±41,873 SF end-cap retail or industrial space (former Big Lots)
- ~16’ clear height with open, flexible layout
- 900+ shared parking spaces within Wallingford Plaza
- (5) loading docks with levelers
- Located on Route 5 (±25,400 ADT) with excellent visibility
Executive Summary
Wallingford Plaza is located on Route 5 with strong visibility and approximately 25,400 vehicles per day. The property offers over 900 shared parking spaces and immediate access to Route 15 (Wilbur Cross Parkway). The plaza is anchored by Holiday Cinemas and features a mix of national and local tenants, drawing from Wallingford and surrounding communities including North Haven, Meriden, and Cheshire.
1 Unit Available
Unit 1
| Unit Size | 41,873 SF | Condo Use | Retail |
| Price | $5,745,600 CAD | Sale Type | Investment or Owner User |
| Price Per SF | $137.21 CAD | No. Parking Spaces | 900 |
| Unit Size | 41,873 SF |
| Price | $5,745,600 CAD |
| Price Per SF | $137.21 CAD |
| Condo Use | Retail |
| Sale Type | Investment or Owner User |
| No. Parking Spaces | 900 |
Description
±41,873 SF end-cap unit
(5) loading docks with levelers
~16’ clear height
Open, flexible layout
Over 900 shared parking spaces
Located on Route 5 (25,400 ADT)
Anchored by Holiday Cinemas
Strong mix of national and local tenants
Immediate access to Route 15 (Wilbur Cross Parkway)
Sale Notes
±41,873 SF end-cap unit available, formerly occupied by Big Lots. The space features an open, flexible layout with approximately 16’ clear height and five loading docks, making it suitable for retail, light industrial, fitness, entertainment, or other large-format uses.
Screenshot 2026-03-26 at 10.40.23?AM
Property Facts
Amenities
- Pylon Sign
- Signage
- Signalized Intersection
Nearby Major Retailers
Presented by
970 N Colony Rd
Hmm, there seems to have been an error sending your message. Please try again.
Thanks! Your message was sent.




