Your email has been sent.
Features
All Available Space(1)
Display Rental Rate as
- Space
- Size
- Term
- Rental Rate
- Space Use
- Build-Out
- Available
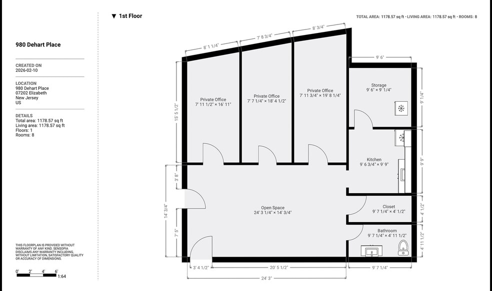
Renovated office space located within an industrial building. Previously utilized as a shipping/logistics office, the layout is functional and well-suited for distribution support, light industrial users, contractors, or general administrative operations. Direct entry from the sidewalk provides convenient access for staff and visitors. The space is very clean and recently updated, featuring: New flooring throughout Freshly painted interior Private bathroom Kitchen/break area Central air conditioning Dedicated storage space Move-in ready with a practical layout designed for efficient day-to-day operations.
- Listed lease rate plus proportional share of utilities
- 4 Workstations
- Central Air Conditioning
- Recessed Lighting
- Direct sidewalk entrance
- Utilities included (tenant pays gas)
- Fits 3 - 7 People
- Space is in Excellent Condition
- Closed Circuit Television Monitoring (CCTV)
- Smoke Detector
- Renovated move in ready office space
- Storage
| Space | Size | Term | Rental Rate | Space Use | Build-Out | Available |
| 1st Floor, Ste B | 1,179 SF | Negotiable | $2.22 CAD/SF/YR $0.18 CAD/SF/MO $2,617 CAD/YR $218.08 CAD/MO | Office | - | Now |
1st Floor, Ste B
| Size |
| 1,179 SF |
| Term |
| Negotiable |
| Rental Rate |
| $2.22 CAD/SF/YR $0.18 CAD/SF/MO $2,617 CAD/YR $218.08 CAD/MO |
| Space Use |
| Office |
| Build-Out |
| - |
| Available |
| Now |
1st Floor, Ste B
| Size | 1,179 SF |
| Term | Negotiable |
| Rental Rate | $2.22 CAD/SF/YR |
| Space Use | Office |
| Build-Out | - |
| Available | Now |
Renovated office space located within an industrial building. Previously utilized as a shipping/logistics office, the layout is functional and well-suited for distribution support, light industrial users, contractors, or general administrative operations. Direct entry from the sidewalk provides convenient access for staff and visitors. The space is very clean and recently updated, featuring: New flooring throughout Freshly painted interior Private bathroom Kitchen/break area Central air conditioning Dedicated storage space Move-in ready with a practical layout designed for efficient day-to-day operations.
- Listed lease rate plus proportional share of utilities
- Fits 3 - 7 People
- 4 Workstations
- Space is in Excellent Condition
- Central Air Conditioning
- Closed Circuit Television Monitoring (CCTV)
- Recessed Lighting
- Smoke Detector
- Direct sidewalk entrance
- Renovated move in ready office space
- Utilities included (tenant pays gas)
- Storage
Warehouse Facility Facts
Select Tenants
- Floor
- Tenant Name
- Industry
- 1st
- Lavish Salon
- Services
- Unknown
- Usa General Contractors
- Construction
Presented by
980 Dehart Pl
Hmm, there seems to have been an error sending your message. Please try again.
Thanks! Your message was sent.






