Log In/Sign Up
Your email has been sent.
Investment Highlights
- Modern Construction: Built in 2018 with a durable pre-engineered steel structure and a stylish Hardie Fiber Cement Reveal Panel exterior.
- Zoning: C-2 Commercial zoning allows for a range of retail/office uses.
- Prime Retail: Surrounded by established businesses like McDonald‘s, Starbucks, Food City, Mod Wash Car Wash, and a Publix anchored center.
Executive Summary
Prime Commercial Opportunity in Booming Ooltewah/East Brainerd Corridor! This former True Value Hardware store presents a rare opportunity to establish your business in the highly desirable and rapidly expanding Ooltewah/East Brainerd/Apison/Collegedale area. Built in 2018, this well-maintained property offers a versatile space perfect for a variety of retail or office uses.
Key Features:
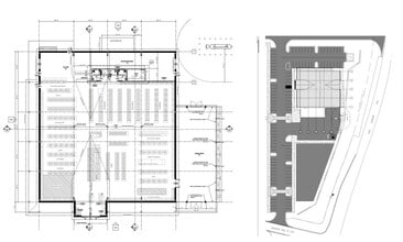
• Size & Space: ±12,400 SF of versatile space
• Modern Construction: Built in 2018 with a durable pre-engineered steel structure and a stylish Hardie Fiber Cement Reveal Panel exterior
• Strategic Location: Situated on ±1.65 acres, just a ½ mile from the new Publix Super Market at the Shops at Enclave, at the bustling intersection of Ooltewah-Ringgold Road and East Brainerd Road. Traffic counts between 10,500 to 12,800 VPD
• Prime Retail: Surrounded by established businesses like McDonald‘s, Starbucks, Food City, Mod Wash Car Wash, and a Publix anchored center, ensuring a steady flow of potential customers
• Zoning: C-2 Commercial zoning allows for a range of retail/office uses
• Infrastructure: Includes restrooms, a fire sprinkler system, and ample electrical capacity with a 208/120 Volt 600-Amp 3-Phase service
• Functional Design: Boasts ceiling heights ranging from 11‘ to 23‘, column spacing of 25‘ x 56‘, two ground level roll up doors for easy loading & unloading, and overall building dimensions of ± 103‘ x 114‘
• High-Growth Area: Located in a booming residential area with numerous new subdivisions under development, attracting a growing population and ensuring strong business potential
Key Features:
• Size & Space: ±12,400 SF of versatile space
• Modern Construction: Built in 2018 with a durable pre-engineered steel structure and a stylish Hardie Fiber Cement Reveal Panel exterior
• Strategic Location: Situated on ±1.65 acres, just a ½ mile from the new Publix Super Market at the Shops at Enclave, at the bustling intersection of Ooltewah-Ringgold Road and East Brainerd Road. Traffic counts between 10,500 to 12,800 VPD
• Prime Retail: Surrounded by established businesses like McDonald‘s, Starbucks, Food City, Mod Wash Car Wash, and a Publix anchored center, ensuring a steady flow of potential customers
• Zoning: C-2 Commercial zoning allows for a range of retail/office uses
• Infrastructure: Includes restrooms, a fire sprinkler system, and ample electrical capacity with a 208/120 Volt 600-Amp 3-Phase service
• Functional Design: Boasts ceiling heights ranging from 11‘ to 23‘, column spacing of 25‘ x 56‘, two ground level roll up doors for easy loading & unloading, and overall building dimensions of ± 103‘ x 114‘
• High-Growth Area: Located in a booming residential area with numerous new subdivisions under development, attracting a growing population and ensuring strong business potential
Property Facts
Sale Type
Investment or Owner User
Property Type
Building Size
12,400 SF
Building Class
B
Year Built
2018
Price
$4,238,376 CAD
Price Per SF
$341.80 CAD
Tenancy
Single
Building Height
1 Story
Building FAR
0.17
Lot Size
1.65 AC
Zoning
C2 - Commercial
Parking
30 Spaces (2.42 Spaces per 1,000 SF Leased)
Amenities
- Signage
Space Availability
- Space
- Size
- Space Use
- Position
- Available
Strategic Location: Situated on ±1.65 acres, just a ½ mile from the new Publix Super Market at the Shops at Enclave, at the bustling intersection of Ooltewah-Ringgold Road and East Brainerd Road. Traffic counts between 10,500 to 12,800 VPD.
| Space | Size | Space Use | Position | Available |
| 1st Floor | 12,400 SF | Retail | Outparcel | Now |
1st Floor
| Size |
| 12,400 SF |
| Space Use |
| Retail |
| Position |
| Outparcel |
| Available |
| Now |
1 of 1
Videos
Matterport 3D Exterior
Matterport 3D Tour
Photos
Street View
Street
Map
1st Floor
| Size | 12,400 SF |
| Space Use | Retail |
| Position | Outparcel |
| Available | Now |
Strategic Location: Situated on ±1.65 acres, just a ½ mile from the new Publix Super Market at the Shops at Enclave, at the bustling intersection of Ooltewah-Ringgold Road and East Brainerd Road. Traffic counts between 10,500 to 12,800 VPD.
Nearby Major Retailers
Property Taxes
| Parcel Number | 172-092.04 | Improvements Assessment | $0 CAD |
| Land Assessment | $0 CAD | Total Assessment | $981,746 CAD |
Property Taxes
Parcel Number
172-092.04
Land Assessment
$0 CAD
Improvements Assessment
$0 CAD
Total Assessment
$981,746 CAD
1 of 20
Videos
Matterport 3D Exterior
Matterport 3D Tour
Photos
Street View
Street
Map
Presented by
9814 E Brainerd Rd
Already a member? Log In
Hmm, there seems to have been an error sending your message. Please try again.
Thanks! Your message was sent.





