Your email has been sent.
Highlights
- Move in ready with Existing office furniture in place.
- Available April 1st, 2026, or sooner.
- Potential for truck and trailer parking.
Features
All Available Spaces(2)
Display Rental Rate as
- Space
- Size
- Term
- Rental Rate
- Space Use
- Build-Out
- Available
7,000 square feet of shared warehouse space available. Warehouse space is not heated and best suited for storage only. Owner can provide full service warehousing for the Tenant. Contact Broker for lease rate and terms.
- Space is in Excellent Condition
- 5 Loading Docks
- Owner can provide full service warehousing.
- Immediate occupancy.
- Can be combined with additional space(s) for up to 10,000 SF of adjacent space
- Secure Storage
- Up to five (5) trailer parking spots.
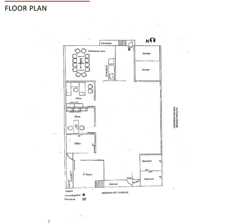
3,000 square feet of office space for lease. Available April 1st, 2026, or sooner. Lease Rate: $3,750.00 per month gross.
- Listed rate may not include certain utilities, building services and property expenses
- Mostly Open Floor Plan Layout
- Conference Rooms
- Can be combined with additional space(s) for up to 10,000 SF of adjacent space
- Private Restrooms
- Existing office furniture in place.
- Potential for truck and trailer parking.
- Fully Built-Out as Standard Office
- Fits 8 - 24 People
- Space is in Excellent Condition
- Reception Area
- Move in ready.
- Private offices and conference room.
| Space | Size | Term | Rental Rate | Space Use | Build-Out | Available |
| 1st Floor - Building 1 | 7,000 SF | Negotiable | Upon Request Upon Request Upon Request Upon Request | Industrial | Full Build-Out | Now |
| 2nd Floor, Ste Building 1 | 3,000 SF | Negotiable | Upon Request Upon Request Upon Request Upon Request | Office | Full Build-Out | Now |
1st Floor - Building 1
| Size |
| 7,000 SF |
| Term |
| Negotiable |
| Rental Rate |
| Upon Request Upon Request Upon Request Upon Request |
| Space Use |
| Industrial |
| Build-Out |
| Full Build-Out |
| Available |
| Now |
2nd Floor, Ste Building 1
| Size |
| 3,000 SF |
| Term |
| Negotiable |
| Rental Rate |
| Upon Request Upon Request Upon Request Upon Request |
| Space Use |
| Office |
| Build-Out |
| Full Build-Out |
| Available |
| Now |
1st Floor - Building 1
| Size | 7,000 SF |
| Term | Negotiable |
| Rental Rate | Upon Request |
| Space Use | Industrial |
| Build-Out | Full Build-Out |
| Available | Now |
7,000 square feet of shared warehouse space available. Warehouse space is not heated and best suited for storage only. Owner can provide full service warehousing for the Tenant. Contact Broker for lease rate and terms.
- Space is in Excellent Condition
- Can be combined with additional space(s) for up to 10,000 SF of adjacent space
- 5 Loading Docks
- Secure Storage
- Owner can provide full service warehousing.
- Up to five (5) trailer parking spots.
- Immediate occupancy.
2nd Floor, Ste Building 1
| Size | 3,000 SF |
| Term | Negotiable |
| Rental Rate | Upon Request |
| Space Use | Office |
| Build-Out | Full Build-Out |
| Available | Now |
3,000 square feet of office space for lease. Available April 1st, 2026, or sooner. Lease Rate: $3,750.00 per month gross.
- Listed rate may not include certain utilities, building services and property expenses
- Fully Built-Out as Standard Office
- Mostly Open Floor Plan Layout
- Fits 8 - 24 People
- Conference Rooms
- Space is in Excellent Condition
- Can be combined with additional space(s) for up to 10,000 SF of adjacent space
- Reception Area
- Private Restrooms
- Move in ready.
- Existing office furniture in place.
- Private offices and conference room.
- Potential for truck and trailer parking.
Property Overview
9900 Harrison Rd in Romulus, Michigan is a 41,628 SF Industrial building with high visibility at corner of Harrison and Hildebrant Rd. The building is move in ready with existing furniture in place. Potential for truck and trailer parking.
Truck Terminal Facility Facts
Select Tenants
- Floor
- Tenant Name
- Industry
- 1st
- Go To Transport-Romulus
- Transportation and Warehousing
- 1st
- Motorcity Systems Llc
- Public Administration
Presented by
Building 1 | 9900 Harrison
Hmm, there seems to have been an error sending your message. Please try again.
Thanks! Your message was sent.










