Your email has been sent.
9927 E Bell Rd - Bldg 13 - Phase II 1,581 SF Office Condo Unit Offered at $856,069 CAD in Scottsdale, AZ 85260



Investment Highlights
- Central Location
- Easily Accessible and Visible
1 Unit Available
Unit 130
| Unit Size | 1,581 SF | Condo Use | Office |
| Price | $856,069 CAD | Sale Type | Owner User |
| Price Per SF | $541.47 CAD |
| Unit Size | 1,581 SF |
| Price | $856,069 CAD |
| Price Per SF | $541.47 CAD |
| Condo Use | Office |
| Sale Type | Owner User |
Description
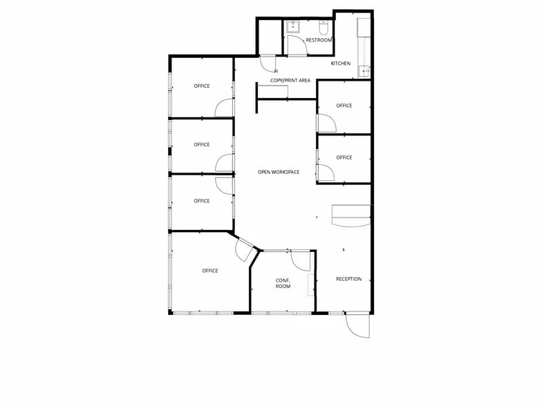
SVN is pleased to present to the market this move-in ready office condo for sale in north Scottsdale. At 1,581 SF, the space is ideally situated for a small general office business. The layout consists of a reception area, 7 private offices of which one can easily be utilized as a conference room, ample open space for additional workspace, a copy area, a private restroom, and kitchen area. The space offers two sides of northeastern facing window line bringing natural light into the entire space. The space is in great condition and has been maintained with great care by an owner who has occupied the property for many years with a strong pride of ownership. Additionally, there are 2 covered, reserved parking spaces exclusively designated to the subject unit.
Sale Notes
SVN is pleased to present to the market this move-in ready office condo for sale in north Scottsdale. At 1,581 SF, the space is ideally situated for a small general office business. The layout consists of a reception area, 7 private offices of which one can easily be utilized as a conference room, ample open space for additional workspace, a copy area, a private restroom, and kitchen area. The space offers two sides of northeastern facing window line bringing natural light into the entire space. The space is in great condition and has been maintained with great care by an owner who has occupied the property for many years with a strong pride of ownership. Additionally, there are 2 covered, reserved parking spaces exclusively designated to the subject unit.
9927 E Bell Rd-4
9927 E Bell Rd-5
9927 E Bell Rd-11
9927 E Bell Rd_Floor Plan Edited
9927 E Bell Rd-6
9927 E Bell Rd-7
9927 E Bell Rd-13
9927 E Bell Rd-8
9927 E Bell Rd-15
9927 E Bell Rd-16
9927 E Bell Rd-18
Property Facts
Presented by
9927 E Bell Rd - Bldg 13 - Phase II
Hmm, there seems to have been an error sending your message. Please try again.
Thanks! Your message was sent.

