Your email has been sent.
Concorde Professional Building 9944 S Roberts Rd 1,000 - 6,634 SF of Space Available in Palos Hills, IL 60465



HIGHLIGHTS
- Professional offices located in a quiet residential corridor of Palos Hills, elevator building with ample parking.
ALL AVAILABLE SPACES(4)
Display Rental Rate as
- SPACE
- SIZE
- TERM
- RENTAL RATE
- SPACE USE
- CONDITION
- AVAILABLE
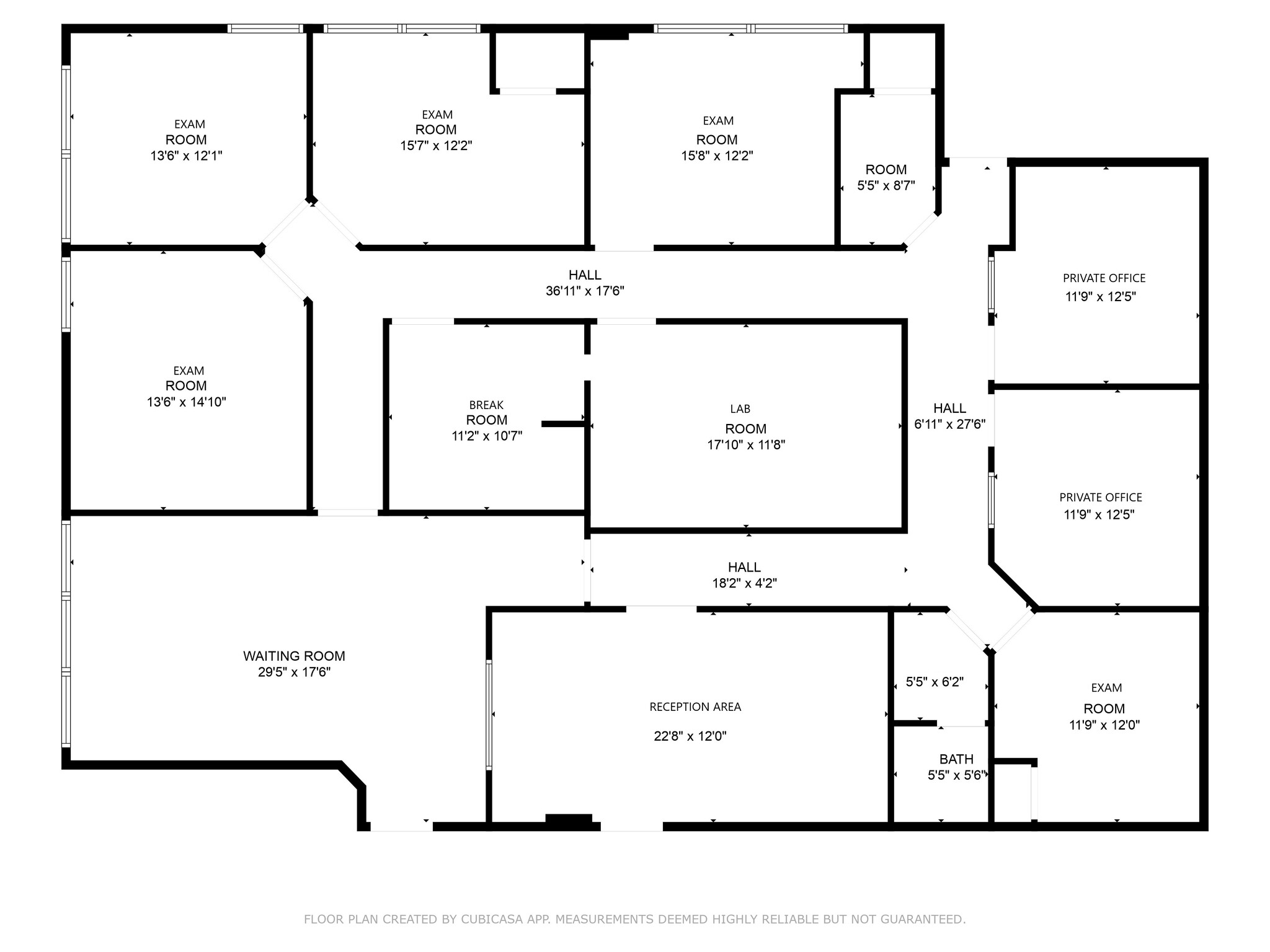
Turnkey Medical Office – Prime 1st Floor Suite with Natural Light & Ample Parking Welcome to this well-appointed first-floor medical office suite, designed with both patient comfort and operational efficiency in mind. This bright and spacious unit features a large reception area and waiting room, five fully built-out exam rooms, two private offices, a dedicated lab, break room, and a private restroom – ideal for any medical, wellness, or clinical practice. Located in a well-maintained, professionally managed building, the space offers plenty of natural light throughout and is easily accessible via a large surface parking lot, providing convenience for both staff and patients. Whether you’re expanding your practice or launching a new one, this move-in-ready medical suite offers the ideal blend of functionality, visibility, and ease.
- Listed lease rate plus proportional share of electrical cost
- 2 Private Offices
- Large reception area and welcoming waiting room
- 2 private opffices
- Break room for staff comfort and convenience
- Fully Built-Out as Standard Medical Space
- Spacious first-floor medical office suite
- 5 fully built-out exam rooms
- Dedicated lab space for testing and diagnostics
Suite 201 consists of reception/waiting room, 2 large private offices, and a large conference/training room.
- Listed lease rate plus proportional share of electrical cost
- 3 Private Offices
- Fully Built-Out as Standard Office
- 1 Conference Room
Suite 205 consists of reception/waiting room; 3 large private offices.
- Listed lease rate plus proportional share of electrical cost
- 3 Private Offices
- Listed lease rate plus proportional share of electrical cost
| Space | Size | Term | Rental Rate | Space Use | Condition | Available |
| 1st Floor, Ste 107 | 3,274 SF | 3-5 Years | $22.33 CAD/SF/YR $1.86 CAD/SF/MO $73,124 CAD/YR $6,094 CAD/MO | Office/Medical | Full Build-Out | Now |
| 2nd Floor, Ste 201 | 1,000 SF | Negotiable | $22.33 CAD/SF/YR $1.86 CAD/SF/MO $22,335 CAD/YR $1,861 CAD/MO | Office | Full Build-Out | Now |
| 2nd Floor, Ste 205 | 1,000 SF | Negotiable | $22.33 CAD/SF/YR $1.86 CAD/SF/MO $22,335 CAD/YR $1,861 CAD/MO | Office | - | Now |
| 2nd Floor, Ste 208 | 1,360 SF | Negotiable | $22.33 CAD/SF/YR $1.86 CAD/SF/MO $30,375 CAD/YR $2,531 CAD/MO | Office | - | Now |
1st Floor, Ste 107
| Size |
| 3,274 SF |
| Term |
| 3-5 Years |
| Rental Rate |
| $22.33 CAD/SF/YR $1.86 CAD/SF/MO $73,124 CAD/YR $6,094 CAD/MO |
| Space Use |
| Office/Medical |
| Condition |
| Full Build-Out |
| Available |
| Now |
2nd Floor, Ste 201
| Size |
| 1,000 SF |
| Term |
| Negotiable |
| Rental Rate |
| $22.33 CAD/SF/YR $1.86 CAD/SF/MO $22,335 CAD/YR $1,861 CAD/MO |
| Space Use |
| Office |
| Condition |
| Full Build-Out |
| Available |
| Now |
2nd Floor, Ste 205
| Size |
| 1,000 SF |
| Term |
| Negotiable |
| Rental Rate |
| $22.33 CAD/SF/YR $1.86 CAD/SF/MO $22,335 CAD/YR $1,861 CAD/MO |
| Space Use |
| Office |
| Condition |
| - |
| Available |
| Now |
2nd Floor, Ste 208
| Size |
| 1,360 SF |
| Term |
| Negotiable |
| Rental Rate |
| $22.33 CAD/SF/YR $1.86 CAD/SF/MO $30,375 CAD/YR $2,531 CAD/MO |
| Space Use |
| Office |
| Condition |
| - |
| Available |
| Now |
1st Floor, Ste 107
| Size | 3,274 SF |
| Term | 3-5 Years |
| Rental Rate | $22.33 CAD/SF/YR |
| Space Use | Office/Medical |
| Condition | Full Build-Out |
| Available | Now |
Turnkey Medical Office – Prime 1st Floor Suite with Natural Light & Ample Parking Welcome to this well-appointed first-floor medical office suite, designed with both patient comfort and operational efficiency in mind. This bright and spacious unit features a large reception area and waiting room, five fully built-out exam rooms, two private offices, a dedicated lab, break room, and a private restroom – ideal for any medical, wellness, or clinical practice. Located in a well-maintained, professionally managed building, the space offers plenty of natural light throughout and is easily accessible via a large surface parking lot, providing convenience for both staff and patients. Whether you’re expanding your practice or launching a new one, this move-in-ready medical suite offers the ideal blend of functionality, visibility, and ease.
- Listed lease rate plus proportional share of electrical cost
- Fully Built-Out as Standard Medical Space
- 2 Private Offices
- Spacious first-floor medical office suite
- Large reception area and welcoming waiting room
- 5 fully built-out exam rooms
- 2 private opffices
- Dedicated lab space for testing and diagnostics
- Break room for staff comfort and convenience
2nd Floor, Ste 201
| Size | 1,000 SF |
| Term | Negotiable |
| Rental Rate | $22.33 CAD/SF/YR |
| Space Use | Office |
| Condition | Full Build-Out |
| Available | Now |
Suite 201 consists of reception/waiting room, 2 large private offices, and a large conference/training room.
- Listed lease rate plus proportional share of electrical cost
- Fully Built-Out as Standard Office
- 3 Private Offices
- 1 Conference Room
2nd Floor, Ste 205
| Size | 1,000 SF |
| Term | Negotiable |
| Rental Rate | $22.33 CAD/SF/YR |
| Space Use | Office |
| Condition | - |
| Available | Now |
Suite 205 consists of reception/waiting room; 3 large private offices.
- Listed lease rate plus proportional share of electrical cost
- 3 Private Offices
2nd Floor, Ste 208
| Size | 1,360 SF |
| Term | Negotiable |
| Rental Rate | $22.33 CAD/SF/YR |
| Space Use | Office |
| Condition | - |
| Available | Now |
- Listed lease rate plus proportional share of electrical cost
PROPERTY OVERVIEW
Located in a prime area of Palos Hills, this building combines functionality, accessibility, and value. Don't miss your opportunity to establish or grow your business here. Discover the perfect space for your business at our 2-story professional office building in Palos Hills. Featuring: Small Office Spaces: Ideal for startups, independent professionals, and small businesses. Affordable Pricing: Competitive rates designed to suit your budget. Convenient Elevator Access: Hassle-free movement between floors for you and your clients. Well-Managed Property: Enjoy peace of mind with attentive, management focused on maintaining a professional environment.
- Bus Line
- Security System
- Signage
PROPERTY FACTS
Presented by
Concorde Professional Building | 9944 S Roberts Rd
Hmm, there seems to have been an error sending your message. Please try again.
Thanks! Your message was sent.









