Log In/Sign Up
Your email has been sent.
9971 Airport Blvd
Mobile, AL 36608
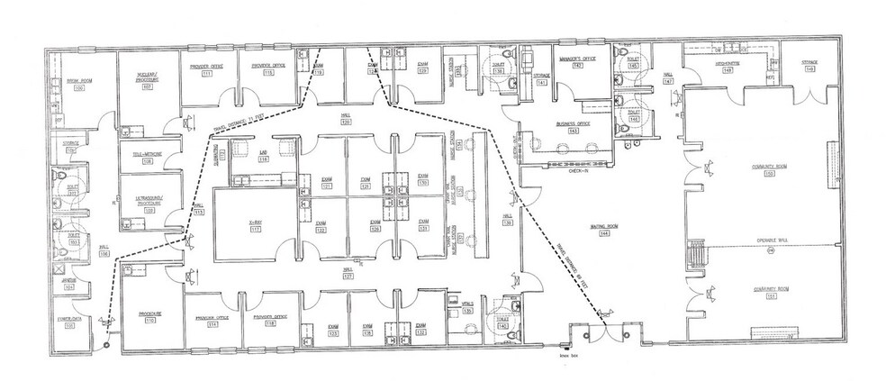
Medical Property For Lease
·
7,438 SF


Highlights
- 7,438 SF Available for Lease
- Asking Rate: $25.00/NNN
- Located on Airport Boulevard, a major Mobile medical and commercial artery connecting directly to I-65 and Schillinger Road with 19,310 VPD
- Available May 1, 2026
- Freestanding Building
- Minutes from Mobile Regional Airport (approx. 2 miles; 4 minute drive)
Property Facts
Building Type
Office
Year Built
2015
Building Height
1 Story
Building Size
7,438 SF
Typical Floor Size
7,438 SF
1 of 3
Videos
Matterport 3D Exterior
Matterport 3D Tour
Photos
Street View
Street
Map
