Log In/Sign Up
Your email has been sent.
La Salut - Lloreda 0.02 Acres of Residential Land Offered at $404,616 CAD in Badalona, Barcelona 08914



Some information has been automatically translated.
INVESTMENT HIGHLIGHTS
- Suelo urbano con uso residencial.
- Múltiples posibilidades.
- Situado entre medianeras en zona consolidada.
- Alto tránsito diario.
EXECUTIVE SUMMARY
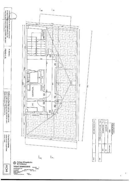
Suelo urbano con uso residencial y ubicación céntrica en zona consolidada.
Se encuentra entre medianeras y listo para construir.
Permite la construcción de 4 pisos más local, con dimensión de 70 m2 cada piso.
Se entrega proyecto básico, proyecto ejecutivo, estudio geotécnico y proyecto energía solar. Todo ello se realizó en el año 2007, por lo que deberá revisarse y actualizar la normativa actual.
Se encuentra entre medianeras y listo para construir.
Permite la construcción de 4 pisos más local, con dimensión de 70 m2 cada piso.
Se entrega proyecto básico, proyecto ejecutivo, estudio geotécnico y proyecto energía solar. Todo ello se realizó en el año 2007, por lo que deberá revisarse y actualizar la normativa actual.
PROPERTY FACTS
| Price | $404,616 CAD | Property Type | Land |
| Sale Type | Investment or Owner User | Property Subtype | Residential |
| No. Lots | 1 | Total Lot Size | 0.02 AC |
| Price | $404,616 CAD |
| Sale Type | Investment or Owner User |
| No. Lots | 1 |
| Property Type | Land |
| Property Subtype | Residential |
| Total Lot Size | 0.02 AC |
1 LOT AVAILABLE
Lot
| Price | $404,616 CAD | Lot Size | 0.02 AC |
| Price Per AC | $19,261,947.29 CAD |
| Price | $404,616 CAD |
| Price Per AC | $19,261,947.29 CAD |
| Lot Size | 0.02 AC |
Suelo urbano de 85 m2 con posibilidad de construir 5 plantas sobre rasante.
DESCRIPTION
Urban land located between party walls, with the potential to build 5 above-ground floors.
1 1
1 of 4
VIDEOS
MATTERPORT 3D EXTERIOR
MATTERPORT 3D TOUR
PHOTOS
STREET VIEW
STREET
MAP
1 of 1
Presented by
La Salut - Lloreda
Already a member? Log In
Hmm, there seems to have been an error sending your message. Please try again.
Thanks! Your message was sent.
