Log In/Sign Up
Your email has been sent.
La Salut - Lloreda 0.02 Acres of Residential Land Offered at $351,292 CAD in Badalona, Barcelona 08914



Some information has been automatically translated.
Investment Highlights
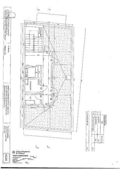
- Suelo urbano residencial entre medianeras.
- Ubicación céntrica.
- Posibilidad de construir 4 viviendas y local o 5 viviendas.
- Buenas comunicaciones.
Executive Summary
Terreno situado delante del mercado de la Salut de Badalona, entre medianeras, listo para empezar a construir.
Pueden construirse 4 viviendas más local. Podría construirse una quinta vivienda en planta baja adaptándola a la normativa.
Los pisos son aproximadamente de 70 m2 cada uno.
Se entrega proyecto básico, proyecto ejecutivo, estudio geotécnico y proyecto de energía solar realizado en 2007, por lo que deberá revisarse con la normativa actual.
Pueden construirse 4 viviendas más local. Podría construirse una quinta vivienda en planta baja adaptándola a la normativa.
Los pisos son aproximadamente de 70 m2 cada uno.
Se entrega proyecto básico, proyecto ejecutivo, estudio geotécnico y proyecto de energía solar realizado en 2007, por lo que deberá revisarse con la normativa actual.
Property Facts
| Price | $351,292 CAD | Property Type | Land |
| Sale Type | Investment | Property Subtype | Residential |
| No. Lots | 1 | Total Lot Size | 0.02 AC |
| Price | $351,292 CAD |
| Sale Type | Investment |
| No. Lots | 1 |
| Property Type | Land |
| Property Subtype | Residential |
| Total Lot Size | 0.02 AC |
1 Lot Available
Lot
| Price | $351,292 CAD | Lot Size | 0.02 AC |
| Price Per AC | $16,723,416.14 CAD |
| Price | $351,292 CAD |
| Price Per AC | $16,723,416.14 CAD |
| Lot Size | 0.02 AC |
Suelo urbano rectangular situado entre medianeras.
Description
Urban land with residential use, located in a central and established area with all types of services.
1 1
1 of 5
Videos
Matterport 3D Exterior
Matterport 3D Tour
Photos
Street View
Street
Map
1 of 1
Presented by
La Salut - Lloreda
Already a member? Log In
Hmm, there seems to have been an error sending your message. Please try again.
Thanks! Your message was sent.
