Log In/Sign Up
Your email has been sent.
Zona de El Raval Apartment Building $5,097,478 CAD Ciutat Vella, Barcelona 08001



Some information has been automatically translated.
Investment Highlights
- Magnífico edificio residencial totalmente rehabilitado integralmente.
- Acabados de alta gama, eficiencia energética y domótica.
- Fachadas restauradas con criterios patrimoniales aprobados.
- Once unidades residenciales con terrazas y patio privado.
- Rentabilidad estimada del 5,75% en zona de alta demanda.
- Ideal para coliving, alquiler temporal o residencial tradicional.
Executive Summary
Ref.: BCN-INV-011239
Disponible en venta magnífico edificio residencial rehabilitado integralmente ubicado en El Raval.
Una oportunidad única para inversores que buscan activos con alta rentabilidad y acabados de calidad.
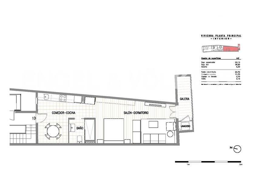
Cuenta con una superficie construida de 624 m2 y está distribuido en seis plantas sobre rasante con un total de 11 unidades residenciales de los cuales ocho pisos cuenta con 51 m2, dos áticos de 42 m2 con terrazas privativas y un amplio loft de 101 m2 en planta baja con patio posterior.
La rehabilitación integral ha respetado la estructura original del edificio, incluyendo muros de ladrillo macizo, vigas de madera y bóvedas cerámicas, combinando tradición arquitectónica con acabados contemporáneos.
El interior de las viviendas ofrecen pavimentos de parquet de roble natural, cocinas equipadas con electrodomésticos de alta gama, climatización por aerotermia, placas solares para agua caliente y preinstalación para domótica.
El edificio ofrece un vestíbulo accesible, ascensor de última generación, iluminación decorativa y terrazas rehabilitadas.
Ideal para utilizarlo como coliving, alquileres de temporada o residencial tradicional.
Hay una previsión de rentabilidad mínima del 5,75%.
Disponible en venta magnífico edificio residencial rehabilitado integralmente ubicado en El Raval.
Una oportunidad única para inversores que buscan activos con alta rentabilidad y acabados de calidad.
Cuenta con una superficie construida de 624 m2 y está distribuido en seis plantas sobre rasante con un total de 11 unidades residenciales de los cuales ocho pisos cuenta con 51 m2, dos áticos de 42 m2 con terrazas privativas y un amplio loft de 101 m2 en planta baja con patio posterior.
La rehabilitación integral ha respetado la estructura original del edificio, incluyendo muros de ladrillo macizo, vigas de madera y bóvedas cerámicas, combinando tradición arquitectónica con acabados contemporáneos.
El interior de las viviendas ofrecen pavimentos de parquet de roble natural, cocinas equipadas con electrodomésticos de alta gama, climatización por aerotermia, placas solares para agua caliente y preinstalación para domótica.
El edificio ofrece un vestíbulo accesible, ascensor de última generación, iluminación decorativa y terrazas rehabilitadas.
Ideal para utilizarlo como coliving, alquileres de temporada o residencial tradicional.
Hay una previsión de rentabilidad mínima del 5,75%.
Property Facts
| Price | $5,097,478 CAD | Apartment Style | Mid-Rise |
| Sale Type | Investment | Building Class | C |
| Property Type | Multifamily | Building Size | < 15,000 SF |
| Property Subtype | Apartment | Year Built/Renovated | 1870 - 1879/2020 - 2029 |
| Price | $5,097,478 CAD |
| Sale Type | Investment |
| Property Type | Multifamily |
| Property Subtype | Apartment |
| Apartment Style | Mid-Rise |
| Building Class | C |
| Building Size | < 15,000 SF |
| Year Built/Renovated | 1870 - 1879/2020 - 2029 |
1 1
1 of 6
Videos
Matterport 3D Exterior
Matterport 3D Tour
Photos
Street View
Street
Map
1 of 1
Presented by
Zona de El Raval
Already a member? Log In
Hmm, there seems to have been an error sending your message. Please try again.
Thanks! Your message was sent.
