Log In/Sign Up
Your email has been sent.
Bear Creek Rd - Vineyards at Bear Creek 18.06 Acres of Residential Land Offered at $4,426,816 CAD in Cedar Hill, TX 75104


PROPERTY FACTS
| Price | $4,426,816 CAD | Property Subtype | Residential |
| Sale Type | Investment or Owner User | Proposed Use | |
| No. Lots | 1 | Total Lot Size | 18.06 AC |
| Property Type | Land | ||
| Zoning | Z236 | ||
| Price | $4,426,816 CAD |
| Sale Type | Investment or Owner User |
| No. Lots | 1 |
| Property Type | Land |
| Property Subtype | Residential |
| Proposed Use | |
| Total Lot Size | 18.06 AC |
| Zoning | Z236 |
1 LOT AVAILABLE
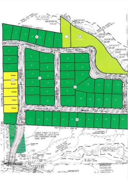
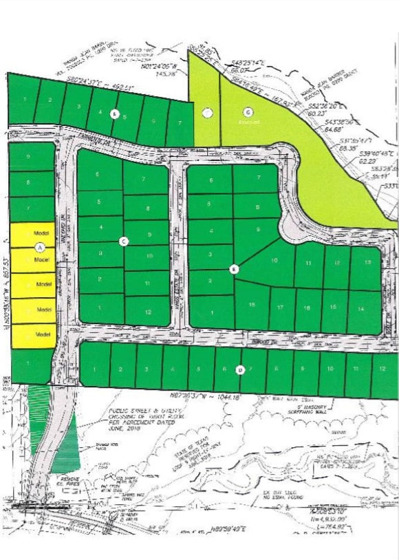
Lot 1-60
| Price | $4,426,816 CAD | Lot Size | 18.06 AC |
| Price Per AC | $245,117.17 CAD |
| Price | $4,426,816 CAD |
| Price Per AC | $245,117.17 CAD |
| Lot Size | 18.06 AC |
Approved and Recorded plans with full engineering plans for 60 SFR lots. Water, sewer, electric, and natural gas available.
1 1
PROPERTY TAXES
| Parcel Number | 168550000A0070000 | Improvements Assessment | $0 CAD |
| Land Assessment | $13,790 CAD | Total Assessment | $13,790 CAD |
PROPERTY TAXES
Parcel Number
168550000A0070000
Land Assessment
$13,790 CAD
Improvements Assessment
$0 CAD
Total Assessment
$13,790 CAD
1 of 3
VIDEOS
MATTERPORT 3D EXTERIOR
MATTERPORT 3D TOUR
PHOTOS
STREET VIEW
STREET
MAP
1 of 1
Presented by
Surani Asset Management
Bear Creek Rd - Vineyards at Bear Creek
Already a member? Log In
Hmm, there seems to have been an error sending your message. Please try again.
Thanks! Your message was sent.
