Your email has been sent.
Park Highlights
- World Houston features flex and industrial warehouse spaces with turnkey and customizable options offering a variety of sizes and features.
- Tap into a key labor pool as approximately 45% of workers within a 5-mile radius/15-minute drive are employed in the industrial sector.
- Owned, developed, and managed by EastGroup Properties (NYSE:EGP), with on-site property management.
- Modern infrastructure with master-planned detention and storm drains provides peace of mind as the park has never flooded.
- Adjacent to IAH with direct access to Beltway 8, placing transporters 2 miles to Interstate 69, 5 miles to Hardy Toll Rd and 7 miles to Interstate 45.
Park Facts
Features and Amenities
- 24 Hour Access
- Dedicated Turn Lane
- Mezzanine
- Security System
- Signage
- Air Conditioning
All Available Spaces(13)
Display Rental Rate as
- Space
- Size
- Term
- Rental Rate
- Space Use
- Build-Out
- Available
• 41,400 SF Total • 8,000 SF Office • 33,400 SF Warehouse • 0.50 Acre Fenced Outside Storage Area Available (In Addition to Truck Apron) • 24' Clear Height • Fully Sprinklered • Rear Load (8 docks / 1 ramp 12'x14') • Ample Parking • Power: 3 Phase, 480 Volt, 600 Amps • Easy access to Bush IAH, Beltway 8, I-45, Hwy 59 and the Hardy Toll Road
- Lease rate does not include utilities, property expenses or building services
- 1 Drive Bay
- 8 Loading Docks
- Partitioned Offices
- Secure Storage
- Plug & Play
- Yard
- Equipped with 3-Phase, 480-Volt, 600 Amp Power
- Near Bush IAH Airport
- Includes 8,000 SF of dedicated office space
- Space is in Excellent Condition
- Central Air Conditioning
- Reception Area
- Drop Ceilings
- Natural Light
- 0.50-Acre Fenced Outside Storage Area
- 33,400 SF of Warehouse Space
| Space | Size | Term | Rental Rate | Space Use | Build-Out | Available |
| 1st Floor | 41,400 SF | Negotiable | Upon Request Upon Request Upon Request Upon Request | Industrial | Full Build-Out | Now |
4225 World Houston Pky - 1st Floor
- Space
- Size
- Term
- Rental Rate
- Space Use
- Build-Out
- Available
• 45,040 Total SF • 3,977 SF Office • 41,063 SF Warehouse • Freestanding Building • ESFR Sprinklers • 24' Clear Height • 3 Phase / 480 Volt / 200 Amps • Available on 9/1/26
- Includes 3,977 SF of dedicated office space
- 10 Loading Docks
- 24' Clear Height
- 1 Drive Bay
- Freestanding Building
- Easy Access to Bush IAH, Beltway 8, I-45, Hwy 59
| Space | Size | Term | Rental Rate | Space Use | Build-Out | Available |
| 1st Floor | 45,040 SF | Negotiable | Upon Request Upon Request Upon Request Upon Request | Industrial | - | 2026-09-01 |
4721 World Houston Pky - 1st Floor
- Space
- Size
- Term
- Rental Rate
- Space Use
- Build-Out
- Available
• 3,075 SF Total • 2,315 SF Office • 760 SF HVAC Warehouse • Rear Load (1 Grade Level Door) • End Cap Space • 5:1,000 Parking Ratio • 16' Clear Height • Class A Tilt-Wall Building in Master-Planned Industrial Park
- Lease rate does not include utilities, property expenses or building services
- Space is in Excellent Condition
- Central Air Conditioning
- Reception Area
- Drop Ceilings
- Fully Carpeted
- Conference Rooms
- Near Bush IAH Airport
- 100% Climate Controlled
- Includes 2,315 SF of dedicated office space
- 1 Drive Bay
- Partitioned Offices
- Private Restrooms
- Plug & Play
- After Hours HVAC Available
- Corner Space
- Abundant Parking
| Space | Size | Term | Rental Rate | Space Use | Build-Out | Available |
| 1st Floor - 100 | 3,075 SF | Negotiable | Upon Request Upon Request Upon Request Upon Request | Flex | Full Build-Out | Now |
3955 World Houston Pky - 1st Floor - 100
- Space
- Size
- Term
- Rental Rate
- Space Use
- Build-Out
- Available
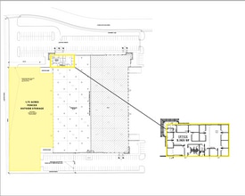
•Suite 100 - AVAILABLE NOW 47,037 Total SF with 1.5 Acres Suite 100 - 2,369 SF Office Suite 100 - 44,668 SF Warehouse Suite 100 - 30' Clear Height Suite 100 - 1: 20' x 20' Drive-In Suite 100 - Side Load (13 docks, 1 oversized ramp) Suite 100 - Parking: 50 Spaces Suite 100/190 - 94,074 SF Total • Suite 190 - AVAILABLE 10/1/2026 47,037 Total SF Suite 190 - 3,981 SF Office Suite 190 - 43,056 SF Warehouse Suite 190 - 1.5 Acres Private Fenced Truck Apron for outside storage/trailer parking Suite 190 - Freestanding Cross Dock Building Suite 190 - Cross Dock (26 docks/ 1 oversized 20x20 drive-ins) Suite 190 - 30' Clear Height Suite 190 - ESFR Sprinklers Suite 190 - Heavy Power available • Suite 100/190 - 6,350 SF Office (Suite 100 - 2,369 SF/ Suite 190 - 3,981 SF) Suite 100/190 - 87,724 SF Warehouse Suite 100/190 - 1.5 Acre Private Fenced Truck Apron for Outside Storage/ Trailer Parking Suite 100/190 - Freestanding Cross Dock Building Suite 100/190 - Cross Dock (26 Docks / 1 oversized 20x20 drive-ins) Suite 100/190 - 30' Clear Height Suite 100/190 - ESFR Sprinklers Suite 100/190 - Heavy Power Available
- Includes 6,350 SF of dedicated office space
- Space is in Excellent Condition
- AVAILABLE NOW - Suite 100 - 47,037 SF w/ 1.5 Acres
- 1.5 Acres Private Fenced Truck Apron
- Prime Location North Houston near IAH
- 2 Drive Ins
- 26 Loading Docks
- AVAILABLE 10/1/26 - Suite 190 - 47,037 SF
- Cross Dock (26 docks, 2 oversized ramp)
| Space | Size | Term | Rental Rate | Space Use | Build-Out | Available |
| 1st Floor - 100/190 | 47,037-94,074 SF | Negotiable | Upon Request Upon Request Upon Request Upon Request | Industrial | - | Now |
15892 Diplomatic Plaza Dr - 1st Floor - 100/190
- Space
- Size
- Term
- Rental Rate
- Space Use
- Build-Out
- Available
• 3,733 SF total • 1,786 SF office / 1,947 SF HVAC warehouse • Rear Load (1 grade level 9x10 door) • 4:1,000 parking ratio • 16’ clear height • Class A tilt-wall building in master-planned industrial park • Located in North Houston adjacent to Bush IAH
- Lease rate does not include utilities, property expenses or building services
- Space is in Excellent Condition
- Central Air Conditioning
- Reception Area
- Drop Ceilings
- 100% Air-Conditioned
- Near Bush IAH Airport
- Includes 1,786 SF of dedicated office space
- 1 Drive Bay
- Partitioned Offices
- Private Restrooms
- After Hours HVAC Available
- Master-Planned Business Park Environment
• 7,466 SF Total • 5,187 SF Office • 2,279 SF HVAC Warehouse • Rear-load (2: 9-foot by 10-foot grade-level doors) • 4:1,000 Parking Ratio • 16-foot Clear Height
- Lease rate does not include utilities, property expenses or building services
- Space is in Excellent Condition
- Central Air Conditioning
- Reception Area
- Drop Ceilings
- Conference Rooms
- Near Bush IAH Airport
- Includes 5,187 SF of dedicated office space
- 2 Drive Ins
- Partitioned Offices
- Private Restrooms
- After Hours HVAC Available
- HVAC Warehouse
- Master-Planned Business Park Environment
• 3,733 SF Total • 3,401 SF Office • 332 SF Warehouse • Features a test kitchen, making it ideal for lab conversion • Rear-load (1 grade-level loading door) • Beltway visibility, and includes double-row parking with a 3.2/1,000 parking ratio. • 16' Clear Height • ESFR Sprinkler System
- Includes 3,401 SF of dedicated office space
- 1 Drive Bay
- Test Kitchen in Place, Great for Lab Conversion
- Near Bush IAH Airport
- Space is in Excellent Condition
- Central Air Conditioning
- Master-Planned Business Park Environment
| Space | Size | Term | Rental Rate | Space Use | Build-Out | Available |
| 1st Floor - 140 | 3,733 SF | Negotiable | Upon Request Upon Request Upon Request Upon Request | Flex | Full Build-Out | Now |
| 1st Floor - 140/150 | 7,466 SF | Negotiable | Upon Request Upon Request Upon Request Upon Request | Flex | Full Build-Out | Now |
| 1st Floor - 150 | 3,733 SF | Negotiable | Upon Request Upon Request Upon Request Upon Request | Flex | Full Build-Out | Now |
4540 Kendrick Plaza Dr - 1st Floor - 140
4540 Kendrick Plaza Dr - 1st Floor - 140/150
4540 Kendrick Plaza Dr - 1st Floor - 150
- Space
- Size
- Term
- Rental Rate
- Space Use
- Build-Out
- Available
• 7,875 SF total • 1,647 SF office • 6,228 SF warehouse • Beltway Frontage • Rear Load (2 docks / 1 ramp) • 24’ clear height • Fully Sprinklered
- Includes 1,647 SF of dedicated office space
- 2 Loading Docks
- Partitioned Offices
- Private Restrooms
- Natural Light
- Beltway Frontage
- 1 Drive Bay
- Central Air Conditioning
- Reception Area
- Drop Ceilings
- Near Bush IAH Airport
- Master-Planned Business Park Environment
| Space | Size | Term | Rental Rate | Space Use | Build-Out | Available |
| 1st Floor - 150 | 7,875 SF | Negotiable | Upon Request Upon Request Upon Request Upon Request | Industrial | - | Now |
4250 N Sam Houston Pky E - 1st Floor - 150
- Space
- Size
- Term
- Rental Rate
- Space Use
- Build-Out
- Available
• 22,314 SF Total • 2,090 SF Office • 20,224 SF Warehouse • Private Fenced Truck Apron -0.30 Acre • Side Load (5 Docks, 1: 12x14 ramp) • 24' Clear Height • Class IV ELO Sprinklers • Natural Gas Available • Location: North Houston adjacent to IAH
- Includes 2,090 SF of dedicated office space
- 5 Loading Docks
- 1 Drive Bay
- Private Fenced Truck Apron
| Space | Size | Term | Rental Rate | Space Use | Build-Out | Available |
| 1st Floor - 150 | 22,314 SF | Negotiable | Upon Request Upon Request Upon Request Upon Request | Industrial | - | 2026-12-01 |
4660 World Houston Pky - 1st Floor - 150
- Space
- Size
- Term
- Rental Rate
- Space Use
- Build-Out
- Available
• 24,700 SF Total • 3,305 SF Office / 21,395 SF Warehouse • Fenced Truck Apron • Side Load (7 docks/ 1 12x14 ramp) • 24' Clear Height • Class IV ELO Sprinklers • North Houston adjacent to IAH • Master Planned Business Park Environment
- Includes 3,305 SF of dedicated office space
- 7 Loading Docks
- Class IV ELO Sprinklers
- 1 Drive Bay
- Fenced Truck Apron
| Space | Size | Term | Rental Rate | Space Use | Build-Out | Available |
| 1st Floor - 150 | 24,700 SF | Negotiable | Upon Request Upon Request Upon Request Upon Request | Industrial | - | 2026-10-01 |
15550 Vickery Dr - 1st Floor - 150
- Space
- Size
- Term
- Rental Rate
- Space Use
- Build-Out
- Available
• 67,208 SF • 62,043 SF Warehouse • 5,165 SF Office • 1.75 Acre Private Fenced Truck Apron • Side Load: 18 docks / 2 drive-ins (12x14) • 32' Clear Height • ESFR Sprinklers • 120 Parking Spaces • Location: North Houston adjacent to IAH • Master-Planned Business Park Environment
- Includes 5,165 SF of dedicated office space
- 18 Loading Docks
- 120 Parking Spaces
- 2 Drive Ins
- 1.75 Acre Private Fenced Truck Apron
- 5,165 SF Office Space
| Space | Size | Term | Rental Rate | Space Use | Build-Out | Available |
| 1st Floor - 150 | 67,208 SF | Negotiable | Upon Request Upon Request Upon Request Upon Request | Industrial | - | 2026-10-01 |
4120 Consulate Plaza Dr - 1st Floor - 150
- Space
- Size
- Term
- Rental Rate
- Space Use
- Build-Out
- Available
• 14,625 SF Total • 100% Office • Dock & Drive-In Available • 24' Clear Height • Fully Sprinklered • Ample Parking • Easy Access to Bush IAH, Beltway 8, I-45, Hwy 59 and the Hardy Toll Road
- Includes 14,625 SF of dedicated office space
- 14,625 Total SF
- Easy Access to Bush IAH, Beltway 8, I-45, Hwy 59
- Space is in Excellent Condition
- Dock & Drive-In Access Available
| Space | Size | Term | Rental Rate | Space Use | Build-Out | Available |
| 1st Floor - 190 | 14,625 SF | Negotiable | Upon Request Upon Request Upon Request Upon Request | Industrial | - | Now |
4150 N Sam Houston Pky - 1st Floor - 190
- Space
- Size
- Term
- Rental Rate
- Space Use
- Build-Out
- Available
PROPOSED BUILDING • 191,372 SF Total (Divisible) • Cross Dock (56 docks, 4 oversized ramps) • 1.34 + 1.93 ACRE Private Truck Aprons for Outside Storage/Trailer Parking • Located in North Houston adjacent to IAH • Master Planned Business Park Environment • 260 Parking Spaces • 32' Clear Height • ESFR Sprinklers • Timeline: 8-10 Months from Lease Execution. Landlord has already submitted for permit and ordered Transformer.
- Private Restrooms
- 191,372 SF Total
- Cross Dock (56 Docks, 4 Oversized Ramps)
- Natural Light
- 1.34+1.93 ACRE Private Truck Apron Outside Storage
- ESFR Sprinkler System
| Space | Size | Term | Rental Rate | Space Use | Build-Out | Available |
| 1st Floor - Bldg 48 | 191,372 SF | Negotiable | Upon Request Upon Request Upon Request Upon Request | Industrial | - | TBD |
4745 Consulate Plaza dr - 1st Floor - Bldg 48
4225 World Houston Pky - 1st Floor
| Size | 41,400 SF |
| Term | Negotiable |
| Rental Rate | Upon Request |
| Space Use | Industrial |
| Build-Out | Full Build-Out |
| Available | Now |
• 41,400 SF Total • 8,000 SF Office • 33,400 SF Warehouse • 0.50 Acre Fenced Outside Storage Area Available (In Addition to Truck Apron) • 24' Clear Height • Fully Sprinklered • Rear Load (8 docks / 1 ramp 12'x14') • Ample Parking • Power: 3 Phase, 480 Volt, 600 Amps • Easy access to Bush IAH, Beltway 8, I-45, Hwy 59 and the Hardy Toll Road
- Lease rate does not include utilities, property expenses or building services
- Includes 8,000 SF of dedicated office space
- 1 Drive Bay
- Space is in Excellent Condition
- 8 Loading Docks
- Central Air Conditioning
- Partitioned Offices
- Reception Area
- Secure Storage
- Drop Ceilings
- Plug & Play
- Natural Light
- Yard
- 0.50-Acre Fenced Outside Storage Area
- Equipped with 3-Phase, 480-Volt, 600 Amp Power
- 33,400 SF of Warehouse Space
- Near Bush IAH Airport
4721 World Houston Pky - 1st Floor
| Size | 45,040 SF |
| Term | Negotiable |
| Rental Rate | Upon Request |
| Space Use | Industrial |
| Build-Out | - |
| Available | 2026-09-01 |
• 45,040 Total SF • 3,977 SF Office • 41,063 SF Warehouse • Freestanding Building • ESFR Sprinklers • 24' Clear Height • 3 Phase / 480 Volt / 200 Amps • Available on 9/1/26
- Includes 3,977 SF of dedicated office space
- 1 Drive Bay
- 10 Loading Docks
- Freestanding Building
- 24' Clear Height
- Easy Access to Bush IAH, Beltway 8, I-45, Hwy 59
3955 World Houston Pky - 1st Floor - 100
| Size | 3,075 SF |
| Term | Negotiable |
| Rental Rate | Upon Request |
| Space Use | Flex |
| Build-Out | Full Build-Out |
| Available | Now |
• 3,075 SF Total • 2,315 SF Office • 760 SF HVAC Warehouse • Rear Load (1 Grade Level Door) • End Cap Space • 5:1,000 Parking Ratio • 16' Clear Height • Class A Tilt-Wall Building in Master-Planned Industrial Park
- Lease rate does not include utilities, property expenses or building services
- Includes 2,315 SF of dedicated office space
- Space is in Excellent Condition
- 1 Drive Bay
- Central Air Conditioning
- Partitioned Offices
- Reception Area
- Private Restrooms
- Drop Ceilings
- Plug & Play
- Fully Carpeted
- After Hours HVAC Available
- Conference Rooms
- Corner Space
- Near Bush IAH Airport
- Abundant Parking
- 100% Climate Controlled
15892 Diplomatic Plaza Dr - 1st Floor - 100/190
| Size | 47,037-94,074 SF |
| Term | Negotiable |
| Rental Rate | Upon Request |
| Space Use | Industrial |
| Build-Out | - |
| Available | Now |
•Suite 100 - AVAILABLE NOW 47,037 Total SF with 1.5 Acres Suite 100 - 2,369 SF Office Suite 100 - 44,668 SF Warehouse Suite 100 - 30' Clear Height Suite 100 - 1: 20' x 20' Drive-In Suite 100 - Side Load (13 docks, 1 oversized ramp) Suite 100 - Parking: 50 Spaces Suite 100/190 - 94,074 SF Total • Suite 190 - AVAILABLE 10/1/2026 47,037 Total SF Suite 190 - 3,981 SF Office Suite 190 - 43,056 SF Warehouse Suite 190 - 1.5 Acres Private Fenced Truck Apron for outside storage/trailer parking Suite 190 - Freestanding Cross Dock Building Suite 190 - Cross Dock (26 docks/ 1 oversized 20x20 drive-ins) Suite 190 - 30' Clear Height Suite 190 - ESFR Sprinklers Suite 190 - Heavy Power available • Suite 100/190 - 6,350 SF Office (Suite 100 - 2,369 SF/ Suite 190 - 3,981 SF) Suite 100/190 - 87,724 SF Warehouse Suite 100/190 - 1.5 Acre Private Fenced Truck Apron for Outside Storage/ Trailer Parking Suite 100/190 - Freestanding Cross Dock Building Suite 100/190 - Cross Dock (26 Docks / 1 oversized 20x20 drive-ins) Suite 100/190 - 30' Clear Height Suite 100/190 - ESFR Sprinklers Suite 100/190 - Heavy Power Available
- Includes 6,350 SF of dedicated office space
- 2 Drive Ins
- Space is in Excellent Condition
- 26 Loading Docks
- AVAILABLE NOW - Suite 100 - 47,037 SF w/ 1.5 Acres
- AVAILABLE 10/1/26 - Suite 190 - 47,037 SF
- 1.5 Acres Private Fenced Truck Apron
- Cross Dock (26 docks, 2 oversized ramp)
- Prime Location North Houston near IAH
4540 Kendrick Plaza Dr - 1st Floor - 140
| Size | 3,733 SF |
| Term | Negotiable |
| Rental Rate | Upon Request |
| Space Use | Flex |
| Build-Out | Full Build-Out |
| Available | Now |
• 3,733 SF total • 1,786 SF office / 1,947 SF HVAC warehouse • Rear Load (1 grade level 9x10 door) • 4:1,000 parking ratio • 16’ clear height • Class A tilt-wall building in master-planned industrial park • Located in North Houston adjacent to Bush IAH
- Lease rate does not include utilities, property expenses or building services
- Includes 1,786 SF of dedicated office space
- Space is in Excellent Condition
- 1 Drive Bay
- Central Air Conditioning
- Partitioned Offices
- Reception Area
- Private Restrooms
- Drop Ceilings
- After Hours HVAC Available
- 100% Air-Conditioned
- Master-Planned Business Park Environment
- Near Bush IAH Airport
4540 Kendrick Plaza Dr - 1st Floor - 140/150
| Size | 7,466 SF |
| Term | Negotiable |
| Rental Rate | Upon Request |
| Space Use | Flex |
| Build-Out | Full Build-Out |
| Available | Now |
• 7,466 SF Total • 5,187 SF Office • 2,279 SF HVAC Warehouse • Rear-load (2: 9-foot by 10-foot grade-level doors) • 4:1,000 Parking Ratio • 16-foot Clear Height
- Lease rate does not include utilities, property expenses or building services
- Includes 5,187 SF of dedicated office space
- Space is in Excellent Condition
- 2 Drive Ins
- Central Air Conditioning
- Partitioned Offices
- Reception Area
- Private Restrooms
- Drop Ceilings
- After Hours HVAC Available
- Conference Rooms
- HVAC Warehouse
- Near Bush IAH Airport
- Master-Planned Business Park Environment
4540 Kendrick Plaza Dr - 1st Floor - 150
| Size | 3,733 SF |
| Term | Negotiable |
| Rental Rate | Upon Request |
| Space Use | Flex |
| Build-Out | Full Build-Out |
| Available | Now |
• 3,733 SF Total • 3,401 SF Office • 332 SF Warehouse • Features a test kitchen, making it ideal for lab conversion • Rear-load (1 grade-level loading door) • Beltway visibility, and includes double-row parking with a 3.2/1,000 parking ratio. • 16' Clear Height • ESFR Sprinkler System
- Includes 3,401 SF of dedicated office space
- Space is in Excellent Condition
- 1 Drive Bay
- Central Air Conditioning
- Test Kitchen in Place, Great for Lab Conversion
- Master-Planned Business Park Environment
- Near Bush IAH Airport
4250 N Sam Houston Pky E - 1st Floor - 150
| Size | 7,875 SF |
| Term | Negotiable |
| Rental Rate | Upon Request |
| Space Use | Industrial |
| Build-Out | - |
| Available | Now |
• 7,875 SF total • 1,647 SF office • 6,228 SF warehouse • Beltway Frontage • Rear Load (2 docks / 1 ramp) • 24’ clear height • Fully Sprinklered
- Includes 1,647 SF of dedicated office space
- 1 Drive Bay
- 2 Loading Docks
- Central Air Conditioning
- Partitioned Offices
- Reception Area
- Private Restrooms
- Drop Ceilings
- Natural Light
- Near Bush IAH Airport
- Beltway Frontage
- Master-Planned Business Park Environment
4660 World Houston Pky - 1st Floor - 150
| Size | 22,314 SF |
| Term | Negotiable |
| Rental Rate | Upon Request |
| Space Use | Industrial |
| Build-Out | - |
| Available | 2026-12-01 |
• 22,314 SF Total • 2,090 SF Office • 20,224 SF Warehouse • Private Fenced Truck Apron -0.30 Acre • Side Load (5 Docks, 1: 12x14 ramp) • 24' Clear Height • Class IV ELO Sprinklers • Natural Gas Available • Location: North Houston adjacent to IAH
- Includes 2,090 SF of dedicated office space
- 1 Drive Bay
- 5 Loading Docks
- Private Fenced Truck Apron
15550 Vickery Dr - 1st Floor - 150
| Size | 24,700 SF |
| Term | Negotiable |
| Rental Rate | Upon Request |
| Space Use | Industrial |
| Build-Out | - |
| Available | 2026-10-01 |
• 24,700 SF Total • 3,305 SF Office / 21,395 SF Warehouse • Fenced Truck Apron • Side Load (7 docks/ 1 12x14 ramp) • 24' Clear Height • Class IV ELO Sprinklers • North Houston adjacent to IAH • Master Planned Business Park Environment
- Includes 3,305 SF of dedicated office space
- 1 Drive Bay
- 7 Loading Docks
- Fenced Truck Apron
- Class IV ELO Sprinklers
4120 Consulate Plaza Dr - 1st Floor - 150
| Size | 67,208 SF |
| Term | Negotiable |
| Rental Rate | Upon Request |
| Space Use | Industrial |
| Build-Out | - |
| Available | 2026-10-01 |
• 67,208 SF • 62,043 SF Warehouse • 5,165 SF Office • 1.75 Acre Private Fenced Truck Apron • Side Load: 18 docks / 2 drive-ins (12x14) • 32' Clear Height • ESFR Sprinklers • 120 Parking Spaces • Location: North Houston adjacent to IAH • Master-Planned Business Park Environment
- Includes 5,165 SF of dedicated office space
- 2 Drive Ins
- 18 Loading Docks
- 1.75 Acre Private Fenced Truck Apron
- 120 Parking Spaces
- 5,165 SF Office Space
4150 N Sam Houston Pky - 1st Floor - 190
| Size | 14,625 SF |
| Term | Negotiable |
| Rental Rate | Upon Request |
| Space Use | Industrial |
| Build-Out | - |
| Available | Now |
• 14,625 SF Total • 100% Office • Dock & Drive-In Available • 24' Clear Height • Fully Sprinklered • Ample Parking • Easy Access to Bush IAH, Beltway 8, I-45, Hwy 59 and the Hardy Toll Road
- Includes 14,625 SF of dedicated office space
- Space is in Excellent Condition
- 14,625 Total SF
- Dock & Drive-In Access Available
- Easy Access to Bush IAH, Beltway 8, I-45, Hwy 59
4745 Consulate Plaza dr - 1st Floor - Bldg 48
| Size | 191,372 SF |
| Term | Negotiable |
| Rental Rate | Upon Request |
| Space Use | Industrial |
| Build-Out | - |
| Available | TBD |
PROPOSED BUILDING • 191,372 SF Total (Divisible) • Cross Dock (56 docks, 4 oversized ramps) • 1.34 + 1.93 ACRE Private Truck Aprons for Outside Storage/Trailer Parking • Located in North Houston adjacent to IAH • Master Planned Business Park Environment • 260 Parking Spaces • 32' Clear Height • ESFR Sprinklers • Timeline: 8-10 Months from Lease Execution. Landlord has already submitted for permit and ordered Transformer.
- Private Restrooms
- Natural Light
- 191,372 SF Total
- 1.34+1.93 ACRE Private Truck Apron Outside Storage
- Cross Dock (56 Docks, 4 Oversized Ramps)
- ESFR Sprinkler System
Select Tenants at This Property
- Floor
- Tenant Name
- Industry
- Multiple
- CoolSys
- Construction
- 1st
- DHL
- Transportation and Warehousing
- 1st
- DSV
- Transportation and Warehousing
- 1st
- InTech Aerospace
- Manufacturing
- Multiple
- Weatherford
- Mining, Quarrying, and Oil and Gas Extraction
Park Overview
Discover World Houston International Business Center — the region’s premier master-planned industrial park by EastGroup Properties (NYSE: EGP). Designed for efficiency and reliability, the park offers move-in-ready and customizable spaces with features such as dock-high and grade-level loading, secure outdoor storage, 3-phase power, and 32’ clear heights. The newest addition, Building 46 at 5142 Greens Road, delivers 180,992 SF of Class A space (divisible to 90,000 SF) with 54 dock doors, 4 drive-in ramps, 3,340 SF of spec office, 248 parking spaces, and 3.3 acres of outdoor storage. Located next to Bush Intercontinental Airport (IAH) with direct access to Beltway 8, I-45, I-69, and Hardy Toll Road, World Houston offers unparalleled logistics connectivity and convenience for today’s growing operations.
Park Brochure
About North Hardy Toll Road
The North Hardy Toll Road's presence between the heavily trafficked Interstate 45 and Sam Houston Tollway, as well as proximity to the George Bush Intercontinental Airport, lends itself well as an ideal location to satisfy distribution demand across the region.
This part of Houston is also ideally situated to capitalize on rooftop growth in Montgomery to the north, particularly Springwoods Village, The Woodlands, and Conroe. Over the past 15 years, more than 80% of Harris County's population growth has occurred in its unincorporated areas, the majority immediately to the west and increasingly the east of this part of Houston, especially with the completion of the Grand Parkway (State Highway 99).
The industrial tenant base is diverse and includes a good mix of industries Conn’s Home Plus (retailer), Amazon (retailer), RS Technologies (manufacturing), and Wisenbaker Builder Services (construction). Solid economic performance and strong transportation connectivity position the area for continued growth.
Rents here are right in line with the Houston average and come at a noticeable discount to the neighboring The Woodlands, which sits directly to the north and is home to some of Houston's most affluent suburbs.
Demographics
Regional Accessibility
Nearby Amenities
Hotels |
|
|---|---|
| Hampton by Hilton |
98 rooms
4 min drive
|
| Comfort Suites |
57 rooms
4 min drive
|
| Courtyard |
127 rooms
4 min drive
|
| Sonesta Essential |
57 rooms
4 min drive
|
| Ramada |
96 rooms
3 min drive
|
Leasing Team
Logan Greer, Vice President
Dayne Wunderlich, Leasing Associate
About the Owner
Other Properties in the EASTGROUP PROPERTIES, INC. Portfolio
Presented by
World Houston International Business Center | Houston, TX 77032
Hmm, there seems to have been an error sending your message. Please try again.
Thanks! Your message was sent.











































