Log In/Sign Up
Your email has been sent.
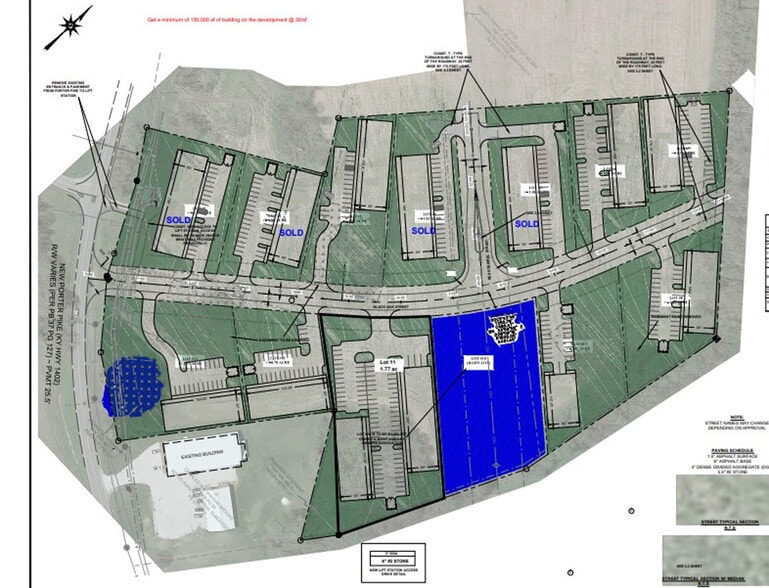
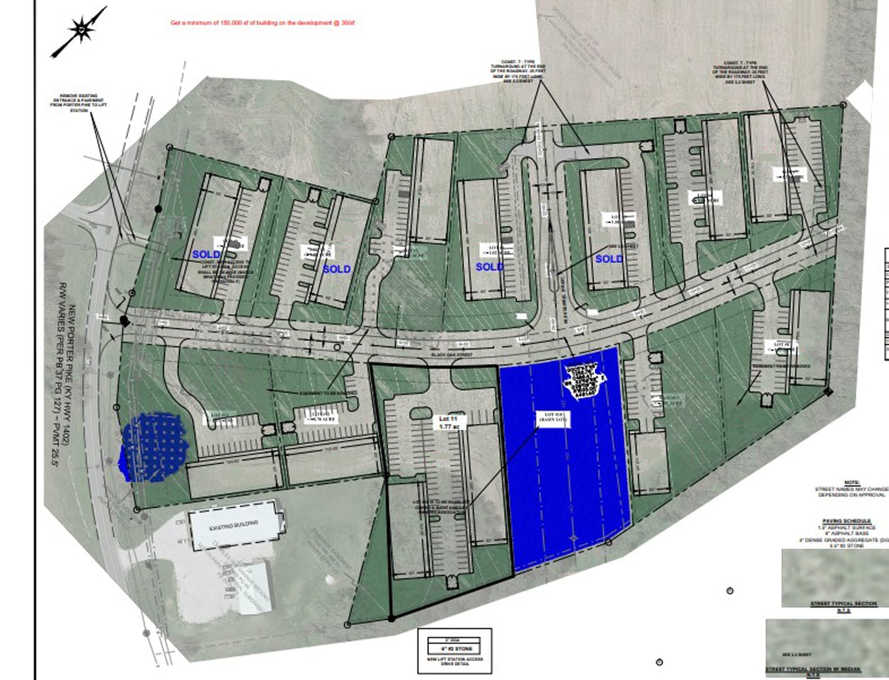
Black Oak St.-Lot 9 St
Bowling Green, KY 42103
Black Oak Development-Lot 9 · Land For Sale
·
1.02 AC


Investment Highlights
- New Development
- Pad-ready, water retention is off-site
- Light Industrial Park
Executive Summary
Position your business for growth in Black Oak Industrial Park. These Light Industrial lots are ideal for small warehouses, contractor facilities, flex space, and service-based industrial users seeking a strategic and accessible location. Situated just 1.3 miles from Exit 28 on I65, the park is designed to support owner-users and investors alike, with flexible lot sizes suitable for custom-built warehouses and light manufacturing operations. There are seven lots available with the option of combining lots.
Property Facts
| Sale Type | Investment or Owner User | Property Subtype | Commercial |
| No. Lots | 1 | Proposed Use | |
| Property Type | Land | Total Lot Size | 1.02 AC |
| Zoning | Light industrial - Light Industrial | ||
| Sale Type | Investment or Owner User |
| No. Lots | 1 |
| Property Type | Land |
| Property Subtype | Commercial |
| Proposed Use | |
| Total Lot Size | 1.02 AC |
| Zoning | Light industrial - Light Industrial |
1 Lot Available
Lot 9
| Price | $546,892 CAD | Lot Size | 1.02 AC |
| Price Per AC | $536,168.65 CAD |
| Price | $546,892 CAD |
| Price Per AC | $536,168.65 CAD |
| Lot Size | 1.02 AC |
These Light Industrial lots are ideal for small warehouses, contractor facilities, flex space, and service-based industrial users seeking a strategic and accessible location.
Property Taxes
| Parcel Number | 051A-06-024 | Improvements Assessment | $0 CAD |
| Land Assessment | $0 CAD | Total Assessment | $950,110 CAD |
Property Taxes
Parcel Number
051A-06-024
Land Assessment
$0 CAD
Improvements Assessment
$0 CAD
Total Assessment
$950,110 CAD
1 of 5
Videos
Matterport 3D Exterior
Matterport 3D Tour
Photos
Street View
Street
Map
