Your email has been sent.
Some information has been automatically translated.
Highlights
- Implantation au sein d’une zone d’activité établie
- Proximité immédiate du RER C Brétigny-sur-Orge
- Accès rapide aux axes N104 et N19
All Available Spaces(3)
Display Rental Rate as
- Space
- Size
- Term
-
Rental Rate
- Space Use
- Condition
- Available
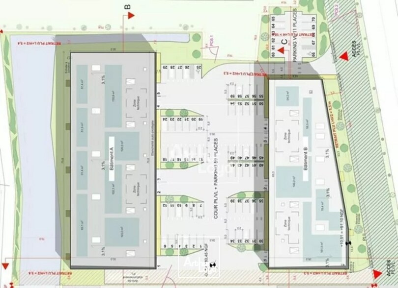
À Brétigny-sur-Orge (91220), au sein de la zone d’activité, un programme mixte neuf à louer développe une surface totale de 1 972 m², divisible à partir de 510 m². L’ensemble est composé de plusieurs cellules d’activité associant des surfaces en rez-de-chaussée à usage d’activité ou de stockage et des bureaux en 1er étage. Les lots proposés comprennent des surfaces de 434 à 725 m² d’activité complétées par des bureaux allant de 104 à 197 m², permettant une organisation fonctionnelle adaptée aux besoins des entreprises artisanales, industrielles légères ou de distribution. Le bâtiment offre une hauteur de 7,50 mètres sous poutre et de 4,50 mètres sous bureaux, un accès plain-pied facilitant les flux logistiques ainsi que des prestations techniques comprenant un faux plafond dans les espaces bureaux. Le site est clos et dispose de 20 places de stationnement extérieures communes, complétées par des parkings privatifs rattachés à chaque lot. La disponibilité est annoncée 12 mois après accord. Le loyer annuel global s’établit à 216 920 € HT HC, soit un loyer à partir de 110 €/m²/an HT HC, avec des charges annuelles de 18 536,80 € HT. Le bail est de type commercial, avec un dépôt de garantie équivalent à 3 mois de loyer. Les honoraires de commercialisation, à la charge du preneur, représentent 15 % HT du loyer annuel HT hors charges.
- Agency Fee: 15.00% of annual rent
- Security Deposit: 3% of annual rent
- Space is in Excellent Condition
- Security System
- Surfaces divisibles à partir de 510 m²
- Stationnements extérieurs et site clos
-
Rental Charges: $1.39 CAD/SF/YR $0.12 CAD/SF/MO $8,072 CAD/YR $672.65 CAD/MO
- Includes 1,141 SF of dedicated office space
- Partitioned Offices
- Secure Storage
- Accès plain-pied et hauteur adaptée à l’activité
À Brétigny-sur-Orge (91220), au sein de la zone d’activité, un programme mixte neuf à louer développe une surface totale de 1 972 m², divisible à partir de 510 m². L’ensemble est composé de plusieurs cellules d’activité associant des surfaces en rez-de-chaussée à usage d’activité ou de stockage et des bureaux en 1er étage. Les lots proposés comprennent des surfaces de 434 à 725 m² d’activité complétées par des bureaux allant de 104 à 197 m², permettant une organisation fonctionnelle adaptée aux besoins des entreprises artisanales, industrielles légères ou de distribution. Le bâtiment offre une hauteur de 7,50 mètres sous poutre et de 4,50 mètres sous bureaux, un accès plain-pied facilitant les flux logistiques ainsi que des prestations techniques comprenant un faux plafond dans les espaces bureaux. Le site est clos et dispose de 20 places de stationnement extérieures communes, complétées par des parkings privatifs rattachés à chaque lot. La disponibilité est annoncée 12 mois après accord. Le loyer annuel global s’établit à 216 920 € HT HC, soit un loyer à partir de 110 €/m²/an HT HC, avec des charges annuelles de 18 536,80 € HT. Le bail est de type commercial, avec un dépôt de garantie équivalent à 3 mois de loyer. Les honoraires de commercialisation, à la charge du preneur, représentent 15 % HT du loyer annuel HT hors charges.
- Agency Fee: 15.00% of annual rent
- Security Deposit: 3% of annual rent
- Space is in Excellent Condition
- Security System
- Surfaces divisibles à partir de 510 m²
- Stationnements extérieurs et site clos
-
Rental Charges: $1.39 CAD/SF/YR $0.12 CAD/SF/MO $7,623 CAD/YR $635.28 CAD/MO
- Includes 1,119 SF of dedicated office space
- Partitioned Offices
- Secure Storage
- Accès plain-pied et hauteur adaptée à l’activité
À Brétigny-sur-Orge (91220), au sein de la zone d’activité, un programme mixte neuf à louer développe une surface totale de 1 972 m², divisible à partir de 510 m². L’ensemble est composé de plusieurs cellules d’activité associant des surfaces en rez-de-chaussée à usage d’activité ou de stockage et des bureaux en 1er étage. Les lots proposés comprennent des surfaces de 434 à 725 m² d’activité complétées par des bureaux allant de 104 à 197 m², permettant une organisation fonctionnelle adaptée aux besoins des entreprises artisanales, industrielles légères ou de distribution. Le bâtiment offre une hauteur de 7,50 mètres sous poutre et de 4,50 mètres sous bureaux, un accès plain-pied facilitant les flux logistiques ainsi que des prestations techniques comprenant un faux plafond dans les espaces bureaux. Le site est clos et dispose de 20 places de stationnement extérieures communes, complétées par des parkings privatifs rattachés à chaque lot. La disponibilité est annoncée 12 mois après accord. Le loyer annuel global s’établit à 216 920 € HT HC, soit un loyer à partir de 110 €/m²/an HT HC, avec des charges annuelles de 18 536,80 € HT. Le bail est de type commercial, avec un dépôt de garantie équivalent à 3 mois de loyer. Les honoraires de commercialisation, à la charge du preneur, représentent 15 % HT du loyer annuel HT hors charges.
- Agency Fee: 15.00% of annual rent
- Security Deposit: 3% of annual rent
- Space is in Excellent Condition
- Security System
- Surfaces divisibles à partir de 510 m²
- Stationnements extérieurs et site clos
-
Rental Charges: $1.39 CAD/SF/YR $0.12 CAD/SF/MO $13,782 CAD/YR $1,148 CAD/MO
- Includes 2,120 SF of dedicated office space
- Partitioned Offices
- Secure Storage
- Accès plain-pied et hauteur adaptée à l’activité
| Space | Size | Term | Rental Rate | Space Use | Condition | Available |
| Ground - Lot b.1 | 5,813 SF | 3/6/9 | $16.25 CAD/SF/YR HT-HC $1.35 CAD/SF/MO HT-HC $94,456 CAD/YR HT-HC $7,871 CAD/MO HT-HC | Flex | - | 2026-12-01 |
| Ground - Lot b.2 | 5,490 SF | 3/6/9 | $16.25 CAD/SF/YR HT-HC $1.35 CAD/SF/MO HT-HC $89,208 CAD/YR HT-HC $7,434 CAD/MO HT-HC | Flex | Full Build-Out | 2026-12-01 |
| Ground - Lot b.3 | 9,924 SF | 3/6/9 | $16.25 CAD/SF/YR HT-HC $1.35 CAD/SF/MO HT-HC $161,275 CAD/YR HT-HC $13,440 CAD/MO HT-HC | Flex | Full Build-Out | 2026-12-01 |
Ground - Lot b.1
| Size |
| 5,813 SF |
| Term |
| 3/6/9 |
|
Rental Rate
|
| $16.25 CAD/SF/YR HT-HC $1.35 CAD/SF/MO HT-HC $94,456 CAD/YR HT-HC $7,871 CAD/MO HT-HC |
| Space Use |
| Flex |
| Condition |
| - |
| Available |
| 2026-12-01 |
Ground - Lot b.2
| Size |
| 5,490 SF |
| Term |
| 3/6/9 |
|
Rental Rate
|
| $16.25 CAD/SF/YR HT-HC $1.35 CAD/SF/MO HT-HC $89,208 CAD/YR HT-HC $7,434 CAD/MO HT-HC |
| Space Use |
| Flex |
| Condition |
| Full Build-Out |
| Available |
| 2026-12-01 |
Ground - Lot b.3
| Size |
| 9,924 SF |
| Term |
| 3/6/9 |
|
Rental Rate
|
| $16.25 CAD/SF/YR HT-HC $1.35 CAD/SF/MO HT-HC $161,275 CAD/YR HT-HC $13,440 CAD/MO HT-HC |
| Space Use |
| Flex |
| Condition |
| Full Build-Out |
| Available |
| 2026-12-01 |
Ground - Lot b.1
| Size | 5,813 SF |
| Term | 3/6/9 |
|
Rental Rate
|
$16.25 CAD/SF/YR HT-HC |
| Space Use | Flex |
| Condition | - |
| Available | 2026-12-01 |
À Brétigny-sur-Orge (91220), au sein de la zone d’activité, un programme mixte neuf à louer développe une surface totale de 1 972 m², divisible à partir de 510 m². L’ensemble est composé de plusieurs cellules d’activité associant des surfaces en rez-de-chaussée à usage d’activité ou de stockage et des bureaux en 1er étage. Les lots proposés comprennent des surfaces de 434 à 725 m² d’activité complétées par des bureaux allant de 104 à 197 m², permettant une organisation fonctionnelle adaptée aux besoins des entreprises artisanales, industrielles légères ou de distribution. Le bâtiment offre une hauteur de 7,50 mètres sous poutre et de 4,50 mètres sous bureaux, un accès plain-pied facilitant les flux logistiques ainsi que des prestations techniques comprenant un faux plafond dans les espaces bureaux. Le site est clos et dispose de 20 places de stationnement extérieures communes, complétées par des parkings privatifs rattachés à chaque lot. La disponibilité est annoncée 12 mois après accord. Le loyer annuel global s’établit à 216 920 € HT HC, soit un loyer à partir de 110 €/m²/an HT HC, avec des charges annuelles de 18 536,80 € HT. Le bail est de type commercial, avec un dépôt de garantie équivalent à 3 mois de loyer. Les honoraires de commercialisation, à la charge du preneur, représentent 15 % HT du loyer annuel HT hors charges.
- Agency Fee: 15.00% of annual rent
-
Rental Charges: $1.39 CAD/SF/YR $0.12 CAD/SF/MO $8,072 CAD/YR $672.65 CAD/MO
- Security Deposit: 3% of annual rent
- Includes 1,141 SF of dedicated office space
- Space is in Excellent Condition
- Partitioned Offices
- Security System
- Secure Storage
- Surfaces divisibles à partir de 510 m²
- Accès plain-pied et hauteur adaptée à l’activité
- Stationnements extérieurs et site clos
Ground - Lot b.2
| Size | 5,490 SF |
| Term | 3/6/9 |
|
Rental Rate
|
$16.25 CAD/SF/YR HT-HC |
| Space Use | Flex |
| Condition | Full Build-Out |
| Available | 2026-12-01 |
À Brétigny-sur-Orge (91220), au sein de la zone d’activité, un programme mixte neuf à louer développe une surface totale de 1 972 m², divisible à partir de 510 m². L’ensemble est composé de plusieurs cellules d’activité associant des surfaces en rez-de-chaussée à usage d’activité ou de stockage et des bureaux en 1er étage. Les lots proposés comprennent des surfaces de 434 à 725 m² d’activité complétées par des bureaux allant de 104 à 197 m², permettant une organisation fonctionnelle adaptée aux besoins des entreprises artisanales, industrielles légères ou de distribution. Le bâtiment offre une hauteur de 7,50 mètres sous poutre et de 4,50 mètres sous bureaux, un accès plain-pied facilitant les flux logistiques ainsi que des prestations techniques comprenant un faux plafond dans les espaces bureaux. Le site est clos et dispose de 20 places de stationnement extérieures communes, complétées par des parkings privatifs rattachés à chaque lot. La disponibilité est annoncée 12 mois après accord. Le loyer annuel global s’établit à 216 920 € HT HC, soit un loyer à partir de 110 €/m²/an HT HC, avec des charges annuelles de 18 536,80 € HT. Le bail est de type commercial, avec un dépôt de garantie équivalent à 3 mois de loyer. Les honoraires de commercialisation, à la charge du preneur, représentent 15 % HT du loyer annuel HT hors charges.
- Agency Fee: 15.00% of annual rent
-
Rental Charges: $1.39 CAD/SF/YR $0.12 CAD/SF/MO $7,623 CAD/YR $635.28 CAD/MO
- Security Deposit: 3% of annual rent
- Includes 1,119 SF of dedicated office space
- Space is in Excellent Condition
- Partitioned Offices
- Security System
- Secure Storage
- Surfaces divisibles à partir de 510 m²
- Accès plain-pied et hauteur adaptée à l’activité
- Stationnements extérieurs et site clos
Ground - Lot b.3
| Size | 9,924 SF |
| Term | 3/6/9 |
|
Rental Rate
|
$16.25 CAD/SF/YR HT-HC |
| Space Use | Flex |
| Condition | Full Build-Out |
| Available | 2026-12-01 |
À Brétigny-sur-Orge (91220), au sein de la zone d’activité, un programme mixte neuf à louer développe une surface totale de 1 972 m², divisible à partir de 510 m². L’ensemble est composé de plusieurs cellules d’activité associant des surfaces en rez-de-chaussée à usage d’activité ou de stockage et des bureaux en 1er étage. Les lots proposés comprennent des surfaces de 434 à 725 m² d’activité complétées par des bureaux allant de 104 à 197 m², permettant une organisation fonctionnelle adaptée aux besoins des entreprises artisanales, industrielles légères ou de distribution. Le bâtiment offre une hauteur de 7,50 mètres sous poutre et de 4,50 mètres sous bureaux, un accès plain-pied facilitant les flux logistiques ainsi que des prestations techniques comprenant un faux plafond dans les espaces bureaux. Le site est clos et dispose de 20 places de stationnement extérieures communes, complétées par des parkings privatifs rattachés à chaque lot. La disponibilité est annoncée 12 mois après accord. Le loyer annuel global s’établit à 216 920 € HT HC, soit un loyer à partir de 110 €/m²/an HT HC, avec des charges annuelles de 18 536,80 € HT. Le bail est de type commercial, avec un dépôt de garantie équivalent à 3 mois de loyer. Les honoraires de commercialisation, à la charge du preneur, représentent 15 % HT du loyer annuel HT hors charges.
- Agency Fee: 15.00% of annual rent
-
Rental Charges: $1.39 CAD/SF/YR $0.12 CAD/SF/MO $13,782 CAD/YR $1,148 CAD/MO
- Security Deposit: 3% of annual rent
- Includes 2,120 SF of dedicated office space
- Space is in Excellent Condition
- Partitioned Offices
- Security System
- Secure Storage
- Surfaces divisibles à partir de 510 m²
- Accès plain-pied et hauteur adaptée à l’activité
- Stationnements extérieurs et site clos
Property Overview
Le programme est implanté au cœur de la zone d’activité de Brétigny-sur-Orge, un secteur reconnu pour son accessibilité et son attractivité économique au sud de l’Île-de-France. Le site bénéficie d’une connexion rapide aux axes routiers majeurs N104 et N19, facilitant les liaisons logistiques régionales et métropolitaines. L’environnement combine un tissu d’entreprises diversifiées et un cadre fonctionnel propice au développement des activités professionnelles. La conception du programme, associée à la qualité des dessertes routières et ferroviaires, en fait une implantation adaptée aux entreprises recherchant des locaux neufs, bien connectés et évolutifs au sein d’un pôle économique structuré.
Property Facts
Presented by
"91220 Brétigny-sur-Orge"
Hmm, there seems to have been an error sending your message. Please try again.
Thanks! Your message was sent.



